© Benedikt Markel
C.Benedikt Markel
架构师提供的文本描述。DOX建筑群扩建了位于捷克共和国布拉格的DOX当代艺术中心。原来的建筑群集中在展览领域,通过舞蹈、音乐、电影和一所建筑学校的特殊领域加以扩展。DOX由三座建筑组成:建筑学院的行政大楼、实验音乐和舞厅以及舞蹈排练室。从建筑的角度看,建筑是一个单一的单元,这一原则是以统一的灰色、色彩和流体相互联系为一体来象征的。因此,复杂可以被认为是一个单一的结构雕像。
Text description provided by the architects. The DOX+ complex of buildings expands the DOX Contemporary Art Centre in Prague, the Czech Republic. The original complex focusing on exhibition areas was expanded by special areas for dance, music, film and a school of architecture. DOX+ consist of three buildings: administrative with the school of architecture, an experimental music and dance hall and a dance rehearsal room. The buildings are a single unit from the architectural aspect and this principle is symbolically expssed by the unified grey color and fluid interconnection of all parts into one whole. As a result, the complex can be perceived as a single structured statue.
Text description provided by the architects. The DOX+ complex of buildings expands the DOX Contemporary Art Centre in Prague, the Czech Republic. The original complex focusing on exhibition areas was expanded by special areas for dance, music, film and a school of architecture. DOX+ consist of three buildings: administrative with the school of architecture, an experimental music and dance hall and a dance rehearsal room. The buildings are a single unit from the architectural aspect and this principle is symbolically expssed by the unified grey color and fluid interconnection of all parts into one whole. As a result, the complex can be perceived as a single structured statue.
© Tomáš Vocelka / Economia
?????????????????????????????????
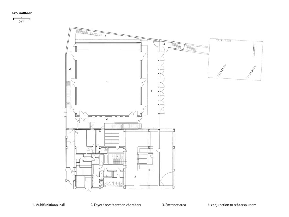
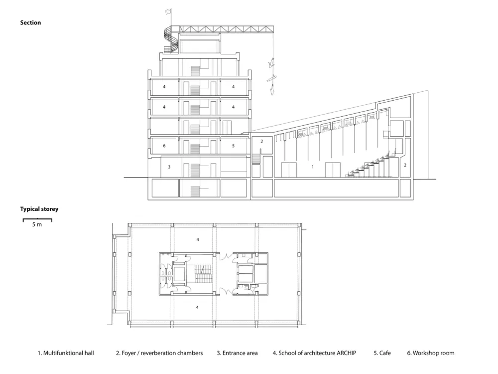
行政区域设有入口大堂、俱乐部和餐厅,是ARCHIP建筑学院。这座建筑起源于20世纪70年代对原有建筑进行改造的基础上,其内部核心和开放式布局的类型结构被保留下来。内部装修尊重建筑建造时使用的材料(油毡、木板门、水磨石.)。
The administrative area, with entrance lobby, club, and restaurant, serves as the ARCHIP school of architecture. This building originated on the basis of a renovation of the original building dating from the 1970s, and the typological arrangement of its inner core and open layout have been pserved. Renovation of the interior respects the materials used at the time the building was constructed (linoleum, wood veneer doors, terrazzo….).
The administrative area, with entrance lobby, club, and restaurant, serves as the ARCHIP school of architecture. This building originated on the basis of a renovation of the original building dating from the 1970s, and the typological arrangement of its inner core and open layout have been pserved. Renovation of the interior respects the materials used at the time the building was constructed (linoleum, wood veneer doors, terrazzo….).
© Tomáš Vocelka / Economia
?????????????????????????????????
实验音乐舞厅和舞蹈排练室使用贝顿布鲁。钢筋混凝土建筑是在一个柔软的外墙上“穿衣”,以保护它们不受冰冻或过热的影响。所述绝缘羊毛覆盖在柔性绝缘膜中,该保温膜以规则栅格的形式锚定在混凝土上。立面吸收了从大厅逸出的残余噪音,并减轻了住宅庭院的声学负担。由于这种基于家具装潢的图案,这些大厅让人想起了两张大沙发。选择了一种软垫家具图案,因为它能有效地沿织物表面分配拉力。这种模式的扩大对其结构性能没有负面影响,因此,塑料薄膜在极端寒冷的天气中不会撕裂,因为它会收缩,并且当表面温度在阳光下上升时,张力不会消失。
The experimental music and dancehall and dance rehearsal room are cast using béton brut. The reinforced concrete buildings are “clothed” in a soft façade which protects them against freezing or overheating. The insulating wool is covered in a flexible insulating membrane which is anchored to the concrete in the pattern of a regular grid. The façade absorbs residual noise escaping from the hall and reduces the acoustic burden on the residential courtyard. Thanks to the pattern, which is based on furniture upholstery, the halls are reminiscent of two large sofas. An upholstered furniture pattern was chosen for its effectiveness in distributing tensile forces along the surface of the fabric. Enlargement of this pattern had no negative effect on its structural properties and, as a result, the plastic film does not tear in extremely cold weather as it shrinks, and tension is not lost when surface temperatures rise in the sunlight.
The experimental music and dancehall and dance rehearsal room are cast using béton brut. The reinforced concrete buildings are “clothed” in a soft façade which protects them against freezing or overheating. The insulating wool is covered in a flexible insulating membrane which is anchored to the concrete in the pattern of a regular grid. The façade absorbs residual noise escaping from the hall and reduces the acoustic burden on the residential courtyard. Thanks to the pattern, which is based on furniture upholstery, the halls are reminiscent of two large sofas. An upholstered furniture pattern was chosen for its effectiveness in distributing tensile forces along the surface of the fabric. Enlargement of this pattern had no negative effect on its structural properties and, as a result, the plastic film does not tear in extremely cold weather as it shrinks, and tension is not lost when surface temperatures rise in the sunlight.
© Benedikt Markel
C.Benedikt Markel
Acoustic Diagram
声学图
© Benedikt Markel
C.Benedikt Markel
该霍尔具有可变的声学特性,并且可以与根据特定性能的需要而调谐的乐器进行比较。为此,使用了旋转的三壁下顶板和FOYER。通过声音吸收、漫射和反射表面支撑三个壁面板,并且可以旋转以修改天花板的声学特性,从而改变整个大厅的声学参数。为此,在特殊性能的情况下,主霍尔由一个可用作消去室的FOREYER环绕。将这些区域添加到主霍尔的体积导致特别是在较低频率下的FADEOUT周期的显著扩展。
The hall has variable acoustics and can be compared to a musical instrument which can be tuned depending on the needs of the specific performance. The rotating three-walled under-ceiling panels and foyers are used for this. The three-walled panels are supported by a sound absorbent, diffuse and reflective surface and can be rotated to modify the acoustic properties of the ceiling, thereby changing the acoustic parameters of the entire hall. In order to extend the fadeout effect, the main hall is surrounded by a ring of foyers which can be used as fadeout chambers in the case of special performances. The addition of these areas to the volume of the main hall results in a significant extension of the fadeout period particularly in the lower frequencies.
The hall has variable acoustics and can be compared to a musical instrument which can be tuned depending on the needs of the specific performance. The rotating three-walled under-ceiling panels and foyers are used for this. The three-walled panels are supported by a sound absorbent, diffuse and reflective surface and can be rotated to modify the acoustic properties of the ceiling, thereby changing the acoustic parameters of the entire hall. In order to extend the fadeout effect, the main hall is surrounded by a ring of foyers which can be used as fadeout chambers in the case of special performances. The addition of these areas to the volume of the main hall results in a significant extension of the fadeout period particularly in the lower frequencies.
© Benedikt Markel
C.Benedikt Markel
广场平面图也意味着没有必要用隔音板覆盖墙壁。大厅有550人的座位,并已成为著名的声学在其短暂的存在。它目前也用作参考录音室。大厅的屋顶是一片草地,用于放松、户外设施,或者只是作为户外表演的场所。观众席上有一座悬空的桥,供杂技舞蹈之用。舞蹈彩排室有一个平面图,尺寸与主大厅的舞台相同。它在对角线柱上的内部庭院上方“跳舞”。这些柱的几何形状不是随机的,但避免了交通规划和技术安装下的地砖。
The square floor plan also means there was no need to clad the walls in acoustic paneling. The hall has seating for 550 guests and has become famous for its acoustics during its brief existence. It is currently also used as a reference recording studio. The roof of the hall is a grassy meadow used for relaxation, outdoor installations or simply as a place for outdoor performances. There is a suspended bridge over the auditorium for acrobatic dancing. The dance rehearsal room has a floor plan with dimensions identical to the stage in the main hall. It “dances” above the inner courtyard on diagonal columns. The geometry of these columns is not random but avoids the traffic plan and technical installations below the floor tile.
The square floor plan also means there was no need to clad the walls in acoustic paneling. The hall has seating for 550 guests and has become famous for its acoustics during its brief existence. It is currently also used as a reference recording studio. The roof of the hall is a grassy meadow used for relaxation, outdoor installations or simply as a place for outdoor performances. There is a suspended bridge over the auditorium for acrobatic dancing. The dance rehearsal room has a floor plan with dimensions identical to the stage in the main hall. It “dances” above the inner courtyard on diagonal columns. The geometry of these columns is not random but avoids the traffic plan and technical installations below the floor tile.
Axonometric Scheme
轴测方案
Architects Petr Hajek Architekti
Location Poupětova 1339/3, 170 00 Prague 7-Holešovice, Czech Republic
Architects Team Petr Hájek, Tereza Keilová, Cornelia Klien, Benedikt Markel, Martin Stoss
Project Year 2018
Photographs Benedikt Markel, Tomáš Vocelka / Economia, Jan Slavik
Category Cultural Center
Manufacturers Loading…

