架构师提供的文本描述。其主要思想是提出一个最优的热水浴单元,将其和谐地组合到丽兹树皮华民́滑雪区的环境中。该设施的“氛围”和适应所有年龄组用户的人体工程学是该项目的主要目标之一。建筑物的形状被划分为调整元素,以适应位于其中的功能区的需要。整个建筑群通过对各个街区进行玻璃化,向周围地区的魅力开放。建筑师们提议将建筑内部的“房间”划分为“房间”。
Text description provided by the architects. The main idea was to propose an optimal unit of Thermal Baths, harmoniously composed into the surroundings of the Lidzbark Warmiński region. The “atmosphere” of the facility and the ergonomics adapted to all age groups of users was one of the main goals of the project. The shape of the building was divided into elements adjusted to the needs of the functional zones located in them. The whole complex is opened to the charm of the surrounding area through glazing of the individual blocks. The architects proposed the division into the “chambers” inside the building.
Text description provided by the architects. The main idea was to propose an optimal unit of Thermal Baths, harmoniously composed into the surroundings of the Lidzbark Warmiński region. The “atmosphere” of the facility and the ergonomics adapted to all age groups of users was one of the main goals of the project. The shape of the building was divided into elements adjusted to the needs of the functional zones located in them. The whole complex is opened to the charm of the surrounding area through glazing of the individual blocks. The architects proposed the division into the “chambers” inside the building.
© Piotr Krajewski
皮奥特·克拉姆斯基
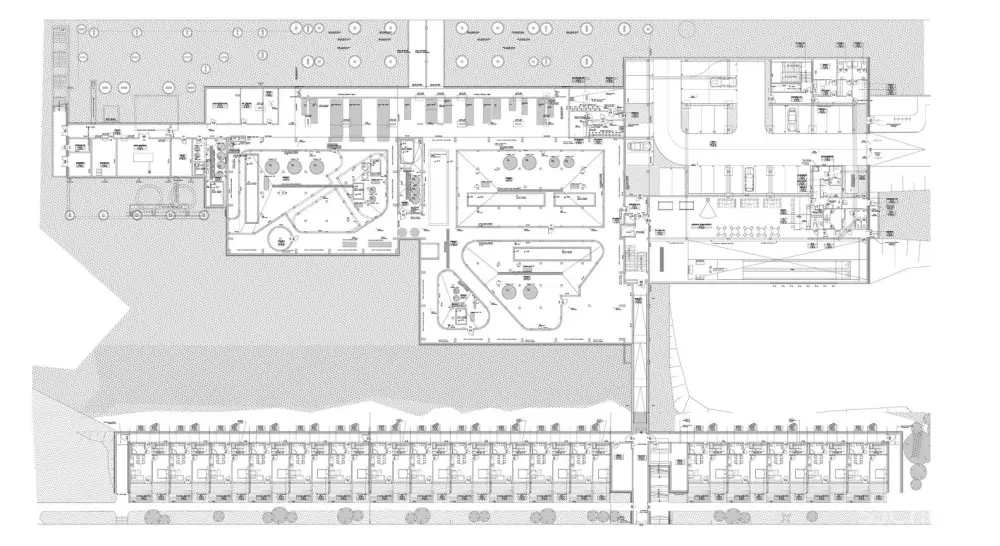
Ground floor plan
© Piotr Krajewski
皮奥特·克拉姆斯基
© Piotr Krajewski
皮奥特·克拉姆斯基
© Piotr Krajewski
皮奥特·克拉姆斯基
每一个“密室”都是以瓦尔米亚和马佐里地区的材料为特色完成的。大楼的主要入口是玻璃接缝,主大厅将建筑群分为三个部分:主部分设有游泳池和热水澡,第二部分设有会议厅和餐厅,第三部分位于酒店所在地。从入口大厅可以到达酒店的部分。酒店的设计形式是位于该地区自然斜坡上的露台房屋。会议部分包括设在1层的办公室和会议室。这部分还包括更衣室、购物中心、厕所和有厨房设施的餐厅。在第一层有一个俱乐部房间,有酒吧,保龄球和音乐俱乐部。此外,在第一层,有一个停车场,有33个停车位,一个员工的社交区和技术室。
Every “chamber” is finished with materials characteristic for the Warmia and Mazury region. The main entrance of the building is a glass joint where the main hall divides the complex into three parts: the main part with a swimming pool and thermal baths, the second part with conference halls and a restaurant and the third part where a hotel is located. From the entrance hall it is possible to reach the hotel part. The hotel was designed in the shape of the terrace houses located on the natural slope of the area. The conference part includes offices and conference rooms located on +1 level. In this part there are also changing rooms, a shopping-mall, toilets and a restaurant with kitchen facilities. On the level -1 there is a club room with a bar, a bowling and music club. In additional, on the level -1, there is a car park with 33 parking spaces, a social area for employees and technological rooms.
Every “chamber” is finished with materials characteristic for the Warmia and Mazury region. The main entrance of the building is a glass joint where the main hall divides the complex into three parts: the main part with a swimming pool and thermal baths, the second part with conference halls and a restaurant and the third part where a hotel is located. From the entrance hall it is possible to reach the hotel part. The hotel was designed in the shape of the terrace houses located on the natural slope of the area. The conference part includes offices and conference rooms located on +1 level. In this part there are also changing rooms, a shopping-mall, toilets and a restaurant with kitchen facilities. On the level -1 there is a club room with a bar, a bowling and music club. In additional, on the level -1, there is a car park with 33 parking spaces, a social area for employees and technological rooms.
© Piotr Krajewski
皮奥特·克拉姆斯基

