町屋的新生:以庭院连接的“超薄”酒店
 
 
在京都的旧城常常可以看到那种又深又窄的住所,它们被称为“鳗鱼之床”(Unagi no Nedoko)。这种房子通常具有形式对称的室内外空间,并通过纵向的中庭来提供线性的连接(对于“虚空”的意识和设计在东方的哲学中有着重要意义)。
 
 
建筑后退于街道,在自身和城市环境之间形成了一个花园空间。入口序列的设计受到了传统町屋的狭长走廊的启发。町屋传统的栅格立面被转译为一个高科技的长廊,以充满现代感的光影和音乐迎接着刚刚到达酒店的客人。
 
 
一层和二层空间有着截然不同的体验。首先是与前方花园相连的迎宾室,这是一个水平的空间,客人们可在此办理入住,同时感受日式庭院的美景:花园中的山茶花、箭竹与产自熊野市的黑色板岩共同构成优美和谐的画面。
 
 
在办理入住之后,客人们将穿过栅格墙围合的走廊,然后进入大厅兼图书室,屏幕上展示着日本的四季景色,带来沉浸式的体验。

 
 
町屋中通常设有名为“坪庭”(Tsuboniwa)的小型庭院,它能够为狭长的空间带来适宜的采光和气候。该项目对这一充满智慧的方法进行了重新诠释和运用。
 
 
传统的花园一般受限于水平楼层,但在该方案中,“坪庭”被设计为一个纵向的、充满绿植的空间,为每间客房带来清新的空气和自然光照。6至8层设有酒店最豪华的“Ozashiki”客房,每个房间均直接朝向坪庭绿地,并拥有定制的装饰物,墙壁、地板和天花板选用了不同的材料,为客人营造出独一无二的专属氛围。
 
 
坪庭的地面以岩石铺设,烟雾缭绕在其间,形成一个富有日本特色的微气候环境。在冬夏之间,雾气不断发生变化,与夜晚的照明共同营造出迷人的氛围。
 
 
 
 
设计师期望通过这些努力来加深客人们对京都文化的认知,通过历史与未来感并存的体验去真正地感受和了解日本。
 
 
 
 
 
 
 
 
轴测图
 
 
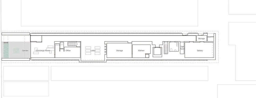
首层平面图
 
 
2层平面图
 
 
客房层平面图
 
 
西立面和南立面图
 
 
北立面和东立面图
 
 
Project name: MOGANA
Design: Takashi Yamaguchi & associates
Website: https://www.ty-associates.com/
Contact e-mail: ya@yamaguchi-a.jp
Design year : 2016-2017
Completion Year : 2018
Leader designer & Team: Yusuke Nakamae, Lu Zhe
Project location: Kyoto, Japan
Gross Built Area: 1800㎡
Photo credits: Yusuke Nakamae
Clients: Braveman Hospitality & Resorts


