混搭公寓楼
本案是高 4 层的独栋住宅
由中国台湾工作室 HAO Design 设计
建筑面积 364㎡,包含地上 4 层,地下 1 层
房主夫妇都是牙医,家里 2 个小孩
非常重视对孩子的个性培养
楼层设计有 2 种截然不同的风格
男主人希望房子能走工业 LOFT 路线
设计师活用顶楼三角造型的天窗
打造粗糙沉稳的功能空间
4 楼其实是挑高设计
在阁楼开辟一块夹层用作书房
由黑铁和木材制成的螺旋梯,精致而古典
优美的弧线宛如展开的天鹅翅膀
沿梯而下可欣赏一整面书墙
墙边空地正好可摆放男主人的健身器械
木材的沉稳色调
和工业风水泥、砖块墙面非常搭
同时,提升空间质感
健身房旁边是影音休闲区
当中设有中岛吧台
这一层带 2 个露天阳台及 1 间储藏室
水泥房梁存在感十足
也为狭长的空间划分清晰明朗的界限
运用大面积砖墙创造连续空间
充满好莱坞电影的场景感
灰蓝色丝绒休闲沙发
搭配形状不规则的咖色绒毛地毯
时尚又狂野,非常吸睛
中间的吧台既能做简餐
也可用作酒水食物储藏柜
大空间的墙面设计是最容易被忽略的
2 排置物架既填补空间
也非常方便实用
1~3楼风格来了个 180° 反转
设计成女主人最爱的美式优雅空间
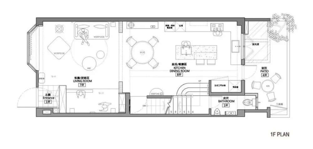
咱们先来看看 1 楼平面图
这一层是公共空间
整体采用纯白和原木相间的色调
能让室内显得更大更明亮
在客厅和餐厅之间有一道圆形拱墙
典雅的欧式风格美化了梁柱
为狭长的空间增加丰富的层次
客厅悠闲氛围呼之欲出
设计师利用有限的自然光源
为家人和小孩创造适合聚在一起的空间
简约的现代布艺沙发搭配小圆几
蓝黄撞色更加活泼
拱墙另一边是餐厅和厨房
清新的湖蓝色中岛和橱柜营造自然氛围
一扫锅盆叮当的忙乱感
黄铜灯具提升空间调性
宜家风的置物架注重实用性
一楼客用卫生间也使用纯白色调
黄铜元素搭配白色方砖
复古又简洁
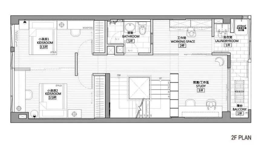
2 楼设有小孩房
以及洗衣间、开放的书房和储藏室
小孩房设计的非常有特点
入口处分别有 2 道通往各自房间的门
却在屋子中轴线设了一扇推拉门
灵活隔离了两间卧室
创造半封闭空间
这样利于孩子培养感情
同时也能训练他们的自主能力
小书房也布置的可爱实用
原木色书架在楼梯与书房间形成阻隔
白色百叶窗保持充足光线
卫生间沿用儿童元素
糖果绿和柠檬黄组成撞色搭配
用白瓷砖保护易沾湿的墙面
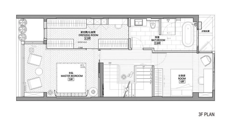
3 楼共有 4 间房
分别是主人房、衣帽间、浴室和女孩房
主卧使用混凝土墙面涂层
不加修饰的肌理透露着清冽的气息
实木拼花地板质感温润
湖蓝色灯芯绒家具奢华典雅
极好的调和房间氛围
设计师在每个房间都设置了视觉亮点
蓝色储物柜让浴室显得充满活力
地下室用作车库和工作间
可以容纳 2 辆车
地点:中国台湾
面积:364㎡
设计:HAO Design

