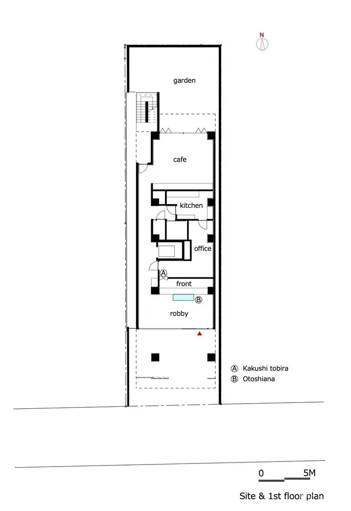
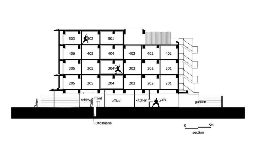
这是一座关于“影”的建筑。它是一间名为“黑暗忍者”的酒店。坐落于京都市中心,临近京都皇宫的西面,其所在地区的建筑多为住宅、小商铺、公寓、酒店。该项目场地的临街面宽9米,进深35米,是典型的京都建筑地形。基于此,我们规划设计了一间5层楼高且仅有21间住房的小型酒店。
 
 
该项目的客户是来自京都附近的甲贺市,那里被视为忍者的发源地,他的祖先说不定就是位忍者。就该项目而言,“忍者”在这里又代表着什么呢?种种关于忍者的故事里,他们总是与“影”为伴,也渐渐成为了影子,来去无踪。
 
 
因此,我们便以“影”作为这间酒店的设计理念:神秘、幽暗、谧静,却有着强烈的存在感。该建筑在外立面上所展现出的虚多于实,这与设计理念相呼应,体现忍者如影子一般,可藏身于任何地方。整个外立面都覆盖着“格子”,一种日式窗格。建筑的一楼、二楼、顶楼分别安置了与外立面垂直的屋檐,但这并不影响窗格的整体效果。外立面的窗格其实是由两层组成,每一层都带有交叉V形图案,每个图案相互间隔半个跨度,以加深“影”的效果。
 
 
每个单个窗格的一侧面被漆作褐色,包括正面在内的其余面均为黑色,这样一来,访客从东侧走来时,他们将会看到一座褐色外立面的酒店。越接近酒店越会发现,酒店逐渐退去褐色的外表,成为一座全黑的建筑。室内的设计重点在于“黑暗”,通过各种手段使其能在这座现代化酒店里得到最大化的体现。并且,游客可在酒店体验一把忍者式的花招。
 
 
例如,酒店大堂前台前侧的地板处嵌有一个“落穴”,这是一个忍者的机关陷阱,在其很深的底部装有50根尖锐木刺。当然了,这个机关上覆盖着一层与地板齐平的厚玻璃。由于机关的位置正好在通往前台的必经途中,当游客初次经过时必会大吃一惊。
 
 
当游客抵至前台时,迎接他们的并非酒店员工,而是一面饰满金叶的实心墙。霎时间,一个忍者现身于“隐门”,这是一道隐形旋转门,在忍者(前台工作人员)突然出现时打开,又迅速闭合。忍者的暗器“手里剑”被作为装饰嵌在酒店内墙上。酒店内神出鬼没的不止是前台工作人员,连忍者的剪影也是,以“错视”的方式,时而投影到一楼主通道的墙上。此外,酒店员工的穿着打扮也均是忍者模样。如此这般,游客随时随地都能感受到该酒店内忍者强烈的存在感。
 
 
 
 
 
 
 
 
 
 
 
 
 
 
 
 
 
 
 
 
 
 
 
 
 
 
 
 
 
 
 
 
 
 
 
 
 
 
 
 
 
 
 
 
 
 

 
 
 
 
 
 
建筑设计:Eastern Design Office
项目地址:京都,日本
建筑面积:695.0 m2
项目年份:2019
摄影师:Koichi Torimura; Takashi Inaizumi, Jeffrey Friedl
厂家:Autodesk, A&A, Euromobil, Riviera, Koizumi
业主:ICHIKA Corporation
工程师:Ihara Structure Design Studio
景观:Eastern Design Office
施工方:Soushin Kensetsu Co., Ltd.


