客户Akademiska Hus室内建筑师White Arkitekter,Case Studio,Tengbom More
Client Akademiska Hus Interior Architects White Arkitekter, Case Studio, Tengbom More Specs Less Specs
Client Akademiska Hus Interior Architects White Arkitekter, Case Studio, Tengbom More Specs Less Specs
© Kalle Sanner
(卡勒·桑纳)
架构师提供的文本描述。把以前分开的部门合并成一个新的建筑和土木工程部,需要重新设计,以创造现代的工作方式。中心的想法是为人们创造更多的开放空间,让人们见面,并使活动在设施内可见。建筑师们把注意力集中在内部,改变建筑的静态和封闭形式,创造了更大的机动性和更现代的工作方式。
Text description provided by the architects. Merging the pviously separate departments into a new Department of Architecture and Civil Engineering called for a redesign to create modern ways of working. The central idea has been to create more open spaces for people to meet and make the activity within the facility visible. The architects have focused on the interior; changing the building’s static and closed form has created greater mobility and more modern ways of working.
Text description provided by the architects. Merging the pviously separate departments into a new Department of Architecture and Civil Engineering called for a redesign to create modern ways of working. The central idea has been to create more open spaces for people to meet and make the activity within the facility visible. The architects have focused on the interior; changing the building’s static and closed form has created greater mobility and more modern ways of working.
© Kalle Sanner
(卡勒·桑纳)
人们在中央中庭的街道上碰头,阳光透过金字塔形的玻璃屋顶照射进来。一家中央咖啡馆,一个新的学习中心,客厅-从字面意义上说-都聚集在同一层楼上。室内气候和声学的改善使这一空间成为建筑物的中心。空间用于各种用途,综合午餐和学习场所是如何激发创造力和使会议成为可能的例子。
People meet on the street level in the central atrium which is flooded by daylight through a pyramid-shaped glass roof. A central café, a new learning center, drawing-rooms – in the literal sense – are all gathered on the same floor. An improved indoor climate and acoustics make this space the heart of the building. Spaces are intended for a variety of uses and integrated lunch and study places are examples of how to stimulate creativity and enable meetings.
People meet on the street level in the central atrium which is flooded by daylight through a pyramid-shaped glass roof. A central café, a new learning center, drawing-rooms – in the literal sense – are all gathered on the same floor. An improved indoor climate and acoustics make this space the heart of the building. Spaces are intended for a variety of uses and integrated lunch and study places are examples of how to stimulate creativity and enable meetings.
© Kalle Sanner
(卡勒·桑纳)
该图书馆以前是一个封闭的空间,现已搬迁到沿门面的主要位置,作为向路人提供教育和知识的商店窗口。与著名的相邻楼梯,名为Kunskapstrappan(知识阶梯),这一空间已成为一个多功能的学习厅,为演示,会议和聚会,人们差不多24/7。
Formerly a closed space, the library has been relocated into a prime position along the façade, serving as a shop window for education and knowledge to passers-by. Together with the prominent adjacent staircase, named Kunskapstrappan (The Knowledge Staircase), the space has become a multifunctional study hall for psentations, meetings and gatherings, people milling about almost 24/7.
Formerly a closed space, the library has been relocated into a prime position along the façade, serving as a shop window for education and knowledge to passers-by. Together with the prominent adjacent staircase, named Kunskapstrappan (The Knowledge Staircase), the space has become a multifunctional study hall for psentations, meetings and gatherings, people milling about almost 24/7.
© Kalle Sanner
(卡勒·桑纳)
材料的概念,所有的表面都有多功能的用途,流动和良好的工作在一起,已经完美地执行。通过选择一种主要材料:未经处理的松树,这一实用哲学也是可见的。它经得起粗糙的治疗和刺穿锋利的钉子,而不失去它的吸引力。地下室,原来是黑暗和未使用,已经变成了一个灯光和诱人的空间,通过部分拆除地板托梁。由于它的混凝土表面,它所建的工场被一种有利于创造力的不起眼的特征所支配。
The materials concept, where all surfaces have multifunctional uses, flowing and working well together, has been flawlessly executed. This pragmatic philosophy is also visible through the choice of one primary material: untreated pine. It withstands rough treatment and the puncture of sharp nails without losing its appeal. The basement, formerly dark and unused, has turned into a light and inviting space through the partial removal of floor joists. With its concrete surfaces, the workshops it houses are dominated by a no-frills character conducive to creativity.
The materials concept, where all surfaces have multifunctional uses, flowing and working well together, has been flawlessly executed. This pragmatic philosophy is also visible through the choice of one primary material: untreated pine. It withstands rough treatment and the puncture of sharp nails without losing its appeal. The basement, formerly dark and unused, has turned into a light and inviting space through the partial removal of floor joists. With its concrete surfaces, the workshops it houses are dominated by a no-frills character conducive to creativity.
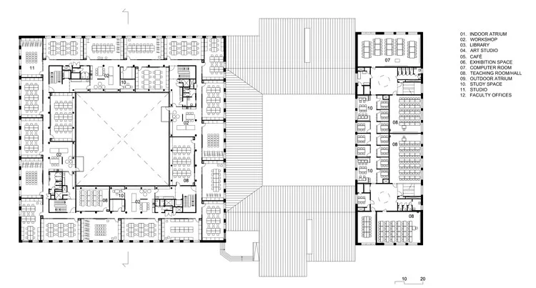
Plan 1 1:500
Plan 1 1:500
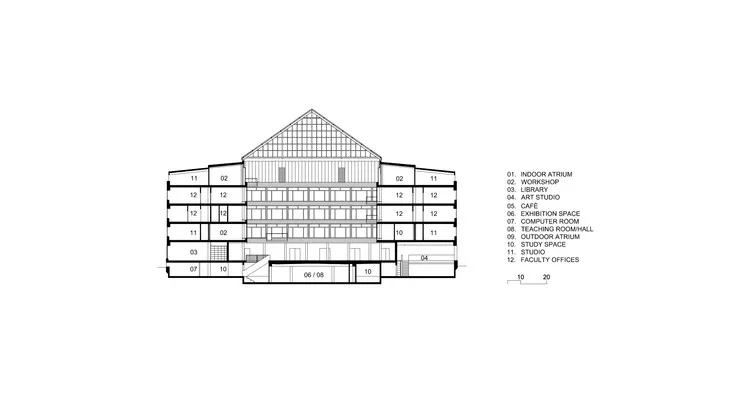
Section 1:500
Section 1:500
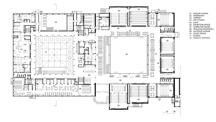
Plan 2 1:500
Plan 2 1:500
他说:“我很荣幸能重新设计一所学校,我在那里学习和工作,都是一名教授。”对这个地方有一种怀旧的依恋,对我和团队中的每一个人都是如此。个人经历帮助我们理解了如何适应未来合作研究的方式,“怀特的乌拉·安东松(UllaAntonsson)说,他是该项目的首席设计师。
”It is an honour to redesign the school where I both studied and worked as a professor. There is a nostalgic attachment to the place, for me and for everyone on the team. The personal experience has helped us all to understand how to accommodate a future way of collaborative studies,” says White’s Ulla Antonsson, lead architect for the project.
”It is an honour to redesign the school where I both studied and worked as a professor. There is a nostalgic attachment to the place, for me and for everyone on the team. The personal experience has helped us all to understand how to accommodate a future way of collaborative studies,” says White’s Ulla Antonsson, lead architect for the project.
© Kalle Sanner
(卡勒·桑纳)
保护遗产建筑并使其可持续发展给我们的城市带来了最好的价值。该项目已获得Milj byggnad Silverage认证,这是一项重大的技术挑战。伟大的设计经得起时间的考验,虽然内部是全新的,外观仍然是瑞典中世纪现代设计的一个极好的例子。
Preserving heritage buildings and making them sustainable brings the best value to our cities. This project has been certified to Miljöbyggnad Silver, which has been a major technical challenge. Great design stands the test of time, and while the interior is completely new, the exterior remains an excellent example of Swedish mid-century modern design.
Preserving heritage buildings and making them sustainable brings the best value to our cities. This project has been certified to Miljöbyggnad Silver, which has been a major technical challenge. Great design stands the test of time, and while the interior is completely new, the exterior remains an excellent example of Swedish mid-century modern design.
© Kalle Sanner
(卡勒·桑纳)
Architects White Arkitekter
Location Gothenburg, Sweden
Lead Architect Ulla Antonsson
Area 25000.0 m2
Project Year 2017
Photographs Kalle Sanner
Category Refurbishment
Manufacturers Loading…

