特拉维夫设计师Maayan Zusman翻新了这座城市的一套两居室公寓,为高大的居民提供了一系列定制细节。
这栋20世纪40年代的公寓是为一对运动员夫妇翻修的,他们的身高让当地设计师创造了一些定制的细节,从橱柜的高度到运动鞋的储物柜。
Zusman与建筑师Amir Navon、室内设计师Karen Brockmann以及特拉维夫研究生设计项目Studio 6b的学生合作设计了这座住宅。
“这个空间里几乎所有的东西都是定制设计的,”设计师说。“我们考虑了包括厨房、床、浴室柜等在内的几乎所有元素的高度略有不同。”
这套两居室公寓位于特拉维夫的文化中心Habima广场。120平方米的住宅采用矩形平面,在公共空间和私人空间之间一分为二。
走廊横跨整个住宅,作为“中央大道”,将所有的房间连接在一起。
靠近入口的是一个带薰衣草橱柜的厨房。“厨房的颜色对于一个典型的以色列厨房来说是不寻常的,是紫灰色的色调,”设计师说。
厨房与一间餐厅和一间客厅相连,有一个深蓝色的手握式模块化沙发、一盏Flos壁灯和两个由古比(Gubi)设计的黑色Ronde吊灯,悬挂在一张配有黑色椅子的黑色餐桌上方。
Zusman选择用许多黑色、白色和灰色的物品来装饰住宅,以创造一种现代感,而客厅的几何地毯则采用绿色来增加色彩。
完成主要生活空间的是一个由混凝土柱子划分的角落,柱子下面有一个长长的金属框架书架和书桌。它的灰色地板与该区域的其他部分相抵消,而不是其他地方的人字形地板。
Zusman说,改造空间的挑战之一是,公寓“非常暗”,“许多意想不到的支撑梁隐藏在低矮的天花板里,只有在拆除时才会显露出来”。
设计团队还必须考虑未来加强建筑的发展计划,以及创建额外的安全密室。
设计了一间通往主卧室的房间,如果需要,可以通过隐藏在橱柜中的两扇滑动门分别进入主卧室并关闭。
主卧室设计了一个新房间,如果需要,可以通过隐藏在橱柜中的两扇滑动门分别进入和关闭。
“当最靠近主卧室的一间被关闭时,这个房间将包含卧室和主浴室,”Zusman说。“如果第二个关了,这个房间将包含一间卧室和两间浴室。”
主卧室位于公寓的尽头,除了一个卧室、办公室和储藏空间,还有两个浴室。
浴室由卧室的玻璃墙控制,除了黑色的固定装置和外壳外,几乎全是白色的。
主浴室里是一个定制的混凝土工作台,用来存放训练器,配有外部开口用于通风。它贯穿整个房间,把床和浴室连接起来。白色窗帘搭在上面。
这对夫妇的床有一个用木条做成的定制黑色背景。床垫对他们来说是超长的顶部,依偎在一个白色的平台底座。床的两边都是黄铜的牙线墙壁。
Zusman和Navon在特拉维夫合作了其他几个类似风格的项目,包括另一个带有暴露混凝土的住宅,一个带有玻璃房间和人字形地板的单元。
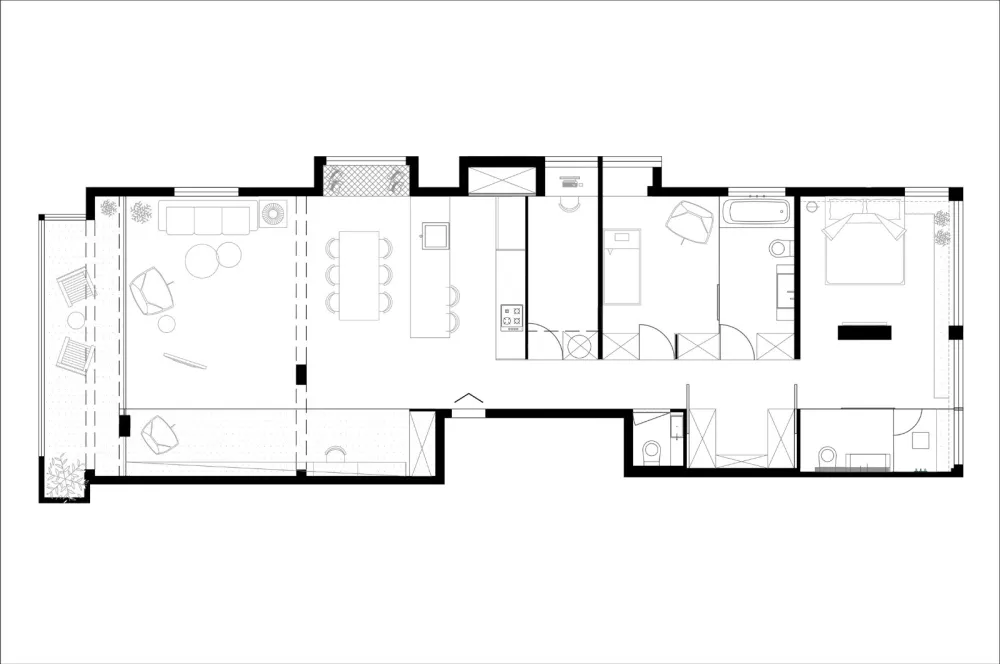
▼住宅平面图


点点赞赏,手留余香
点点赞赏,手留余香