Mirror Design
探索事物于不同角度的发散认知
以相对述平化的方式来阐述其内在诸多的复杂可能性
挖掘更多不同的生活方式探讨和对人性的再思考
让空间更具可考究及情感共鸣的建立……
MEI JI FILE 专辑 × 境象设计 \ 内建筑的形与色 中国 . 温州 “当充满活力和意义的内容处于中性状态时,结构的形象和设计就显得更加清晰,这有点像在自然或人为灾害的破坏下,城市的建筑遭到遗弃且只剩下骨架一样。人们并不会轻易地忘记这种再也无人居住的城市,因为其中所萦绕的意义和文化使她免于回归自然。” –德里达(JacquesDerrida)
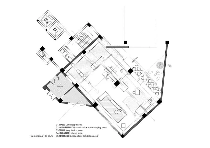
原木作展厅内局部区域的翻新.原意更多的是想要推翻传统以产品为主的展厅落点.以一种变相的方式来阐述空间与产品的多方面结合.由于是局部的翻新.在内流线及相邻空间的衔接上.我们做了更多的思考.使其可以存在的更加自然而然.而非有大动干戈的痕迹.
The original wood is used for the renovation of partial areas in the exhibition hall. The original intention is more to overthrow the traditional product-based exhibition hall. In a disguised way, the multi-faceted combination of space and products is explained. Because it is a partial renovation. We have done more thinking about the connection between the inner flow line and the adjacent space, so that it can exist more naturally, instead of showing signs of violent action.
SPACE EXPLOSION
DESIGN WORK ONE
由形而演 . 于量则变
这是我们在确定格局前所需要多加思考的点位.诸如产品与空间如何更好的相辅相成?产品对于空间内的存在方式以及产品本身情绪化的控制再到后来的反向思考.空间与产品的必要性是不是可以通过另外一种方式得以诠释.
This is thepoint that we need to think more about before deciding the pattern. Such as howthe product and Space Better Complement Each Other? Product for the existenceof the space and the emotional control of the product itself and later thereverse thinking. The necessity of space and product can be interpted inanother way.
由原动线进入翻新区的心理转换过程.不仅仅只是考虑局部翻新的跳脱.更多的会从心理转换的角度去分析原动线进入翻新区的落差平衡.
From theoriginal line into the renovation of the psychological transformation process.Not only consider the partial renovation of the jump. More will be from thepoint of view of psychological transformation to analyze the original line intothe renovation area of the balance.
以切内的方式来重组物件与间隔之间的关联性.通过某种介质的脱离来实现黑匣的可独立性.再以灯光阴影作为脱离.使其实现分明的悬浮感.
Reorganizesthe Association between an object and an interval by cutting in. Theindependence of the black box is realized by the separation of some media. Thentake the light shadow as the detachment. To give it a distinct sense oflevitation.
于光线交织物件与空间的叙述性.
以片墙的方式来间隔主次动线的分流.让其行为反推其心理变化.
以体块的方式来整合松散的部件关系.使其贯穿.于分区内形成自定的边界.
The light intersects the narrative nature of the fabric and the space. The division of the primary and secondary moving lines is separated by a piece of wall. Let its behavior reverse its psychological changes. The loose part relationship is integrated by the way of mass. Make it penetrate. Form a self-determined boundary within the zone.
意打破某种既定的内序和规则.
使其内部的元素更具多样化.
Theintention is to break a given order or rule. Try to disrupt the reorganizationafter. To make the interior more diverse
. And then pr
esented through thepsent space.
DRAWING PRESENTATION
– Name | 项目名称
-Project Name | 项目地点 –
– Area | 项目面积
– Project time|项目时间 –
“活得越久,生命就越加美丽。如果你愚蠢地忽视美感,您很快会发现自己失去了它,生活将陷入困乏。但如果你是明智的追求者,它将伴随你一生。”
——弗兰克·劳埃德·赖特
对于私宅生活方式的提炼.更注重由格局再出发的整体性考虑.再结合实际的功能需求.转而控其主氛围的营造到最终的气质输出.
Therefinement of the private house lifestyle. Pay More attention to the overall considerationthat sets out again from the pattern. Combined with the actual functionalrequirements. Turn to control the main atmosphere of the building to the finaltemperament output.
DESIGN FLOOR PLAN
DESIGN WORK ONE
于内场的处理渲染.更为关注其内外的双重精神塑造.再反馈到对功能诉求的理解.
Processing rendering in the infield. More attention to itsinternal and external double spiritual molding. Then feedback to the functionalrequirements of understanding.
常态关注的背后.加强对于生活层次的深入和再剖析.由日常作为切入点.来作为空间及理念传达的基点.
Behind thenormal attention. Strengthen the depth and re-analysis of the level of life. Bythe daily as the entry point. To serve as the basis of space and conceptcommunication.
以重组的方式来重新定义空间与间隔的界限.试图梳理其内在可串联的隐藏关联性.
Redefinethe boundaries of space and spacing in a reorganized way. An attempt is made totease out the hidden associations that can be concatenated internally. Striveto be united by points.
围绕人为的日常变化及所处空间的叙事性来作为情感寄托的可延展点.去探讨生活方式更多可能性的存在.意图打破某种内定框架的规则输出.
Around theartificial daily changes and the narrative of the space as emotional sustenanceextendable point. To explore more possibilities of lifestyle. Rule outputintended to break a built-in framework.
相比较更为直接的阐述.更倾向富有隐喻的褒贬.
Its moredirect. Its more metaphorical.
其空间多延用竖向转换思维的方式来梳理.着重点多在于对相关材质整体性的衔接考虑.
Its spacemulti-extension uses the vertical transformation thought the way to comb. Moreemphasis on the overall quality of the materials concerned to consider theconvergence.
对于分区的界定.不再仅仅局限既定的格局性.更多的思考其动线的贯穿及空间趣味性的梳理.让彼此相邻空间保证独立的同时.也可以发生日常的联系……
Thedefinition of a partition. Is No longer limited to the established pattern.More thinking about its line of penetration and spatial interesting carding.Let each other adjacent space guarantee independence at the same time. Dailycontact can also take place..
使其归于常态.归于实际及生活.让空间更为真切的融入当下的状态.不再是生硬脱离空间的虚幻.
To bring itback to normal. To reality and to life. Let the space more real into thecurrent state. Is no longer a rigid departure from the illusory space.
对于我们自身的诉求.我们更希望脱离外饰的直观表达.也许外在的形式普遍会作为人视的焦点.但透过人视.我们希望可以看到的更深.更远……
What wewant for ourselves. We pfer to get away from the visual expssion of theexterior decoration. Perhaps the external form will generally serve as thehuman focus. But through the eyes of man. We want to look deeper. Further..
由此带来的思考.也是我们更为关注和反省的.
The thoughtthat comes from this. It is also what we pay more attention to and reflect on.
– Name | 项目名称
-Project Name | 项目地点 –
– Area | 项目面积
– Project time|项目时间 –
ABOUT DESIGNER
成立于2016年的境象设计师事务所‘architects_mrd’,涉足室内建筑及商业空间等领域类型,致力于探索事物于不同角度的发散认知,以相对述平化的方式来阐述其内在诸多的复杂可能性,借此来挖掘更多维度的设计思考和探讨。
Architects_mrd ,founded in 2016,Set Foot in the indoor architecture and commercial space and other types of fields, committed to exploring things in different angles of divergent cognition, in a relatively flat way to elaborate its inherent many complex possibilities, take this as a way to explore more dimensions of design thinking and discussion.
相关理念/ Related Concept
于通过室内建筑的方式来梳理内络和结构,再对其界限进行重组和再打破,借助既定的格局来强化对相关设计语言的引导性叙述,也意在为项目注入更多的可对外传输点,以此来更有效的反馈到对自身空间的操作性思考。
不设内与外的精准界限,试图通过再结合的方式来连接人与空间,人与人及人与环境的情感维系,也透过更多维的角度发散去重拾日常所被忽略的断层,让回归的意义更落实到日常和更为平凡的事件,再通过我们自己的方式去挖掘更多不同的生活方式探讨和对人性的再思考,让空间更具可考究及情感共鸣的建立。
内容策划 / Presented
策划 Producer :Mei Ji File
撰文 Writer:Long 排版 Editor:W/fei
图片版权 Copyrig


😊
很好得文章