YOD design lab新作,一家非常有特色的餐厅,位于基辅历史悠久的地区,该餐厅位于该建筑物的地下室和底层,该建筑物曾是1797年建的豪宅,面积
坚固的砖墙和弧形圆顶定义了场地的美
设计师只是强调一些真实的元素,并在此基础上
创造了新的当代室内装饰,
隐藏所有工程系统以体现该地方的独特特征。
你不会在Samna的大厅内看到任何电线。
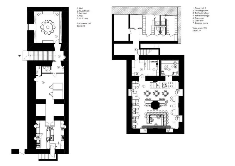
该餐厅有5个大厅,约有120个座位。
餐厅内部有很多铜元素,
它强调了这个地方的贵族气息,
除了内部的铜之外,你还可以看到实心的橡木,皮革和钢。
设计师选择它们作为“ Ypsilantis住宅”蓬勃发展时非常普遍的材料。
PROJECT TEAM
YOD设计工作室是一个由设计师,建筑师,设计师组成的团队,主要以商业设计为主,在设计过程着重于对象的个体方法,并引入实验性艺术和设计解决方案,形成最终的形象。室内设计与主题设计以及装饰材料都息息相关,因此许多家具都是单独设计的。
Risentimento
88平方米的地下酒吧,灯和复杂的金属管系统相连,像人体的静脉一样渗透到整个空间中。在背光和对比度轮廓的帮助下,达到了某种深度的幻觉。酒吧区域的主要表面是轻质石膏和钢。
PURI CHVENI
550平方米的传统格鲁吉亚美食餐厅设计,它位于二十世纪初建立的建筑物的市中心。宽敞的中庭在其中心部分形成了一个高达12个斜角的天花板,粘土和木材是内部的主要材料,自然光通过阁楼窗户进入室内。餐厅的大部分厨房元素都是开放的,因此游客可以用眼睛观看khinkali塑形和khachapuri烹饪的过程。
ZWIN – SHOco
295平方米的多格式餐厅项目,该项目结合了现代糖果面包店和酒吧。它的独特之处在于在同一空间中两个不同品牌的组合,它们可以彼此独立地使用不同的产品。在项目设计中,使用的是地道的材料:所有木制家具和装置均由橡木酒桶制成。

