湖上春来似画图,乱峰围绕水平铺。
松排山面千重翠,月点波心一颗珠。
本案设计师着眼于地方文脉,纳运河文化之雅韵,在一方浅水的静谧中晕染整个自然光源,打造出艺术与生活并存的美学空间。
工而有意的手法和剥离水云的诗意,显映的是弘阳隋塘售楼处稳重内敛而富于新意的最初轮廓。
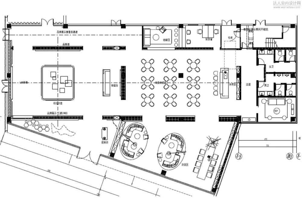
沙盘区

入门处,悬挂在上方的水滴状吊灯,错落有致地倾泻而下,仿若置身于“苍茫一水连空碧,浩渺烟桡向翠微”之中。
洽谈区
艺术肌理装饰画将视线的延伸感诠释得淋漓尽致,洽谈椅简约大气,通达的处理贯穿整个洽谈区的空间格局。
深度洽谈区
水墨画缥缈俊逸的画风与硬装相得益彰,白石,绿松,青瓷,古卷,层层叠叠,却又整齐。大气烘托古典东方意境。
别致典雅的家具采用了灰白色调和超纤维皮质面料,折射出空间独有的人文气息。
山水纹理的自然元素依托水墨晕染的大理石和地毯,提炼出符合现代东方审美的魅力。
轻柔的窗帘被微风吹拂,和靠枕呼应出了视线的朦胧感,寄而心期,意在此间。
VIP室

映入眼帘的挂画赋有肌理感的勾勒和拼接让整个空间更加富有层次感。
温暖的实木色和金属在光的相衬之下,调和出了温婉迷人的优雅气息。
有力的线条游走穿梭在金属和山水迸发的块面之间,刚柔相济。
项目背景
招商弘阳杭州随塘售楼处,位于杭州市北部的塘栖古镇,与湖州市的德清县接壤,距市区中心约20公里,距区政府所在地临平约13公里。
著名的京杭大运河穿镇而过,使其成为苏、沪、嘉、湖的水路要津,历朝历代以来,塘栖均为杭州市的水上门户。
项目名称:招商弘阳杭州随塘售楼处
项目地址:杭州市余杭区
设计单位:上海禾悉建筑设计有限公司

