处于两面界墙之间,这片空间仿佛是附属的,并不具有独立性。这就是项目所在位置具有的现状特征。造成这种状况的原因是,固执的卖家拒绝将这块区域出售给出价高的买家。因此,这里一直处于空置的状态。原住户已经不在此地居住。而对于项目的翻新修复,建筑师力图将其打造成一个梦想家园,在这里,家人生活温馨,朋友联络亲密。
这个项目开工到完成耗费7年时间,它仿佛是由很多人亲手打造成的一件礼物。不仅仅有建筑师,还有房屋主人和一些其他非专业人士,虽然大家对于设计和建造并不精通,但是凭借着大家的热情,以及项目本身所具有的凝聚力和引导力,翻新修复项目最终顺利完成。
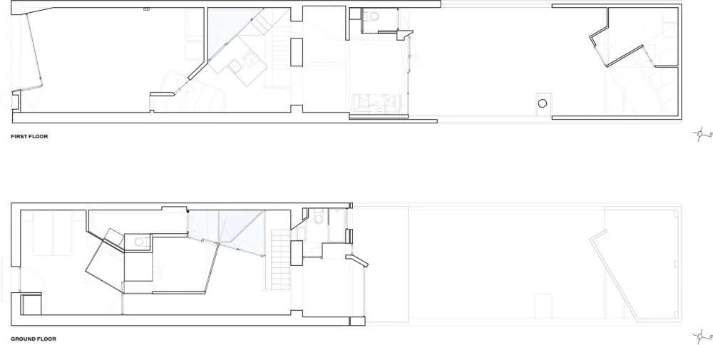
房屋与街道唯一的联系出入口是新建的车库门。一层在已有的窗户上装饰有一个种植箱,攀岩植物从箱中探出脑袋,顺着窗户栏杆向上蜿蜒。

在项目开始,建筑师就得知房屋是附属于车库的车库也构成了房屋很大一片使用空间。该楼层的其他区域虽然与之分隔开来,但却与这一部分空间或多或少地发生联系。车库以外的空间各司其职又相互连通,串联起住户的所有日常生活。厨房占据着房屋的中心位置,成为连接庭院的纽带。餐厅和起居室位于既有建筑部分,面向城市街区的内部,私密性更好。房屋后部的空间可用作办公室或书房,环境静谧,私密度良好,适合工作、学习和思考。

厨房周围的楼梯连接一层和二层。几度转折的楼梯走势让空间的连通性得以加强。卧室通过壁橱与公共区域隔断,同时与庭院相连,又能看得见街道。保证住户在享受自然景观的同时,又能关注到社区动态。

城市街区内部的墙壁围合出的这一方天地容纳了所有生活所需的住宅内部空间。一个倚靠着墙壁的楼梯一直通向屋顶,通向宽敞的室外(在界墙之间),让人视野豁然开朗。这里还可以在未来被改造为起居室,由此可见翻新项目的连续性和适应性。









建筑师 P-M-A-A
地址 西班牙
类别 更新项目
主创建筑师 Adrián Jurado, Jaime Fernández, Magda Barceló y Albert Guerra
建造 Marc Ossó
面积 160.0 m2
项目年份 2017
摄影师 José Hevia

