从明后而嬉游兮,登层台以娱情。
见太府之广开兮,观圣德之所营。
———《铜雀台赋》曹植
神兽嘲风,山石溪隐,茂林修竹,云崖风清。初见新旅•明樾台示范区,则足见开发商南昌新旅置业专注地产的满满诚意与倾情。东方美学,道法自然,朦胧静谧,隐逸藏情!
作台赋而流千古,追思魏晋,筑台娱情,然风骨一人,为曹魏子建是也!今新旅首开“台”系力作,盛邀上海柏涛建筑,朗道景观,G-ART集艾等国内外一线专业设计团队联袂打造,室内陈设艺术部分由DOMUS ID&DESIGN【深圳市多莫斯设计有限公司】担纲力献!
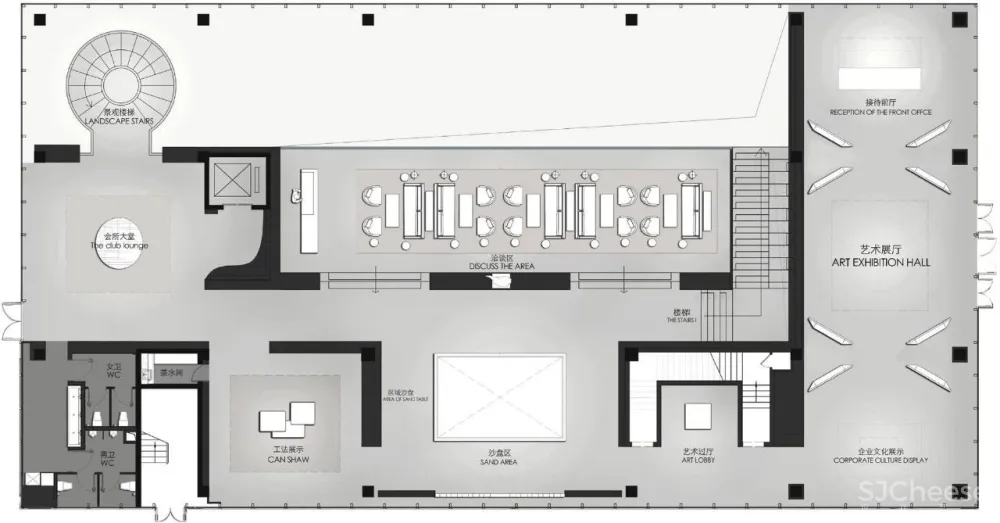
开放的平面布置与动线设计模糊了空间的界限,给了艺术陈设以恰当的视觉停留,在横向与垂直的两个维度里都是甚为妥帖的。人行其间,步移景现,是为空间妙处。平面规划为三层双挑空外展区,顶层配套办公的功能布局。由旋转楼梯,垂直步阶及尊享电梯来完成三向垂直交通联动,平行界面承启有秩,开合有序,明亮而舒展。室外的步阶廊道,水榭竹林给入观者以完整的心理铺陈,由外而内的承启转换淡若自然!
知書達禮丨登高必賦丨描瓷悅畫丨杯茗之敬
著于竹帛谓之书。书者,如也。《说文》步入首层艺术大堂,8米通高书墙贯通整个大堂主立面,由八片书简造型的温润石材片墙将横长的大堂拆解成接待区;艺术展厅;品牌三个段落,凸显了一个中心。藏书,读书,著书,书是为开启本次空间旅程之首篇。为了更好地加持这一设计立意,设计师以竹为线创作了且唤名为“鱼简”的大型艺术装置,浮悬于上。结合古简的简结依存关系,做元素拆分、融合、演变、重组,用一种全新的语汇来描摹文化的脉络,以隐喻文化传承之必要与必然性!她似是文人墨客笔下的线条余落,亦或是以鱼通余的美好寄寓。
万物有声公园生,五园为聚,家园而生!品牌区的呈现试图以多媒体的方式与观者娓娓道来生活常态之美。然而现下的一切美好生活的开端皆离不开科技的进步与更迭,是艺术悄然启发了科学。杉本博司老先生的作品被设计师恰到好处地应用到此,用以来说明这一深刻哲学道理。
【不歌而诵谓之赋】汉书。除却应有的沙盘呈现,移步至瞰台,这里是可以凭栏观望之所。辅以水吧,三五成群,恬静话常。大抵常态下的洽谈区该是热闹亦或是杂闹的场面居多,设计师的立意是有心去克制这样的发展,胡桃原木、天然云石、进口素粗棉麻材质被带入,安静平和的气息衍生的力量果然不同凡响。摈弃一切浮华的表现主义,装置“学者云岩”独立其侧,缀以二三文玩雅物;聊以焚香,述而以礼。
行至端处是转换至地下层的灰空间会所大堂,链接着工法区;洗手间;空间形态也多是颇有亮点的,佛前贡花,藏经束阁。 旋转扶梯划破门洞被框入画,精彩不言而喻!
负一层会所是为台之基石,除却临窗的开放公共区间,设计把大面积的场地留给了各种会所功能配套。透过通体两层高度的10米玻璃幕墙是无尽的沙石、烟波缔造的美妙庭院,通灵空旷,豁然开朗。
华灯初上,暮以养心,廊柱之上贯通上下两层高度的壁挂吊灯是为设计与实施之重点难点。虽几经周折,费尽心力,终算是功夫不负有心人,其最终效果呈现甚为可喜。灯以迎客,以望人归,期间倒有几分恰到妙处!
留白是天然去雕饰的自信表现,关乎空间,时间,关乎于人,温度和情感。负一层的洽谈空间陈列延续了首层精神,细微处做了些许局部调整,强调的是空间的承袭、呼应与共鸣。
山秀芙蓉,溪明罨画。【宋•苏轼 】明皇世孙,八大山人朱耷是为名满天下的一代宗师,谓之画圣之名。大抵习画之人皆尽知其号,然时常有人误解此为八大名家,疑似竹林七贤之类,诸如等等,权当笑谈作罢!因其世居南昌,道来也颇有几番渊源,便借题发挥聊作主题来打造艺术长廊。摹古非易事,自古已矣,在此深情鸣谢艺术家刘文全老师的倾情相助!
煮茶溪畔寺,望月海边楼 【宋·王禹偁】构一斗室,相傍山斋,内设茶具。教一童专主茶役,以供长日清谈。寒宵兀坐,幽人首务,不可少废者。文震亨《长物志》近来睹读闲书,颇有心得。究其洗茶、择炭、涤器、候汤皆有其法,深以为然。如今茶道之事盛兴,是为喜象。项目西南一隅,亦设一禅意茶室,待三五至宾,烹茶品茗,畅话古今,是为雅事。
室设围炉;台案两种茶道形制。配以当代艺术加工软包罗汉榻与全新制式禅椅组合,亚麻地毯铺设地面,围合有致。臻选百年古树巧作茶台,敦厚朴拙,以一种近乎粗犷的美学形式叙述大自然的馈赠。
红酒雪茄房在明樾台可谓是最为跳脱的功能定义,规格形制是颇为高级的,然而着实要把握好其设计主张的倾斜与平衡。围绕功能,兼顾全局的考量是设计师考虑最多的,将空间暗下来是首要。幽润昏暗的灯光,雾缭水榭的抽象油画,内敛秀美的家具形态,含蓄温和的材质对比将这一切不自觉中带入一种优雅的纸醉金迷里。项目开盘在即,人事繁芜,盛况空前,还有些许空间无法尽然记录,期间亦多有细微不足,颇为感憾。然陈设艺术亦谓之生活日常。格物致知,托物言志,触景而情之所生是也。我们基于本案的设计初衷大抵只是这些前人妙处罢了!
项目名称 |南昌九龙湖新旅•明樾台营销中心
项目地址 |红谷滩九龙湖新城龙虎山大道与上饶大街交汇处
建筑面积 | 1800㎡
完成时间 | 2018年10月
建筑景观 | 柏涛建筑 朗道景观
室内设计 |上海G-ART集艾设计
软装陈设 |深圳市多莫斯设计有限公司
创意总监 | 唐晓年
主创团队 | 岳贵、李由、王广才
撰文作者 | 黄衡
室内摄影 | 黄明德
特别鸣谢 |江西省旅游集团文旅产业投资发展有限公司

