The Hideout是一家由Menard Dworkind建筑设计公司最近设计的美容院。它建在蒙特利尔快速发展的Griffintown社区。沙龙被插入一个新的公寓大楼底部的小型商业空间。
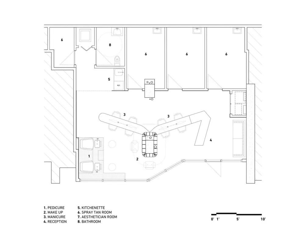
藏身之处的目标是在预算紧张的情况下设计一个温暖的公共环境,产生强烈的体验影响。现有单元的一个重要元素是占据空间中心的大型混凝土柱。布局围绕着这个柱子,作为接待、美甲、化妆和修脚站的中心组织元素。
有限的预算迫使MRDK在战略领域进行创新和投资。中央的柱子用CNC切割的花卉装饰,这种花卉生长在天花板上。这个中心结构被设计成包含指甲油展示、化妆站和储藏室。修脚站由宜家的水槽和从腿上取下来的结构管椅子组成,椅子安装在瓷砖底座上。
为了进一步降低成本,团队协调了激光切割钢台面的CAD切割片和CNCed结构。在接待处,钢柜台折叠在橱柜的前面,让人想起一颗油漆过的钉子。通过覆盖主空间周围的墙壁,道格拉斯冷杉镶板给空间带来了温暖。这种温暖与原始的混凝土地板形成对比,后者仍然有施工记录和标记。













位置:加拿大 年份:2018 摄影师:David Dworkind
版权声明:本文内容由用户自行发布上传或投稿由设计芝士代为发布,版权归原作者所有,设计芝士不拥有其著作权,亦不承担相应法律责任。如果您发现本站中有涉嫌抄袭或侵权的内容,请点此提交工单进行举报,一经查实,本站将立刻删除涉嫌侵权内容。

