Camper的一家新专卖店坐落于纽约洛克菲勒中心,与无线电城音乐厅(Radio City Music Hall)隔街相望。建筑师奥利瓦雷斯以店铺周边的历史文脉为灵感,结合天然的印第安纳石灰石,设计了这一在整个纽约城都首屈一指的文化地标。为了向爱德华·斯通和唐纳德·德斯基设计的无线电城音乐厅中的标志性元素致敬,建筑师在店铺的室内涂装上选用了铝基涂料,同时还在店内放置了一个极具辨识度的大尺寸霓虹灯商标。
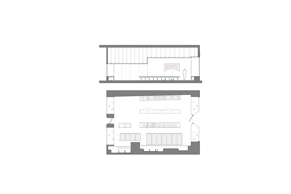
当年,建筑师雷蒙德·胡德(Raymond M.Hood)在洛克菲勒中心的设计中,开创性地在商业零售空间里使用了扶梯这一元素。为呼应这一机械般高效的空间特质,Camper的店铺设计中采用了可移动的储物货架,来减少仓储需求对空间利用率的削弱,为顾客和店员创造一个更通透的空间环境。
此外,为与洛克菲勒中心的立面材质保持统一,店铺内的展台、坐凳以及服务台都是由印第安纳石灰石制成的。唯一的区别则在于:前者是由平瓦拼贴而成;而后者则都是三维的立体物件。借助于QuaraStone公司最先进的机器臂,这些家具都是从完整的石灰石块铣削而来。当拜访者身处店铺之中,他们可以享有观赏无线电城音乐厅的最佳视角。当然,因Camper专卖店的落成,这一场景中所看到的文字内容将增加为“CamperRadioCity”。

建筑设计:CAMPER, Jonathan Olivares
项目位置:45 Rockefeller Plaza, 纽约,美国
主创建筑师:Jonathan Olivares
项目年份:2019
客户:CAMPER
译者:江垚

