WJ STUDIO 万境设计
我们每天约 1/3 的时间都待在办公室里,随着对于办公空间的更多想法融入,传统办公空间不再是一个封闭的空间,而是随着日新月异的信息高速迭代,逐渐成为一个开放的工作交流的区域,这个空间容纳了工作、会谈、甚至可以逐渐衍生出讲座、沙龙,Event等全新的场景,成为了一个全新的媒介,来衔接不同形式的交流。
本次的设计是在一个汽车产业园区中,毗邻运河,设计师希望在为使用者提供舒适办公体验的基础上,创造一个略带酷感、流动而开放的工作空间,以承载未来多变的需求,我们希望打破空间和时间界限,这与当代新型办公空间的态度不谋而合。
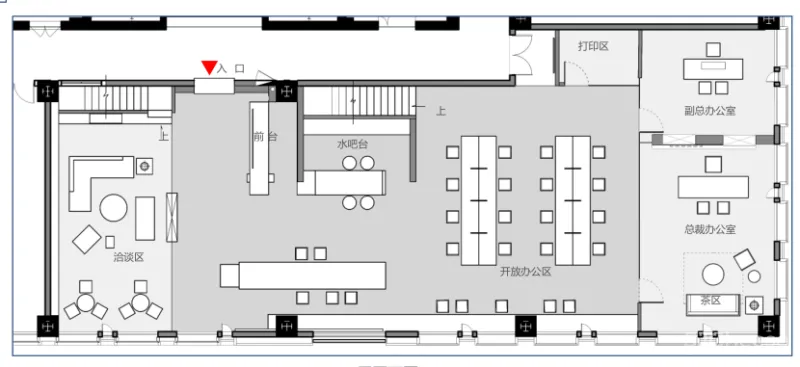
重置空间的流线,成为设计的第一步,共享办公空间的最大特点是在一个开放空间中规划出合理的区域,而合理性变得格外重要,把开敞式办公区域和着用作独立的办公和开会区域间隔着排布,使得使用者可以根据所需在两种不同性质的办公场所高效又自主地切换。
开敞半空区域有着像院落一样的多重空间属性,可以在办公、社交、教育甚至是活动空间之间自由转换。
挑高的空间高度上我们着重考虑空间使用者的使用感,将一层和加层空间进行合理规划,减少空间的对使用者的压抑感。
在材料的选择上,基本整体采用了木饰面伴以镜面和玻璃,这样的做法意在保持办公空间的商务属性,避免了许多共享办公场所设计所陷入的怪圈,过度追求娱乐性而失去了原本的特质。这样可以让在办公空间中办公的人们在快乐的同时还能时刻保有着办公的基调和热情。
而空间的软装上,我们也着重考虑了与园区风格的一致性,空间中的汽车零件装饰,来自于废旧汽车的回收零件,让空间多了几分趣味,又对空间进行了合理的分割,也是对当下可持续理念的实践。
而地面色彩的添加,让空间更加活泼,这样的气氛中,空间的使用者会迸发出更多的灵感与想法。
镜面玻璃拓宽室内面积、增加空间的层次感,连续的玻璃面将更多阳光带入室内,建立起室内外空间的流动关系。
整个改造设计采用减法剥离出空间及结构原型,并克制地将材料纳入空间体系,由此增加空间的视觉高度和阔度,在未来办公空间发展上的新模式上,当下和未来有更多公司的无限可能都将在这里展开。
项目名称:万科运河中心创意办公空间
设计公司:WJ STUDIO万境设计
设计团队:朱陈韶华、张永慧
项目面积:一层267m2、二层65m2
设计时间:2020年6月
完工时间:2020年12月
项目主材:地毯、木地板、木饰面、石材、镜面金属、皮革、墙纸
WJ STUDIO 创始人、设计总监
曾就职于日本 PROSHMA,在 GOA 大象设计公司担任设计总监及项目负责人,配合建筑设计大师 Renzo Piano 首个中国项目, 并担任中方技术负责人,2014 年创办万境设计。
胡之乐认为,设计是一种思维方式, 他不仅注重建筑内外空间的延续性和创造性思考,更加关注设计的内容体现,从理解建筑、周边环境以及产品核心要素出发,善于打造具有时间延伸性的空间作品。
2007年毕业于中国美术学院,设计中追寻感性与理性结合,擅长用现代简约的美学风格对空间解读,以克制与平衡的手法来阐述设计本质,在他看来,设计是温暖的,能够让使用者感受空间的温度。
关于WJ STUDIO万境设计
在室内设计过于形式化,设计元素过度堆砌的当下, 万境设计注重建筑内外空间的延续性和创造性思考,善于从理解建筑、周边环境以及产品核心内容出发,创造最精简、最具时间延伸性的室内空间。在文旅地产、复合商业、多元办公以及特殊探索型项目上具有丰富的设计实践经验。

