© Chaovarith Poonphol
(Chaovarith Poonphol)
架构师提供的文本描述。ANAVILLA是作为家庭建筑肖像设计的渔民家庭的房子,三代以来一直是泰国渔业的主要支柱。这所房子是在一片广阔的空地上新建的,毗邻旧的父母住宅,以便完成家庭私有村庄的建设。
Text description provided by the architects. ANAVILLA is the house of the fisherman family which is designed as the architectural portrait for the household that has been the main pillar of the fishing industry in Thailand for three generations. The house is newly built in an extensive piece of empty land adjacent to the old parent house in order to complete the family privately owned village.
© Chaovarith Poonphol
(Chaovarith Poonphol)
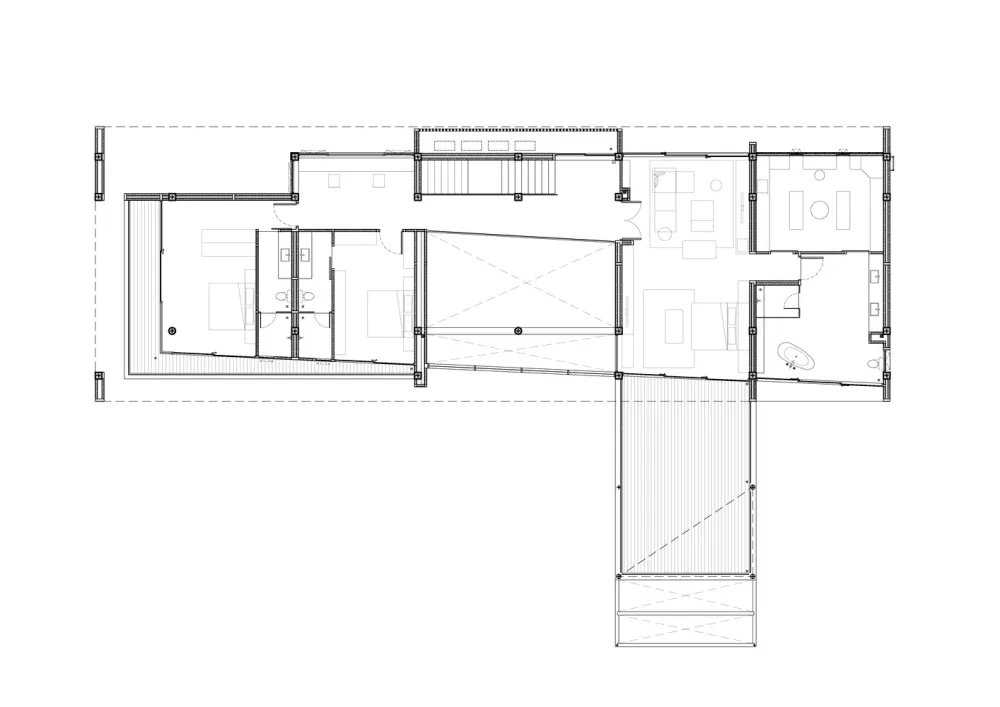
Lower Floor Plan
低层平面图
© Chaovarith Poonphol
(Chaovarith Poonphol)
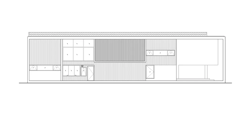
该项目位于泰国南部,那里80%的天气是下雨。尽管房主想要建造一座现代化的房子,但这座两层高的玻璃房子被悬臂式屋顶覆盖得很好,这给了房子足够的雨水遮挡和遮阳。为了设计防晒系统,房子的西侧通过额外的木材遮挡来保护其免受最强烈的下午光线的影响,而东部的所有大窗户都稍微远离直射的阳光,以缓和房屋的温度。
The project is situated in the South of Thailand where 80 percent of the weather is rain. Despite the fact that the owner wants to build a modern house, the two-story glass house is well covered by cantilevered roofing, giving the house sufficient rain sheltering and sun shading. To design the sun control, the West side of the house is protected from the strongest afternoon light by additional timber screening whereas all big windows on the east are slightly angled away from direct daylight in order to moderate the house temperature.
Courtesy of Behype Perspective
Behype视角的礼貌
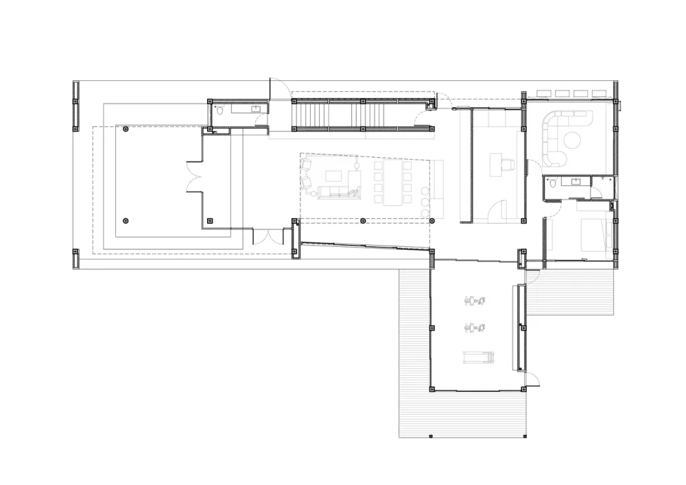
室内设计采用现代主义的开放式设计,居住、就餐、厨房和卧室套房都是通过双卷空间水平和垂直相连的。此外,隐藏的工作间和家庭影院,所有这些都被分配在一个大的街区。紧靠地面上一个健身房上方的大型露天甲板的延伸翼。从结构上讲,这种建筑是简单而直接的,目的是为了帮助当地的建筑工人能够用他们以前的基本知识建造房子。
The interior is designed in a modernist’s open plan; living, dining, kitchen and bedroom suites are all interconnected horizontally and vertically via double volume space. Plus, hidden working room and home theatre, all of these are allocated in one large block. Adjoining by an extended wing of large open-air deck atop a fitness room on the ground. Structurally, the architecture is simple and straightforward purposely to help to ease local builders to be able to build the house with their basic knowledge they all used to.
© Chaovarith Poonphol
(Chaovarith Poonphol)
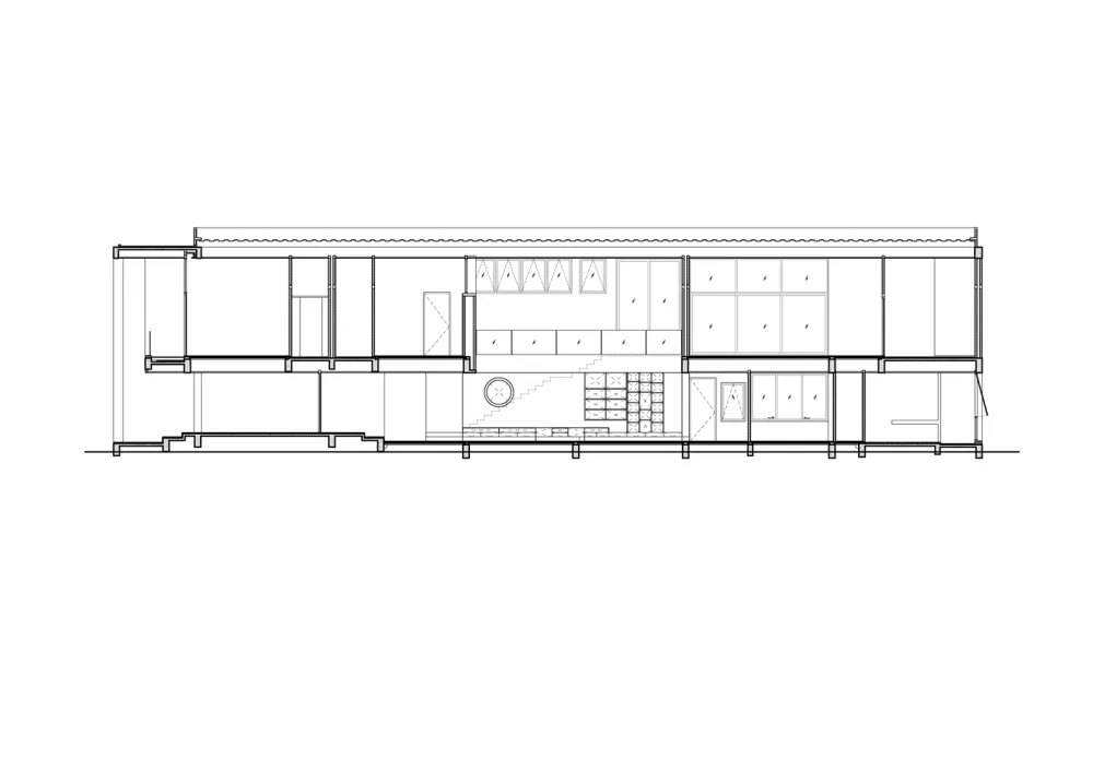
Perspective Section
透视截面
© Chaovarith Poonphol
(Chaovarith Poonphol)
这座建筑的巨大形式不仅提醒了它作为一艘大船的存在,而且还提醒着它的一部分,让用户在不同的空间中体验室内体验,走上一个低天花板下的入口港口,然后进入7米高的主起居和就餐区的开放平面,欣赏作为游艇主大厅的房子核心。
Not only the massive form of the architecture reminds its psence as the large ship but also the section of the house that allows user to experience an interior in different form of space, walking up an entry port under a low ceiling before stepping down into a 7 meter height ceiling open plan for main living and dining area, appciating the core of the house as yacht’s main hall.
© Chaovarith Poonphol
(Chaovarith Poonphol)
该项目的目的是为了呼应家庭的根源,在进入新房子之前,可以从老房子走过去,穿过长高的树木。穿过起居室,作为一个新的家庭公共区域,主卧室位于房子的尽头,有大的观象台甲板,通过俯瞰过去一代的房子,完成项目的旅程。
The project is deliberately designed to echo the root of the family which can be accomplished by walking from the old houses through long-standing high trees before getting into the new house. Traveling through the living area as a new family common area where the master bedroom is located at the end of the house with large observatory deck, completing the project journey by overlooking back to the parent house, the house of the past generation.
© Chaovarith Poonphol
(Chaovarith Poonphol)
Architects FLAT12x
Location Nakhon Si Thammarat, Thailand
Category Houses
Lead Architect Julsamano Bhongsatiern
Area 800.0 m2
Project Year 2018
Photographs Chaovarith Poonphol
Manufacturers Loading…

