近日,哥本哈根市内一座新建的可以容纳约900名国际学生的公立学校正式对外开放,该学校位于几栋历史悠久的嘉士伯公司大楼围合出的场地上。这座学校名为哥本哈根欧洲学院(European School Copenhagen),是一所新建的国际学校,致力于改善现代学习环境,同时通过开放的公共空间使学校和谐地融入城市环境之中。本项目由建筑事务所NORD Architects和Vilhelm Lauritzen Architects共同设计完成,他们与建筑商BAM Denmark和EKJ Engineers于2015年一道拿下了这个项目。
哥本哈根欧洲学院由哥本哈根市、Realdania、Novo Nordisk基金会、Nordea基金会和Industry基金会共同出资建造而成,拥有多元化的研究项目,这些项目由哥本哈根市和一些杰出的丹麦国际公司提供各方面的支持。学校的国际视野立足于嘉士伯城本土的文化历史等,在设计过程中还关注了当地的一些地标性建筑和工业啤酒厂的悠久历史。
现有的嘉士伯公司大楼在其环境之中十分显眼,砖砌的外墙和内部功能仿佛在讲述历史。本项目基地便位于这些大楼之间的空地上,悠久的周边历史环境奠定了本项目的设计基调。

“哥本哈根欧洲学院融入了工业建筑和工业时代的生动历史,致力于通过科学研究和教育,培养出一批勇于挑战的具有企业家精神的国际学生。以这一传统和历史文化为依托,新学校的设计逐渐拉开帷幕,希望能够成为当今时代内一种新的建筑诠释,”建筑事务所NORD Architects的合伙人兼建筑师Morten Gregersen这样说道,他与Vilhelm Lauritzen Architects共同设计了这座学校。
“在这个历史悠久的环境中,我们将学校空间最大化,创造出一个开放、现代且充满活力的学习环境。这不仅仅有利于学生,更有利于所有人——我们欢迎前来参观或使用校园设施的人。对于我们来说,创建一个能够同时与当地和这个意义非凡的历史场地产生互动的功能性学校是一件十分有成就感的事情,” 建筑事务所Vilhelm Lauritzen Architects的合伙人兼建筑师Thomas West Jensen这样说道。
学校内设有两个主要的楼梯,所有的学习空间都以两个楼梯为中心布置。这两个楼梯垂直贯穿五层楼,将所有教室和不同年级的学生都联系在了一起。它们不仅可以作为不同规模的教学空间,还可以充当多功能休息区。此外,它们还为不同区域和空间内的教室提供了视觉联系和视觉连续性,同时突出了作为学校中心和社交聚会空间的食堂。
哥本哈根欧洲学院作为新城市景观的一部分,将自身完美地融入嘉士伯城,模糊了校园和城市的边界。体育馆则作为过渡区的一部分,与各楼层的屋顶景观相连,从而使学校师生能够享受室外的休闲、活动和游乐空间。
学校的所有功能空间都是共享的,从而不仅在其与城市的关系上创建了一个双赢的局面,更在城市空间内创造了一种社会可持续性。








▼二层平面图
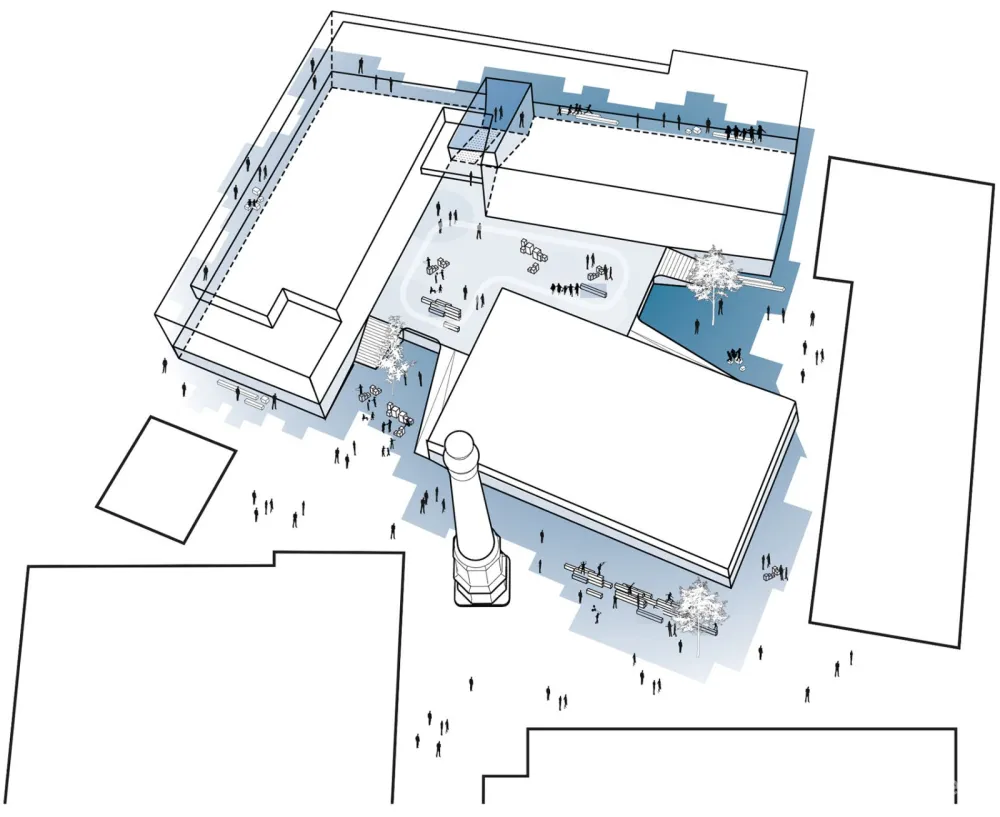
▼室外景观轴测图
▼场地流线分析图
▼总平面图
▼轴测图
▼北立面图
▼西立面图
▼A-A剖面图
▼B-B剖面图
▼C-C剖面图
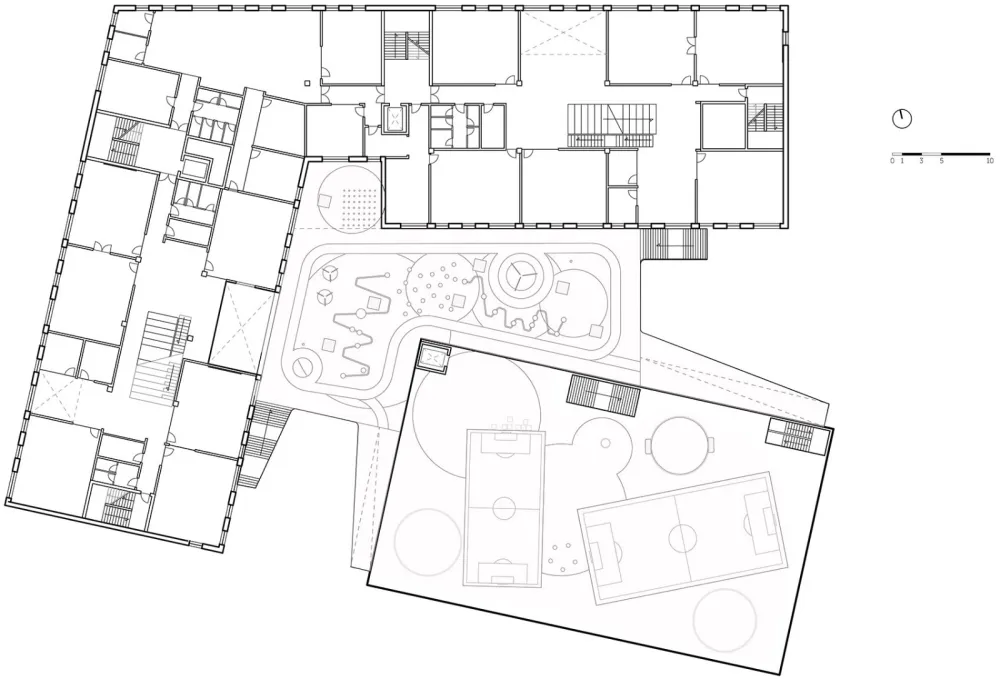
▼一层平面图
设计公司:NORD ArchitectsVilhelm Lauritzen Architects 位置:丹麦 类型:建筑 材料:砖石 标签:Copenhagen 哥本哈根
版权声明:本文内容由用户自行发布上传或投稿由设计芝士代为发布,版权归原作者所有,设计芝士不拥有其著作权,亦不承担相应法律责任。如果您发现本站中有涉嫌抄袭或侵权的内容,请点此提交工单进行举报,一经查实,本站将立刻删除涉嫌侵权内容。

