加州阿瑟顿,在硅谷中心地带,距离斯坦佛大学不远。这个郊区以大片的植物和栅栏著称。
 
 
这里的气候比较温和,几乎都是地中海气候。项目户主希望在她的房屋中有尽可能多的室外空间。项目最复杂的部分在于整个房屋体量偏窄偏长,而且目前她可以看到的景观几乎全是邻居家的后院。
 
 
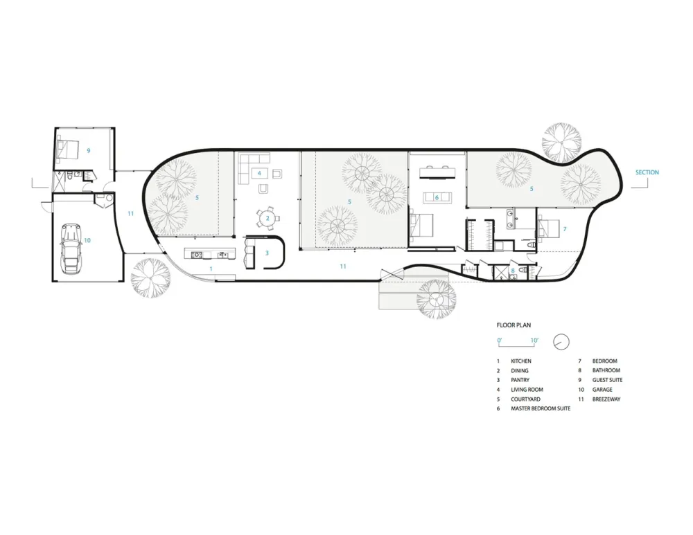
就像最典型的城郊别墅一样,这种类型的房屋通常比较大且空。因此,设计团队决定将设计重点集中在别墅上方的景观而不是平行于别墅周围的视野。所以我们设计出了看似无顶的别墅,其中有大量的室外庭院围绕在生活空间周围,从而可以将视线望向天空。
 
 
别墅的生活空间是一些开敞式且有点模糊的空间,这些室内外空间的连接是由滑动门和一系列的材料组成的,比如地面上的石灰华和墙上的雪松。这栋别墅独特的地方在于围绕着生活空间的一系列曲面墙。这些曲面墙将别墅围住挡住了望向屋外的视线,可以使得屋主注意到庭院中的景象,并且随着阳光照射在曲面墙的角度变化这些墙的影子可以形成一些有趣的图画。作为房屋最重要的元素,曲面木墙成为了一个视觉上的背景,屋主可以透过这面墙看到庭院内部的植物、桦树和一整天的光影变化。


 
 
区别于周围的房屋,这个别墅在街边的位置没有护栏。只有一条小草地从马路边沿着路边的橡树和曲面木墙内新种植的红木、桦树一直延伸到别墅中。
















 
 
建筑师 : Craig Steely Architecture 地址 : Atherton, 美国 主创建筑师 : Craig Steely AIA 项目团队 : Luigi Silverman, Ryan Leidner, Tune Kantharoup, Anastasia Victor 建筑面积 : 2900.0 ft2 项目年份 : 2018 摄影师 : Darren Bradley
版权声明:本文内容由用户自行发布上传或投稿由设计芝士代为发布,版权归原作者所有,设计芝士不拥有其著作权,亦不承担相应法律责任。如果您发现本站中有涉嫌抄袭或侵权的内容,请点此提交工单进行举报,一经查实,本站将立刻删除涉嫌侵权内容。
    

