这座历史性建筑是由美国奥斯丁第一位执业妇科医生于20世纪50年代建造的,这位医生是社区的领袖,为高危妇女提供医治。在之后的几十年里,这栋建筑一直被用作普通商业办公室。建筑于90年代末加建了第二层,由现在已经解散的奥斯丁事务所QMET设计。现有任务是通过一系列细致入微的建筑设计策略,恢复建筑原有医疗办公室的用途。业主是一位年轻有为的整形外科医生,专门为变性客户进行面部女性化服务和外科手术。
底层空间被规划为病人主要的活动空间,现有室内缺乏隔断,因此设计师需要针对可见性和隐私性进行设计。现存开放式平面内有两个陶土砖半墙围成的小隔间和一个位于后方角落里铝板围合的私人房间。1998年加建工程中设计建造的钢和玻璃隔断、原有的圆形钢柱仅作为独立的结构部件,与空间内的其它部分没有任何联系。

设计师利用空间中原有的钢柱和以前的“浮动隔断”作为空间分隔,在底层建造了两个新的空间,借助现代设施维护了建筑世纪中期的特征。陶土砖半墙与后方位于底层横向轴线上的“浮动隔断”连接,围合出第一间新病房。为了保证现存半墙的私密性,设计师增加了一个磨砂玻璃的铝框窗户,粘结在顶部的瓷砖上。设计师只在空间原有的灰缝和天花板上钻孔来固定铝制窗框,保证陶土砖不会被破坏。铝框磨砂玻璃幕采用胶粘,以保护原有的水磨石地板,并通过天花板上的钢结构进行加固。幕墙在几何上被分隔成面板相同的宽度,呼应了1988年“浮动隔断”构造。



陶土砖和玻璃隔墙的对面是候诊室,第二面保留的陶土砖墙呈90度圆弧,将空间围合成一个温馨的角落。所有原有的铝框窗户都位于较高的位置,柔和的阳光在两道外墙上投射出一条条细长的光影,窗下是一面用作画布的陶土砖墙。设计师选择了Paul Klee抽象画,使陶土砖墙具有雕塑感也作为上方窗户几何感的补充。Klee画作可以打破现有色调的同时作为空间饱和色调的补充。为了布置这个造型特殊的房间,设计师采购了Milo Baughman风格的lovesea来匹配90度弯曲的空间并且保留沙发蓝色天鹅绒软垫。候诊室中央有一张有趣的菠萝形底座的圆形West Elm咖啡桌,配有黑白斑点的牛皮地毯。另一面墙边是一张灰褐色粗花呢的丹麦沙发。座位的布局缓和了单人座椅候诊室的尴尬感觉。角落的尺度、舒适的家具、精致的装饰使候诊室更像是家里的休息室而不是一个过渡空间。
底层的每间病房内都有专门设计的木制家具,用于存储医生手术、清洁和销售所用的物品。简单的直线形的家具被涂刷为蓝色,颜色与原有水磨石地面的斑点和1988年新增马赛克墙面一样。设计师并没有拆除空间内原有的混凝土踢脚板,这些橱柜被设计成漂浮在锥形抛光黄铜家具腿上的盒子。风化后的圆形铜把手带有红橙色调,与光滑的蓝色橱柜相得益彰,呼应了原有陶土砖墙的纹理。橱柜的台面使用了钛白色的MetroQuartz,这是一种耐用的工程材料,具有脆性和功能性的工作面。圆形不锈钢下沉式水槽镶嵌在橱柜内,弯曲的水龙头和复古的十字开关与橱柜形成了几何对比。
设计师在上层设计了一个大空间作为业主进行多种活动和咨询的空间,并且更换了厨房和洗手间的设施。设计师还设计了独特的品牌细节来纪念建筑的建成时期。活动和咨询空间的面积宽敞,内部有从地面到天花板的玻璃窗,室外和楼梯井的天窗为室内提供了充足的光线。设计师重新布置了入口的玻璃隔断以方面安装与楼下病房相匹配的旋转门和配件,进一步增强了建筑材料色调的统一性。空间内设置了许多座位区,包括一组天鹅绒铜制椅子和一张从Uptown Modern Austin采购的复古柳条桌。外窗边是一张搭配有郁金香的桌子和铺有羊皮垫的铜制椅子,桌子上摆放着一个女性木制半身像。房间内部还有其它展现业主实践精神和性别认同的人体图案与装饰物,如一个亚克力材质的面部模型,Paul Klee用柔和的线条描绘一个人面部的Head of Man系列画作,以及一个小型抽象裸体石头雕塑

项目最后对厨房进行翻新。设计师将台面原有的90年代末期蓝色复合板材料更换为钛白色的MetroQuartz,木制家具保持完整并安装了一个耐火陶土砖‘Grove’制成的后挡板,暖色调的后挡板与整个建筑蓝色、橙色调相融合。后挡板放射状的钻石图案与能够追溯到50年代厨房的白色Daewoo迷你冰箱、微波炉一起营造了一种奇异的世纪中期氛围。翻新改造的主要目标是拆除和更换必要的东西,为业主塑造一个安全、舒适、愉悦的医疗环境。自50年代起一直持有和维护这栋建筑的业主和建筑拥有者对建筑改造措施进行了仔细地考量。



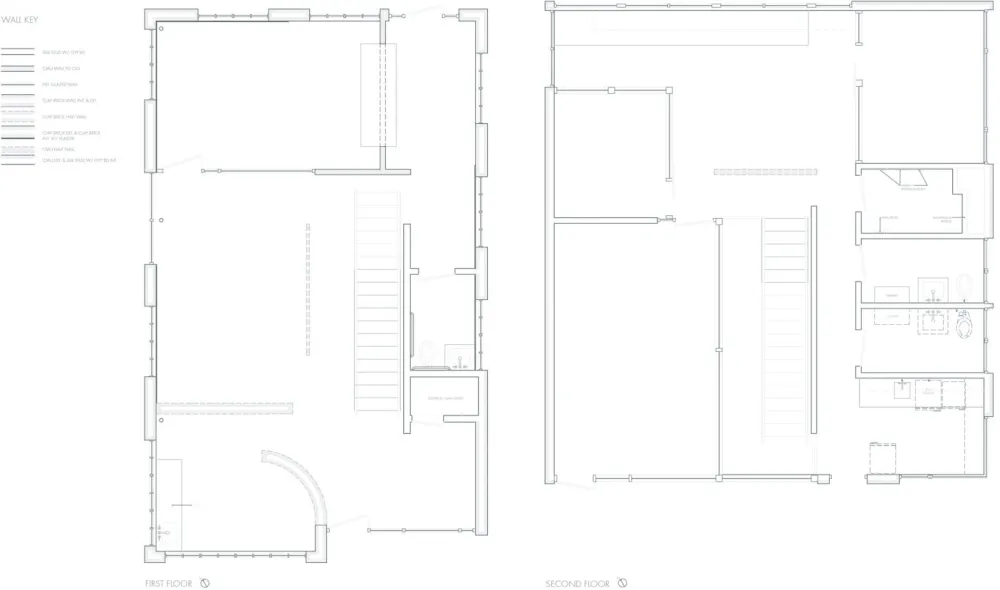
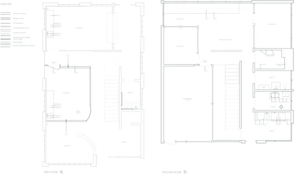
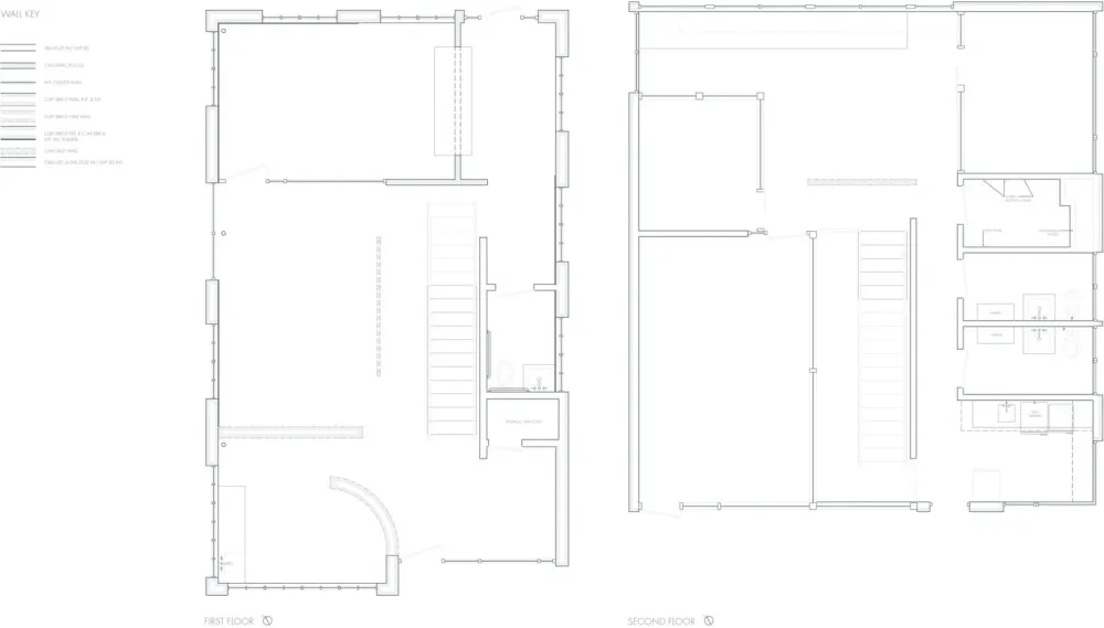
▼平面


设计公司:Jeanne Schultz Design Studio 位置:美国 类型:建筑 材料:饰面板 水磨石 铝 木材 金属 不锈钢 铜 玻璃 磨砂玻璃 地毯 家具 装饰 厨房 厨房家具/台面 厨房设备 标签:Austin Interior Deisgn Texas 奥斯汀 室内设计 得克萨斯州 分类:办公室 办公建筑 医疗建筑 诊所
版权声明:本文内容由用户自行发布上传或投稿由设计芝士代为发布,版权归原作者所有,设计芝士不拥有其著作权,亦不承担相应法律责任。如果您发现本站中有涉嫌抄袭或侵权的内容,请点此提交工单进行举报,一经查实,本站将立刻删除涉嫌侵权内容。


现在这个浮躁的世界,能细心整理一些东西发上来的越来越少了。要么就是敷衍的图片,要么就是枯燥的文字。之后就是AI生成的预制菜类的打包便捷快餐了。感谢楼主的分享,让我能在大智能无人化来临之前,看到同类发出的项目。有幸与您互动,缘分。