欧莱幼儿园的前身是宝山区宝菊路上一栋废弃的社区服务中心,紧邻一所幼儿园和实验中学,外围是大量的城郊住宅。社区服务中心的外部形象颇为平凡,内部空间也中规中矩,是我们习以为常的普通建筑。而这样一栋普通甚至略显沉闷的建筑,要被改造成为一所活泼、富有生机的幼儿园。
 
 
新幼儿园需要依照使用方的需求对原有办公建筑进行清理和重新分割。一方面,平面布局要尽量紧凑,以满足使用方对于教室数量的需求,另一方面,考虑到项目紧张的时间进度,方案要尽可能地避免对原有结构做大的调整以及繁杂的装饰。综合考量后,设计师从剖面入手,希望利用一种特殊形式的天花来塑造新的空间体验。
 
 
设计将天花分为吊顶区和非吊顶区两种,在同一空间中形成了不一样的尺度体验。对于幼儿来说,吊顶区低矮的空间适合单独玩耍游戏;而非吊顶区的高空间营造了公共的氛围,可让老师和孩子围坐其下展开活动。这些高低宽窄不一的改变使原本中性的空间变得活泼有趣,富有节奏和张力。
 
 
吊顶布置在高低变化的逻辑控制之下,同时根据原有建筑条件、设备管线的布置、内部空间的使用逻辑等进行局部调整,以达到角角落落的贴切。教室朝向走道的隔墙与吊顶区相接,2.2m以上完全开放,而非吊顶区凸起形成“触角”,教室仿佛一个个“小房子”,让人在室内走廊中忽有一种身处“室外”的错觉。
 
 
设计针对原有建筑的外立面进行了色彩调整,以相同色相不同明度的颜色色块在立面上拼绘,突破了原有立面分层的构图原则。傍晚时分灯光亮起,立面上便可清晰地看到三种尺度的叠加。色块的元素延伸到室外活动场地,划分出了游戏活动区域,同时新建了一条风雨连廊,探入周边景观,将原本孤立的建筑体量与环境咬合在一起。
 
 
设计针对原有建筑的外立面进行了色彩调整,以相同色相不同明度的颜色色块在立面上拼绘,突破了原有立面分层的构图原则。傍晚时分灯光亮起,立面上便可清晰地看到三种尺度的叠加。色块的元素延伸到室外活动场地,划分出了游戏活动区域,同时新建了一条风雨连廊,探入周边景观,将原本孤立的建筑体量与环境咬合在一起。


















 
 
▼总平面图
 
 
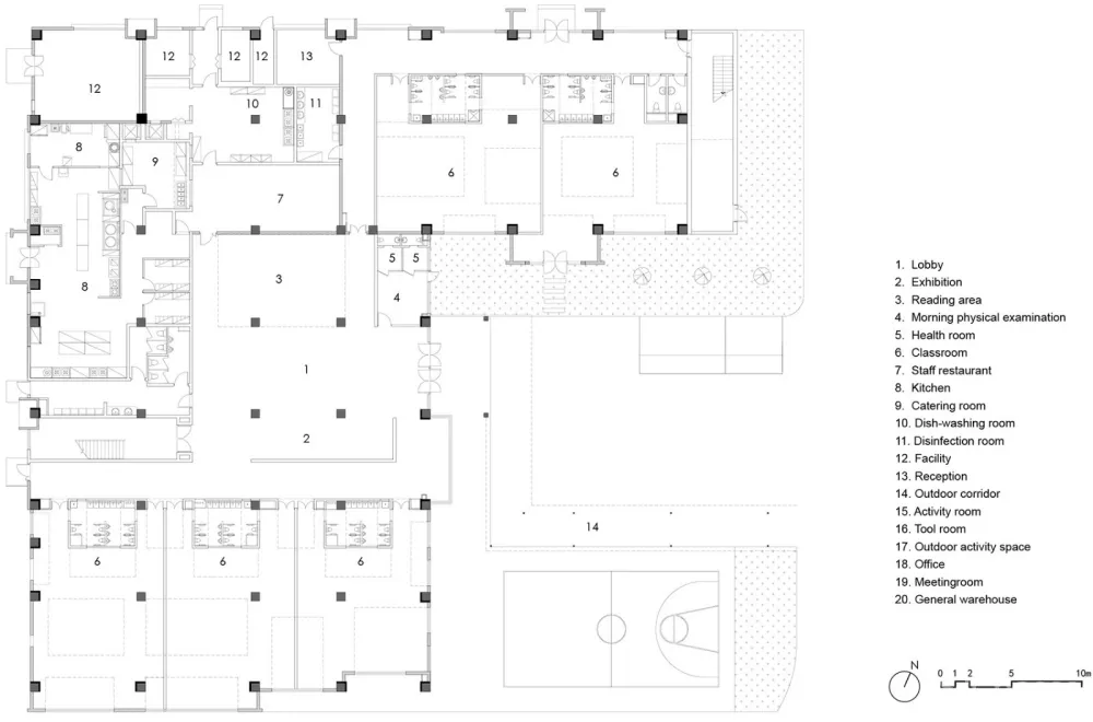
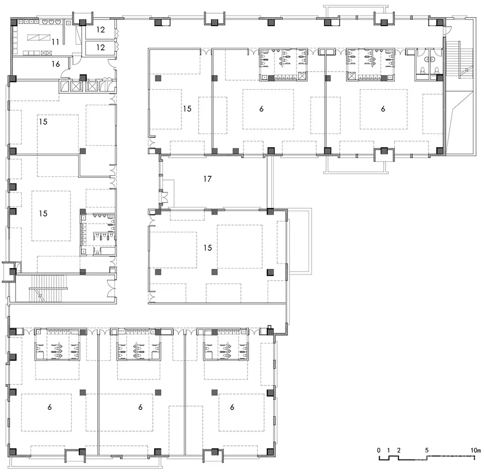
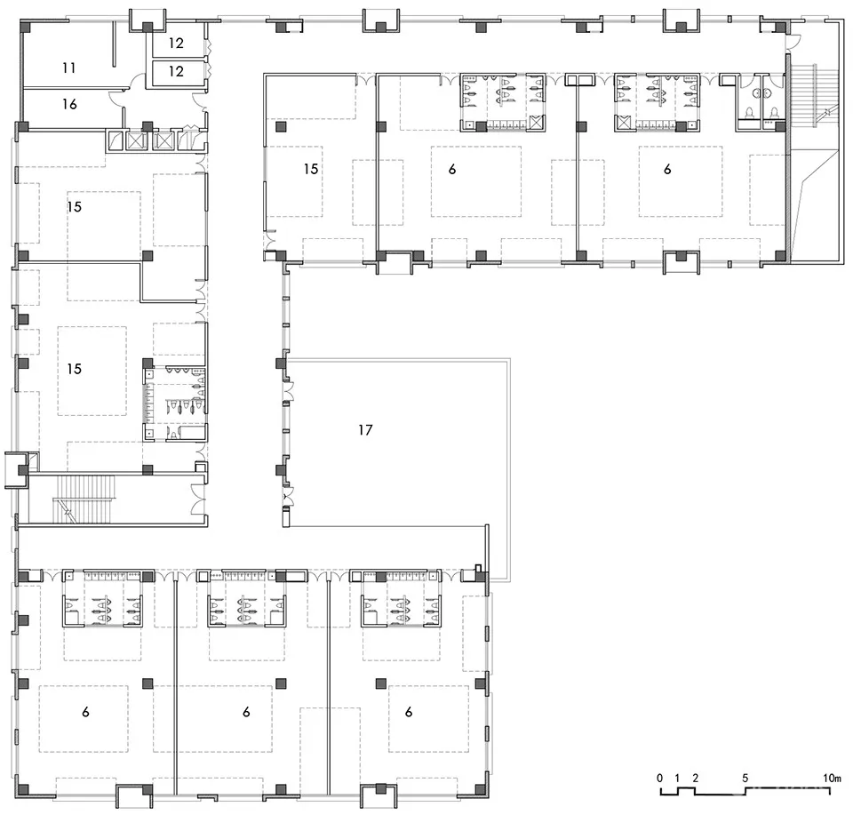
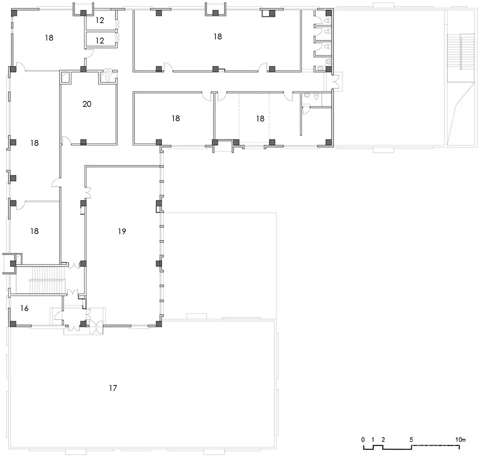
▼首层平面图



 
 
▼剖透视图
 
 
▼剖面图
 
 
▼设计手稿
 
 
▼立面图
 
 
项目名称:普通建筑的改造:宝山贝贝佳欧莱幼儿园 类型:改造 地点:上海市宝山区宝菊路377号 设计/建成时间:2017.02-2017.10 建筑面积:5400 m2 设计单位:上海阿科米星建筑设计事务所/庄慎、任皓、唐煜、朱捷 网站:www.archmixing.com 联系方式: mediaarchmixing@126.com 建筑设计团队:庄慎、张灏宸、李立德、陈弘邦、丁心慧、王子潇(实习生) 结构单位:源规建筑结构设计事务所(普通合伙) 机电单位:上海亚新工程顾问有限公司 施工单位:上海维方建筑装饰工程有限公司 业主:上海贝贝佳欧莱幼儿园 摄影:吴清山(www.wuqingshan.cn)
版权声明:本文内容由用户自行发布上传或投稿由设计芝士代为发布,版权归原作者所有,设计芝士不拥有其著作权,亦不承担相应法律责任。如果您发现本站中有涉嫌抄袭或侵权的内容,请点此提交工单进行举报,一经查实,本站将立刻删除涉嫌侵权内容。
    

