这间公寓坐落于俄罗斯首都莫斯科
是设计师 Ksenia Karavaeva
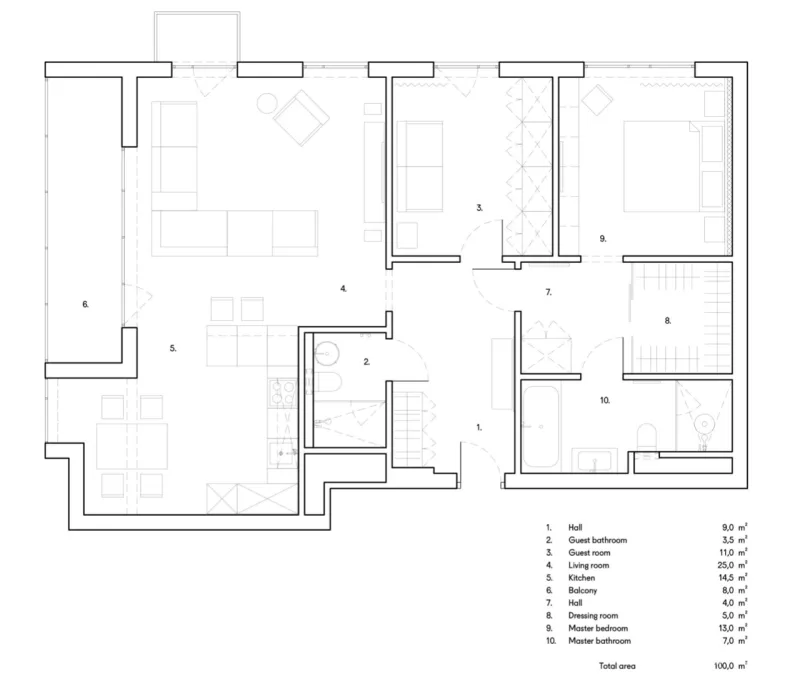
公寓共 100㎡,由左至右主要划分成三个部分
分别为客餐厨区、宾客区、主卧区
公寓玄关以鲜明的赤土色墙面区分空间
墙面大圆镜下方配置古铜色圆头矩形换鞋凳
黑色金属质感的伞架置于一旁
镜面一侧还设有一盏白色球形小壁灯
玄关另一侧的墙面挂有一幅装饰画
用两盏黑色圆筒灯打光增亮
白色天花板和浅色水洗石铺砖地面
与鲜艳的赤土色墙面相互映衬
客厅地面由浅色实木复合地板铺设
一大片落地窗引进自然光线
整体空间氛围明亮又融洽
蓝色系墙挂画由 Vladimir Kozhukhar 绘制
与前面色彩形成明显对比
后方还放置了绿意盎然的植物盆栽
两扇通顶落地窗保证了采光的同时
厨房与客厅之间设陶瓷面板小吧台
搭配两把黑色皮质吧台椅
就是享用早餐和工作最舒服的地方
厨房区域除上部橱柜为深色陶瓷面板
其他收纳空间柜门均为胡桃木面板
一旁的落地窗白天照亮用餐空间
而夜晚则由餐桌上方两盏吊灯
卧室床头板由杨树板加工制成
自然淳朴的气息扑面而来
的床头灯、插座及床头柜
令木材独特质感更加凸显
共同为户主营造舒服自在的就寝环境
定制的梳妆台一样采用木质面板
部分桌面打开可作为梳化镜面
内部设黑色格子状收纳结构
经过卧室衣帽间进入主卫
使用圆面镜 白色陶瓷洗漱台
下方两层木质面板收纳抽屉
保证足够的卫浴收纳空间
淋浴区整体色调呈灰白色
地面浅色水洗石材质延伸至浴缸壁面
浴缸上方右侧设黑色格子状置物架
与白色洗漱台和黑色支撑架、水龙头
形成强烈的颜色对照,个性十足
淋浴间采用无障碍设置,与地面无高差
通过黑框透明玻璃实现干湿分离
Ksenia Karavaeva 毕业于莫斯科建筑学院
从事各种规模的私人和公共项目
这套莫斯科公寓是其第一个个人作品
▲ Ksenia Karavaeva
设计:Ksenia Karavaeva

