在城市现有的大尺度中,这里正在营造一种新的筑居体验,试图对此时空演化之格局作出回应。当层层递进的空间关系渐次地在眼前展开时,对朱阁次第绮户开的江南大宅的联想也同时浮现,但它又是以一种更新的方式加以呈现的。
从一层主入口首先进入挑高的中央大厅,古铜色塑造的金属几何线条、水墨痕的灰色理石,灰咖色实木有节奏的纵横……编织出纹理丰富的立面,而立面则是一个连绵不断的平面,多重材质之间的转换交替通过不同肌理一致的方向性达成统一,接待、陈列等辅助功能区域则在这些立面之后铺陈展开。
用丰富的透明性表达空间关系也延续到了这些不同的立面——借助八条屏式的全景高窗设计,建筑外部的竹林景观成为室内中央核心区的背景图,而功能性立面则透露出更隐约、含蓄的朦胧之美。



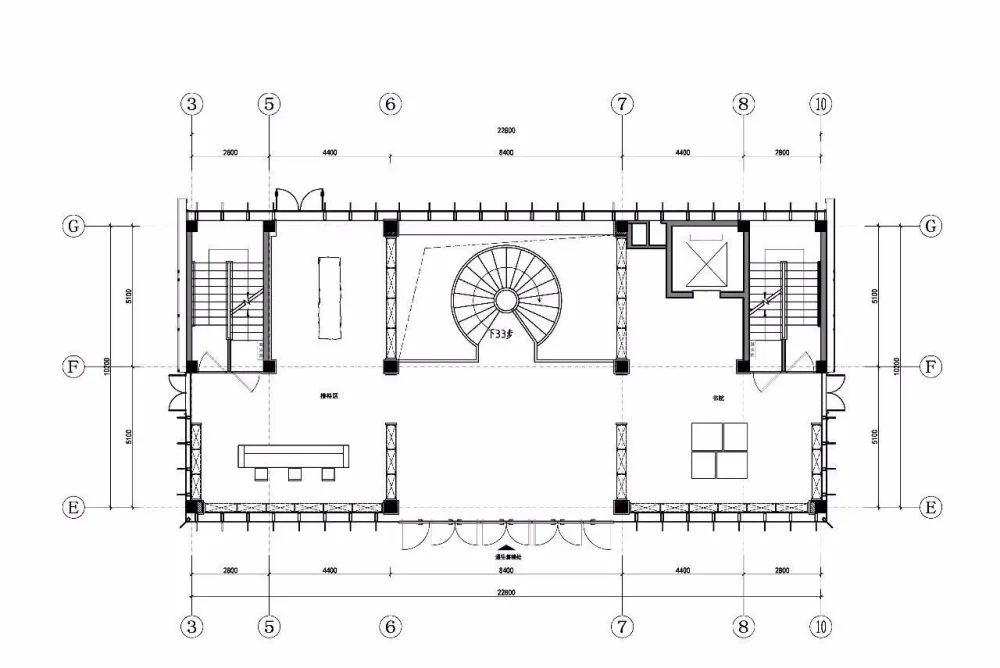
顺着铜铸主楼梯继续向下,三面落地书架围合而成半私密的藏书及阅读空间,主楼梯作为一个被放大的海螺形结构,沟通上下、为地下引入自然光线的同时,亦可被解读为是对自然居所的内向的诗学隐喻。设计师张成喆钟爱意大利建筑师卡洛 · 斯卡帕(Carlo Scarpa)的作品精神,他相信空间的魅力正源于这些细节的力量。



水,代表时间,水,是媒介,沟通着各个功能空间。悬浮的透光玻璃装置对水捉摸不定的形态进行捕捉,它们从真实的水景中升起,在半空中形成镜像四散开去,在这些凝固的水滴的指引下,观者的时间叠加最终形成空间中的行走序列。
法国作家茹尔 · 瓦莱斯(Jules Valles)曾说:“空间总是让我沉静下来”,张成喆同样认为:“空间,应当给予人宁静的思考”,宁静的空间往往给人以美妙和谐的时间感。汲取苏式园林门洞幽玄之意境,妙用于此,层次递进,景中置景,又如一轮皎洁明月,在与灯光的互相作用下投射映衬出清冽且不失柔美的灵光妙影,与空中流水的满目倩影,营造出极具空灵之感。
另一种进入空间的方式则是由地面沿着细仄的透光混凝土匣子拾级而下,参观的仪式感借以从中体现。明亮的光线在此时转成了黯淡,但可见两侧清晰的书圣笔墨,借以遥想当年的“茂林修竹”与“清流湍激”。


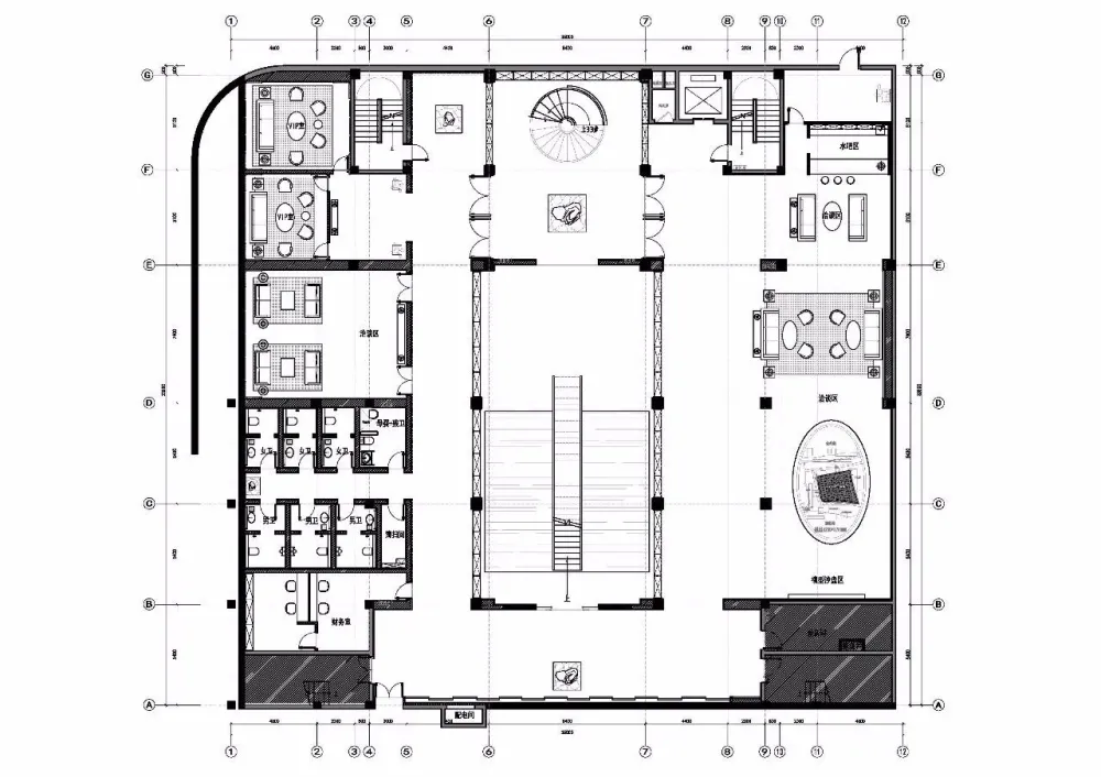
至负一层即抵达洽谈、展示、办公等功能区域,在这里布局的方式从中国传统造园方式中汲取灵感:偏径婉转、步移景异,月洞门与水景、置石、旋转楼梯皆形成多重对景关系。 与一楼空间内与外的处理手法相呼应,墙体在多媒体灯光装置的表现下化为一幅竹影清风图卷,间或又是绿竹猗猗,在原有的封闭建筑空间里不时地出现,如同开启了一扇又一扇通向外部世界的意象之窗。






张成喆;IADC涞澳设计创始人和首席设计师;国际建筑联盟(ICU)中国区执行董事。 Alessio Zhang,The Founder and Chief Designer of “IADC Designers, Ltd”.The Executive Director of ‘International Construction Union’ (ICU) in China. 个人作品在国内外多家专业时尚杂志上发表,撰写并发布名为“《喆思空间》”的设计作品集,多年来,Alessio Zhang一直致力于创建一个跨学科的设计平台。 Personal works have been published in many professional and fashionable magazines both at home and abroad. Writes and publishes a design portfolio named ‘Space of ZheSi’Over the years, Alessio Zhang has been committed to creating an interdisciplinary design platform. IADC涞澳设计由著名室内设计师张成喆于2001年创建于上海。IADC在室内设计领域的创新理念、美学风格和专业服务方面成绩斐然,被业界认为是最卓越的室内设计公司之一。在过去的十几年里,创始人张成喆和设计总监潘及(Eva Pan)带领一支杰出的多文化设计团队完成了上百个不同类型和风格的作品,涵盖室内、软装、建筑和景观设计领域。IADC涞澳设计作品常发表于国内外专业及时尚媒体如《安邸AD》,《Elle Deco家居廊》等,并多次荣获国际、国内专业大奖,如德国ICONIC、INSIDE、International Property(国际地产大奖)、红点奖以及iF奖等。 IADC was founded in Shanghai by Alessio Zhang in 2001. IADC is one of the most outstanding interior design companies providing innovative ideas, aesthetic style and professional design services. Over the past ten years, Alessio Zhang (Founder) and Eva Pan (Design Director) has led an outstanding multicultural design team capable to complete hundreds of different types and styles of projects in Interior Design, Soft Decoration, Architecture and Landscape design. IADC’ design projects are often published in domestic and international professional and fashion media such as AD Style, ELLE Decoration Home Gallery, and winner of several national and international design awards, such as German ICONIC, INSIDE, International Property (International Real Estate Awards), Red Dot Prize and IF Awards. "设计不仅仅是打造一种风格,更是'以人为本'实现空间的真正价值和本质"。创始人张成喆的设计简洁而优雅,不受所谓美的形式主义的限制,旨在为空间使用者提供一套完美的设计解决方案。二十几年的设计经验,张成喆始终关注融合国际设计理念与本土的文化的互相融合,锤炼出至简至美的设计风格。 “Design is not only to create a style; it is ‘people-oriented’ to realize the real value and nature of space”. Alessio’s design is simple and elegant, not restricted by the so-called beauty formalism; his designs provide a perfect solution for space users. More than 20 years of experience, Alessio has always been concern about the integration of international design concepts and local culture, the temper of the design style beauty.
项目名称 | 苏州世茂铜雀台售楼处 Project Name | SuZhou SHIMAO Group TONGQUETAISales Center 项目地点 | 江苏省苏州市吴中区石莲街1号 Location | No. 1 Shilian Street, WuzhongDistrict, Suzhou City, Jiangsu Province 建筑面积 | 1433㎡ Area | 1433 ㎡ 完成时间 | 2018年6月 Date | June 2018 设计单位 | IADC涞澳设计 Design Company | IADC Design 设计总监 | 张成喆 Chief Designer | Alessio Zhang 设计团队 | 路明鑫、唐韫慧、陈志强 Design Team | Mingxin Lu、Yunhui Tang、Zhiqiang chan 文字作者 | 蒋颖 Writer | Ying Jiang 摄影师 | 朱海 Photographer | Hai Zhu
版权声明:本文内容由用户自行发布上传或投稿由设计芝士代为发布,版权归原作者所有,设计芝士不拥有其著作权,亦不承担相应法律责任。如果您发现本站中有涉嫌抄袭或侵权的内容,请点此提交工单进行举报,一经查实,本站将立刻删除涉嫌侵权内容。

