架构师提供的文本描述。简单、单层、无障碍的房子不是纪念碑,而是供所有年龄层的使用者使用的工具/设计的实质是最大程度的开放和透明,光和空气/没有展示建筑的规模,而是强调它的公共服务/四个独立的部分(医生办公室、多功能厅、市政当局,(邮局)在舞会、活动和音乐会期间,由门厅/前厅连接,作为一个拱廊和“缓解”区,并偶尔为展览/内中庭提供空间,以照亮内部空间/相互协同作用,由于室内空间的民用特性,部分可能会根据实际使用/中性材料而有所不同,图案外观的光/正面具有不同的银白色反射效果,以更好地识别具有“抽象框”的公民。
Text description provided by the architects. A simple, single-story, accessible house is not a monument but rather an instrument for it’s users of all ages / The essence of the design is maximum openness and transparency, light and air / no demonstration of the magnitude of the building but an emphasis on it’s public service instead / four separate sections (doctors’ offices, multifunctional hall, municipality, post office) connected by the vestibule / vestibule as an arcade and a “relieving” area during balls, events and concerts and a occasional space for exhibitions / the inner atrium to illuminate internal spaces / mutual synergy, sections may vary according to the actual use / neutral materials for the civil character of the interior space and the light / front side of the patterned façade has a variable silver-white, reflective effect for greater identification of citizens with a “abstract box”
© Tomáš Balej
(c)TOMLET或BalejEJ
© Tomáš Balej
(c)TOMLET或BalejEJ
结构和技术-由一个坚固的4x4m框架/立面和屋顶组成,外侧面覆盖有隔热板/部分衬里,用于结构和声学/Panbex地板/外填铝,木屋/广泛的绿色屋顶/空气热泵/电锅炉地板加热和冷却在公共区域作为额外的热源/强制通风系统在大厅,安全,音频视频。
Structure and technology load-bearing structure made of a solid, wooden 4 x 4m frame / facade and roof from the exterior side covered with thermal insulating panels / partial liapor lining for structural and acoustic purposes / Panbex flooring / aluminum fills on the outside, wooden inside / extensive green roof / heating and cooling with air-air heat pumps / electric boiler + underfloor heating in common areas as an additional heat source / forced ventilation system in the hall, security, audio video
© Tomáš Balej
(c)TOMLET或BalejEJ
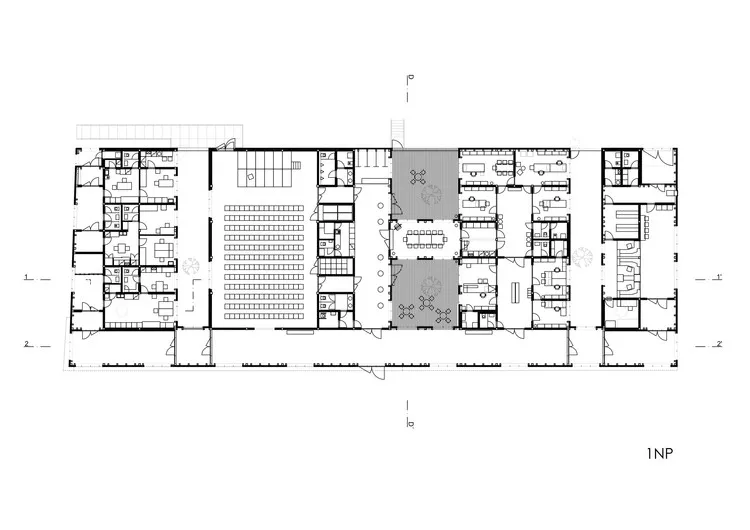
Ground floor plan
© Tomáš Balej
(c)TOMLET或BalejEJ

