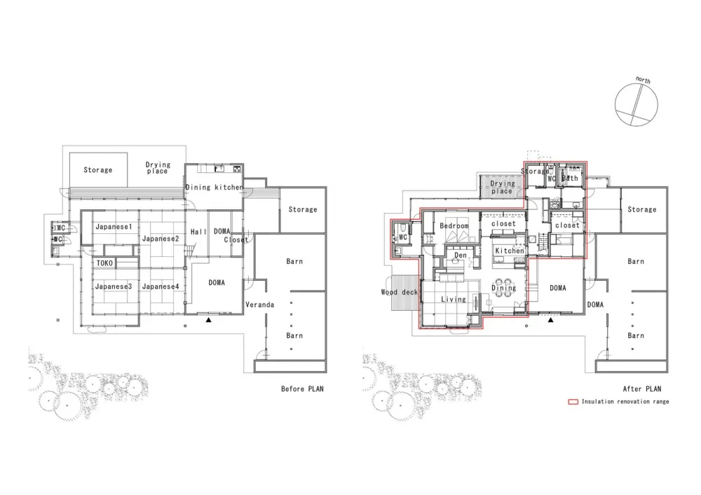
原业主的孙子孙女在其去世后继承的家庭住宅。翻新工作的重点是在保持原有财产的古老部分的同时,对其功能、抗震能力和隔热性能进行升级。
厨房和餐厅提供了与家庭紧密联系的空间,客厅的设计与大庭院融为一体。半透明镶板提供了柔和连接空间的效果,而不是将它们完全分隔开来。


在它将时间风化的材料与新材料的结合中,就像它们没有经过特殊处理一样,这个特性似乎达到了一定的深度。











地址:日本 年份:2018 摄影师:Hirokazu Fujimura
版权声明:本文内容由用户自行发布上传或投稿由设计芝士代为发布,版权归原作者所有,设计芝士不拥有其著作权,亦不承担相应法律责任。如果您发现本站中有涉嫌抄袭或侵权的内容,请点此提交工单进行举报,一经查实,本站将立刻删除涉嫌侵权内容。

