既具有简约的纯度和清晰度,又因温暖的色调,纹理和材料而柔和。
,仅在家里感到幸福就足够了。
Artem Babayants
Artem Babayants最新的作品中,始终把光作为空间的第一要素,光线可以设定空间的基本形状,显示纹理并营造氛围。空间的留白,不单单是一个被动的背景,而是一个活跃的元素。
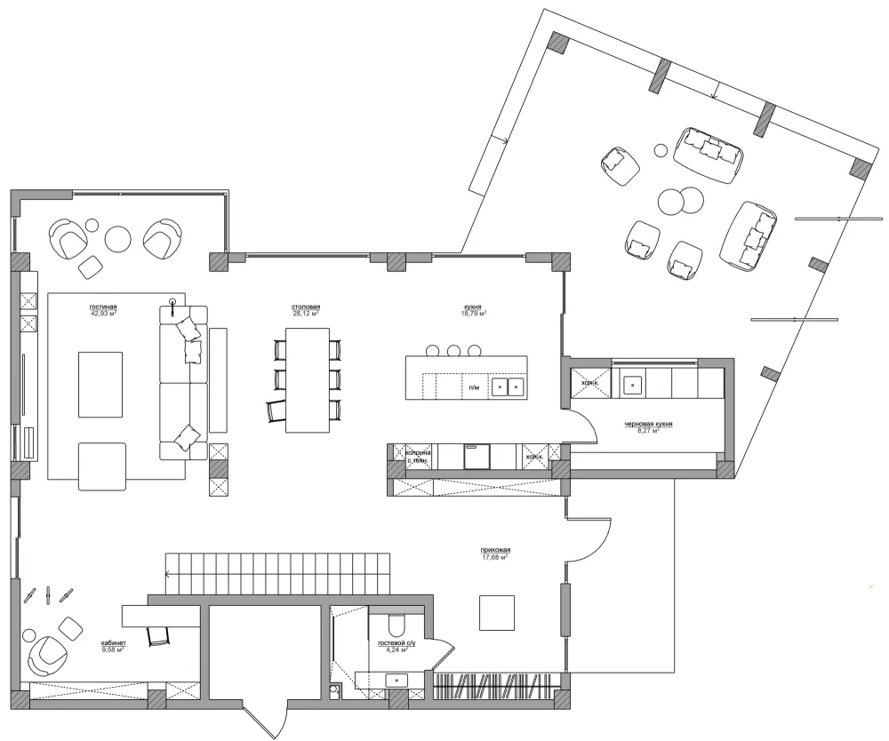
Artem Babayants最新的设计项目,这套两层的住宅面积250平方米,尽管整个空间由多部分组成,但给人的感觉是优雅,高贵,轻巧的艺术风格。
客厅,多个落地玻璃窗,光线充足,引景入室,充分发挥自然环境,并使其与自然环境融为一体。另一方面,内部并不依靠绿色植物作为亮点,而是适可而止,相当有表现力。
深色木材的大面积区域相互平衡,
沙发和金属的丰富色彩被轻质沉稳的石头所吸收并平衡,
大量细长的垂直区域被椅子,凳子,灯的塑料线所稀释。
空间的风格是清新自然的,但是如果仔细观察,会发现生态主题的风采。
藤椅,亚麻灯,自然的色彩和纹理。
尽管具有“自然”和拘束力,但毫无疑问,其内饰是超现代的。
开放式的厨房,深木色的橱柜白色岛台,将美学的感性和空间质感做了最完美的平衡,升华了现代空间的调性和创造了舒适的家居氛围。
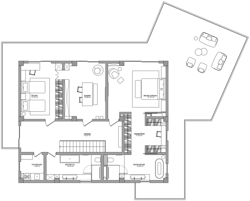
使自然光,窗外的自然景观进入,
仍然清晰地凸显了男性的私密氛围。
深色的木材和温暖的光线在这里使你沉浸在反思中,与书共度一个夜晚或与朋友交往。
玄关是房子的第一印象,石材纹理和高贵的木材色调,令人着迷的是,光线如何漫不经心地落下,并通过反射为完美的几何图形,就像在一根细长的线平衡灯上一样,简化了空间所有元素的关系,并使外部简单性如此吸引人。
卫生间,深色的空间,简约的线条很有艺术性,让空间显得更为精致。
OLYMPIC RIVIERA
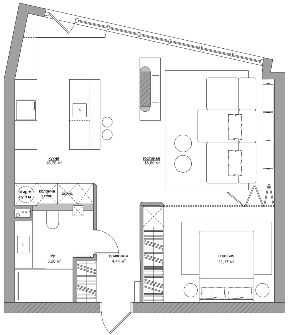
这套小户型住宅面积57平方米,极简风格,设计师Artem Babayants决定的第一件事是把厨房起居室都装上玻璃,而且,除了走廊和浴室之外,没有过多的隔板围起来。
这可以打开空间,使漫长的阳光成为构图的活跃元素。the灯,椅子,深色图形强调了主表面的温暖和单色。这种对比使我们可以在空间中刻上深色的窗框,并显得室内更有特征。
将内部与外部结合起来非常重要,因为在敞开的门后面是一个绝佳的露台,这无疑是该物件的优势。尽管最终简单,但要在此处获得清晰的线条并不容易。
卧室简约的设计,将可视面扩到最大化,更能凸显出室内的开阔感。
卫生间也是同样融入简约时尚的设计手法,强调品味的同时,也着力打造空间的舒适性与实用性。
TOWNHOUSE IN POTAPOVO
极简设计不仅看着是种享受,其中的巧思也让人觉得有趣。这套250平方米的联排别墅,
Artem Babayants,
简洁的线条加上中性调色板和结合天然材料,特别是木材,让人感觉舒适的感觉。

