本案位于杭州市西湖区天目山路389号,由Matrix Design矩阵纵横设计,力求打造杭州西溪集文化、自然、度假为一体的诗意人居,远离市中心喧嚣环境,如桃源深处的避世仙境,等待被发现。 矩阵的室内设计灵感源于“三十六陂春水,白头想见江南”,设计将杭州自然天成的美景幻化为室内场景:避于喧嚣外,一眼成林,临窗见水。所有的意境在门后,别有洞天,亦在浮生中偷的半日逍遥。

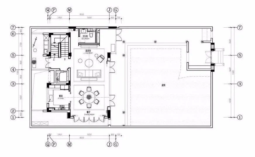
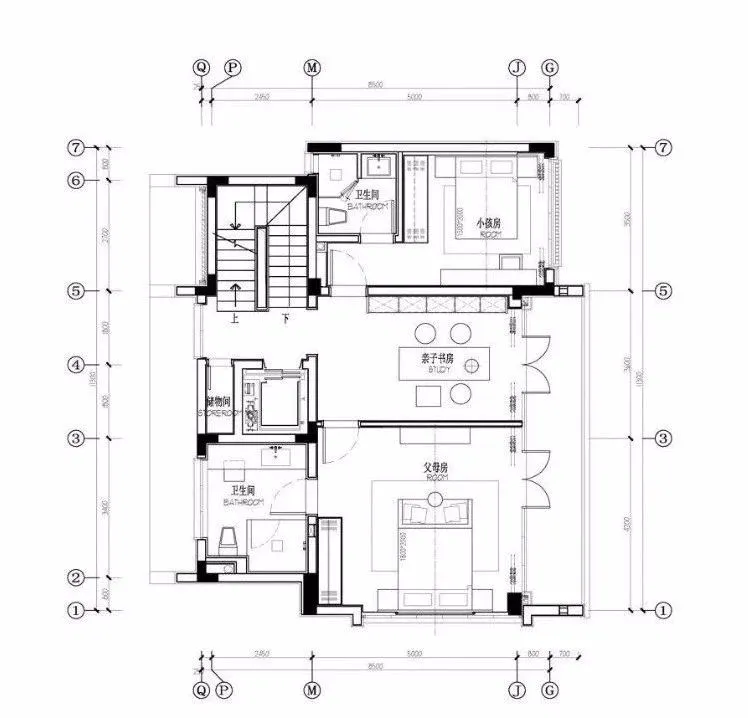
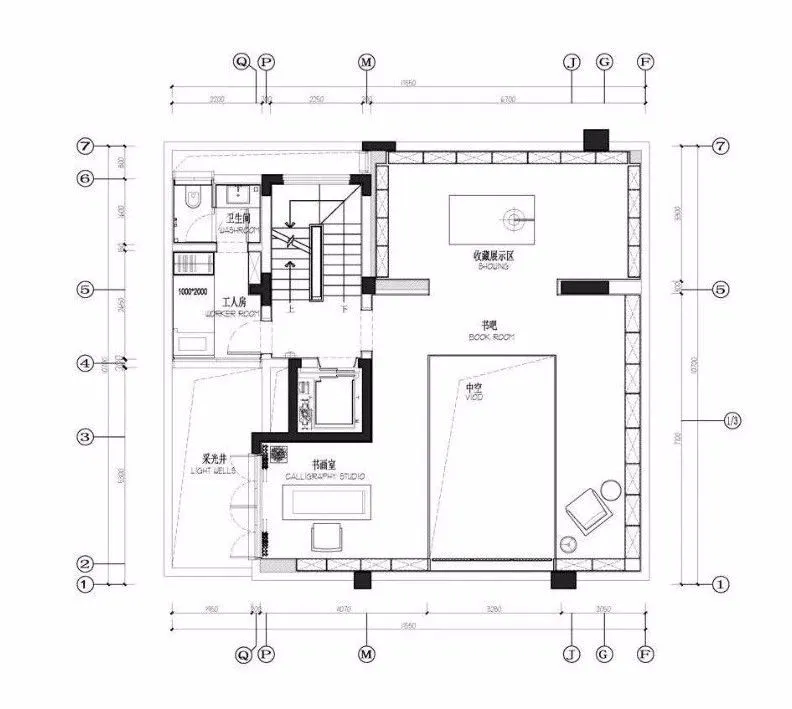
户囿内,车驾喧嚣于外,一室闲情。逃禅品茗,甘做世外人。书斋内寻章摘句,怡然自得。笔墨丹青里,游万里河山,曳游江河,半亩河山独揽一片风景。门有洞天,与古为伴,独自赏玩,随心亦添得情趣,撷古意,描得灵动。 为了将这样字里行间的诗意落笔成真,室内设计首先从空间上思考布局的合理性。本案一共五层,一层为接待功能的客餐厅,一层以上是居住空间,一层下是娱乐空间,空间规划合理,功能独立。国家政策的变化,以及家庭对小孩的培养与重视程度,设计在地下室考虑了儿童玩耍区的功能。

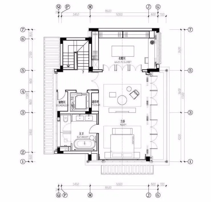
在设计的过程中,Matrix Design矩阵纵横坚持主卧空间尽量敞开,不做隔墙;地下室的挑空位置也经过多次的沟通,最终保留了回形的大挑空,挑空为地下室赋予了良好透光透气的空间条件。 这些巧思与坚持也成为本案在硬装布局上的亮点。此外,三层为开敞的主卧大套房,光线与景观为最佳;拥有两层大地下室和大型独立车库等都成为设计为本户型创造的高性价比价值点。









在地下室挑空部分,选用著名的当代艺术家李华弌的水墨山水画做为挑空的视觉焦点。手绘墙纸底材为真丝地材,真丝在编制过程中自然形成的竹节形态,丰富了底材的质感。真丝的竹节感受体现本案追求的自然之美,真丝自然的光泽度低调奢华。 本案地处湿地公园附近,潮气较重,在手绘墙纸上设计师提出了特殊的工艺要求,墙纸基层要做好防潮,表层也要做防潮处理,要求手绘墙纸表层喷涂防潮剂。


在石材的挑选中,选用一款看上去很整体、但细节上能看到远古封印在石材里面的贝壳化石。另外考虑到地下室受造价与潮气的限制,选用了一款通体砖。砖缝美观程度有限,成为了难点。设计师对砖缝进行了思考,对留缝、凹槽、进退关系、比例做了推敲。以构成的留缝方式,打破材质的单一性,让缺点转变为空间亮点。

在设计过程中,设计师通过选择一些跟人体亲近的东西,在传统材质和飞速发展的高科技现代工业风的东西之间寻得一个平衡,用朴素的材质来达到一个美好的空间效果,给人一种精神上的喘息。 最终这一细节上的难点攻克让该设计成为一种全新的媒介,为空间老木头装置的应用与新材料搭建了当代生活语境下的奇妙对话。




在地下室挑空的视觉交点处,设计挑选了一款现代材料金属网,与传统的绘画艺术墙纸做为对比,传统与现代的对话。金属丰富了空间的层次,也丰富墙纸的质感。



设计选用了一系列独具匠心的材质与工艺,为本案的最终诗意化场景实现注入了更多文化性的思考与研究,主卧背景选用的是艺术家長谷川等伯的《竹鶴図屏風》作为背景。





水软橹声柔,绿草方舟,碧桃几树隐红楼。烟雨里的江南,满是朦朦胧胧而又梦幻的轮廓。那个曾令无数文人寄情又梦回的江南,如今已成为杭州西溪云庐中一方避世绝佳之处。







矩阵纵横(matrix design)成立于2010年,是一个以提供高端设计服务为目的的设计品牌,团队主创人员皆有多年服务于国内知名房产开发商的工作经验,并与客户建立了长期稳定、相互信任、共同发展的合作伙伴关系。 无规矩不成方圆,此为矩; 落笔成点,点通过‘矩’布成平面的‘阵’,‘阵’通过‘纵横’发展成为立体。从一点至立体,从一维空间至三维空间,由此,纵横天下。 2018年,矩阵纵横已成长为一个拥有纵横中国一二三线城市地产设计和项目管理经验、同时具备开阔国际视野的160人规模的设计机构品牌,除提供硬软装室内一体化设计以外,矩阵纵横也向着地产类建筑与景观设计、家居产品设计生产、新材料研发与生产制造、设计专案落地拍摄宣传推广服务等产业纵向一体化发展。
项目名称:杭州绿城西溪云庐3层合院样板间 项目地点:中国 杭州 硬装设计:Matrix Design矩阵纵横 软装设计:LSDCASA 项目面积:435.8平方米
版权声明:本文内容由用户自行发布上传或投稿由设计芝士代为发布,版权归原作者所有,设计芝士不拥有其著作权,亦不承担相应法律责任。如果您发现本站中有涉嫌抄袭或侵权的内容,请点此提交工单进行举报,一经查实,本站将立刻删除涉嫌侵权内容。

