感谢来自 大海小燕设计工作室(Atelier D+Y) 的办公项目案例分享:
这个办公室为广告设计师们和他们的两只猫设计。在魔都,对于忙碌的设计师而言,创意与灵感、忙碌与疲惫早已经融入他们的日常,工作与生活早就密不可分。而猫的存在,为他们的生活增添了一抹色彩。
我们为他们的办公空间融入一些温暖,一点居家式的场所感。


9mx15m的条形空间中,我们在中部设置了一个loft夹层,看似将通高的空间切割得零碎,实则为了最大利用高度,同时引入自然采光,提高舒适度。
空间中部,两个管道穿过,严重制约夹层的布置。靠入口排烟管下部高度3.9m,导致入口处无法设置夹层。中间的污水管下高度4.3m,设计要同时满足上下层有舒适的高度较为困难。同层同户型其他租户的设计,均将夹层靠窗设置,虽然规避了管道高度的制约,然而体验并不理想。


设计仔细比较了三种Loft布置方式:A:靠近入口区域,受烟管、水管双重影响,Loft区域过小。B:紧靠窗口(周边办公室均采用此方式),规避了高度限制,夹层与窗不对位,极大影响采光,入口通高区域过大,Loft区域较小。C:位于中部,横跨水管,Loft区域最大,有效引入采光,靠窗的通高区域设置为领导办公位,入口的接待区尺度更合理。
综合比较,采用了C方案的布置方式。


夹层靠墙设置楼梯,穿越水管的位置局部上下踏步,避免碰头,再通过连廊与夹层区域联系。水管将夹层区分成两个区域:会议和休息。通过一个框形的长卡座分割,强制将站立的姿态转化为坐卧,解决高度上的尴尬。
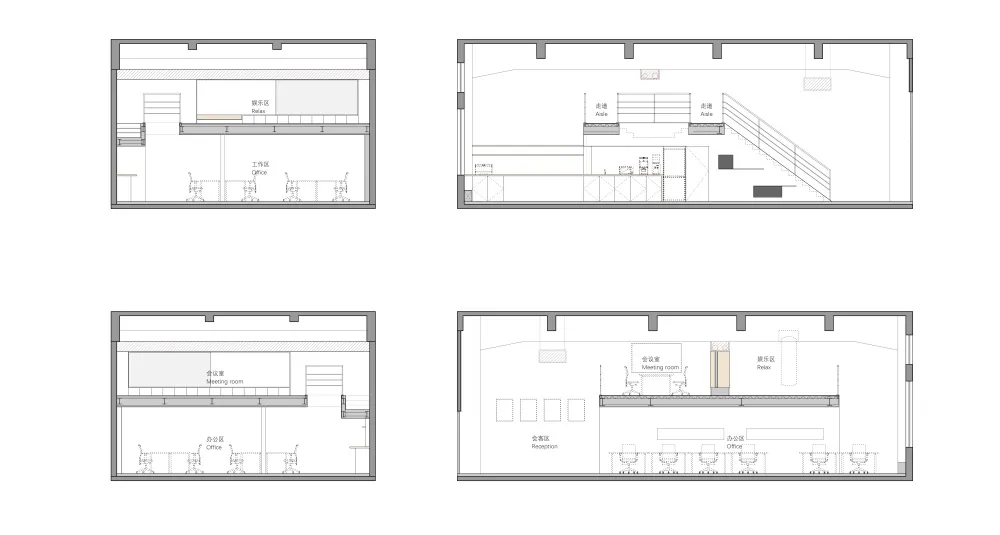
首层布置接待区、办公区,靠墙结合楼梯设置储藏间、吧台。二层为会议和休息。


从入口进来,整个空间一览无余,开放通透的办公环境。远处自然光线向内部渗透。
开敞的楼梯,线性的扶手,楼上楼下空间融合一体。结合楼梯布置的吧台,融合了展示、储存、生活、打印,如同家中的客餐厨,是开放空间的核心,工作与生活密切交织。
与白色吧台相对的是黑板墙,深色的背景,是灵感释放交流的场所。
靠窗边的领导办公位,夹层与窗脱开,引入了自然光线,空间挑高通透,靠墙布置一排休息卡座。


夹层为会议区和休息区,木色增加空间的温度。会议和休息区之间的水管下方设置一镂空墙体,木框镶边,内嵌黑板墙,供人休息和会议时候涂写,巧妙化解管道高度的限制。扶手采用黑色钢管,在白色的背景中极富纵深感,同时最大限度引入自然光。

简洁的点线面元素,猫与人的和谐共处,办公与居家在这里融为一体。











∇ 立面

∇ 平面图


∇ 分析图



∇ 轴测分析GIF

主要项目信息
项目名称:居家式办公空间——梵布互动办公室设计(Fabula Office)
设计公司:大海小燕设计工作室(Atelier D+Y)
官网:www.atelier-dy.com
联系邮箱:[email protected]
完成年份:2019
建筑面积:200㎡
项目位置:上海徐汇区
摄影师:大海小燕设计工作室(Atelier D+Y)

