项目是日本服装品牌 Christian Dada 在台北的旗舰店,也是该品牌在海外的第二家专卖店。 Christian Dada 的第一家海外专卖店位于新加坡,主要展示了品牌的起源和概念“达达主义”。个性化的呈现方式让 Christian Dada 同其他奢侈品牌区分开来。此次的台北旗舰店同样特立独行,以“废墟”为主题贯穿整个150平方米的商店空间。
 
 
提起“废墟”,人们常常会想到这样的场景:被毁坏的墙壁歪歪斜斜,光线从屋顶的窟窿里倾泻而下,潮湿的地面积存着渗漏下来的雨水。建筑师基于人们对于“废墟”的场景记忆进行设计。墙壁从地板和天花板中随意地伸出,未经处理的黑色钢管赤裸裸地暴露在外。反光的砂浆地面层和巴力软膜天花从材质上模拟出“废墟”中积水地面和残破屋顶的感觉。
 
 
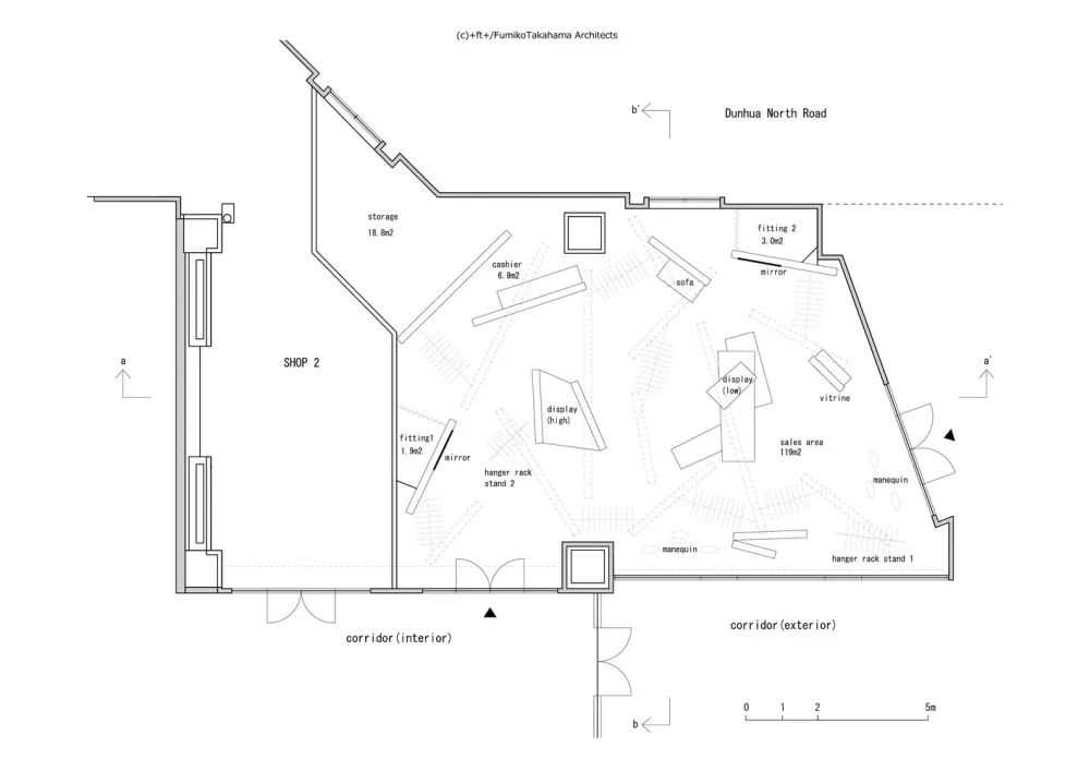
室内隔墙划分出的空间暧昧而多元,似乎在暗示消费者更多地在空间里走动和体验。Christian Dada 的商品有着不同的定位。除了有性别的区分外,按照设计师想要述说的故事、商品呈现出的外观风格等的不同,商品被划分成各种系列。隔墙创造出的区域分别陈列着品牌的不同系列。 未经处理的挂衣钢管是可拆卸的,以适应一些临时需求,如安装、表演、T台秀等等。
 
 
“未完成”的施工现场和“废墟”的设计主题,从时间发展的顺序上来说,一个是逐渐完善,一个是逐渐肢解,似乎是相互背离的;但从呈现出的即时状态来看,二者又是如此相似。设计师从中意外地受到了启发,临时更改了施工计划。通常情况下,墙壁上会先安装一层水泥板,再覆其他材料。但是项目却是直接在需要表现主题的墙壁上进行特殊处理,由设计师本人亲自涂抹砂浆,完成了空间设计。












 
 
建筑师 Fumiko Takahama Architects 地址 台北,台湾 主创建筑师 Fumiko Takahama 设计团队 Takahito Ohno, Kie Torii 建筑面积 150.0 平方米 项目年份 2018 摄影师 Rex Chu 厂家 Signify, Barrisol 结构设计 Yasuhiro Kaneda 承包商 Dynasty Design Corporation
版权声明:本文内容由用户自行发布上传或投稿由设计芝士代为发布,版权归原作者所有,设计芝士不拥有其著作权,亦不承担相应法律责任。如果您发现本站中有涉嫌抄袭或侵权的内容,请点此提交工单进行举报,一经查实,本站将立刻删除涉嫌侵权内容。
    

