这所新建的学校位于孔孟之乡济宁,是一个可以容纳从幼儿园到高中全学段9000名学生的超大规模寄宿制学校——一个完全由孩子们构成的社区。如何在这样一个影响中国两千多年的儒家文化的发源地处理一个社区化“理想校园”的设计任务,如何在城市新区的大尺度肌理环境下营造一个亲切宜人且充满想象力的校园,对设计师而言也是全新的挑战。
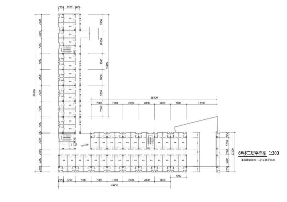
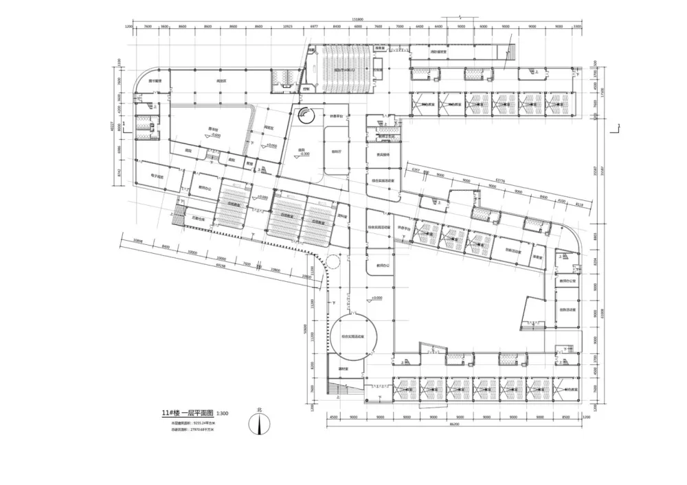
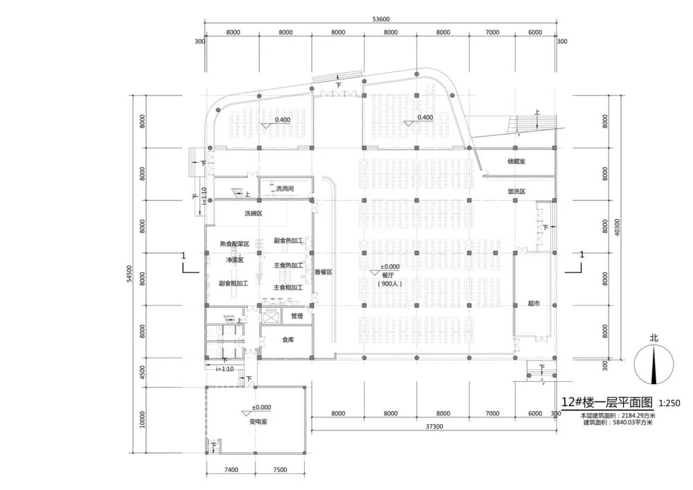
项目用地被两条T字交叉的道路分隔为南北两个部分。依据青少年的身心发展阶段及年龄认同感的考量,将初中、高中并置于北侧面积较大的地块,小学、幼儿园则置于南侧较小的地块。两个区块的出入口均朝向规划中的次要道路以规避城市快速路的不利影响,继而将各个教学单元依据自身所需的采光、通风等物理条件进行合理高效的系统化布局。

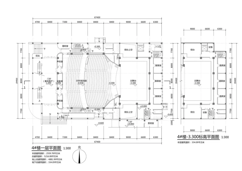
对孩子们多样化行为的关照最终体现在设计对校园空间的类型化处理之上。设计者将孩子们的各类空间行为按照必要性活动、自发性活动以及社会性活动三种类型进行分类处理,并将设计的着墨点更多地集中于后两类行为之上。“礼”、“诗”、“野”三个不同主题的体验序列构成了容纳必要性行为的教学单元之外最核心的空间线索。
孔孟之乡的文化符号与城市新区的物质尺度限定了项目初始的条件框架,而对“儿童发展本位”的教育观的深层解读使设计者找到了处理矛盾的核心出发点——对人的积极关照总是一条解决复杂问题的基本路径。






































































建筑师 象外营造工作室 地址 高新区,济宁,山东,中国 主创建筑师 刘伟波 方案团队 张增武,焦尔桐,张洪川,于文原,王洪强,郑洁,安琪(实习),田雪(实习),武瑜葳(实习),张天宇(实习),孙喆源(实习) 建筑面积 235000.0 m2 项目年份 2017 摄影师 Feng Shao
版权声明:本文内容由用户自行发布上传或投稿由设计芝士代为发布,版权归原作者所有,设计芝士不拥有其著作权,亦不承担相应法律责任。如果您发现本站中有涉嫌抄袭或侵权的内容,请点此提交工单进行举报,一经查实,本站将立刻删除涉嫌侵权内容。

