Design wind direction
当所有人呼吁年轻人,别买loft,别上当的时候,谁又站在这些准备买Loft的群体中思考过呢?如果有买商品房的资质和预算,谁又会考虑买40年产权的商住两用呢?
站在年轻人的角度上想,不考虑学区,不考虑落户,拿来自住的话,Loft可以说是非常适合的一类选择,大多数Loft附近交通发达,商业配套完善,主要是价格不高,面积多一倍,对于年轻人来说,还是很友好的。今天我们分享三个Loft的设计案例,设计公司INT2 architecture,看看Loft到底有多吸引人。
Log style restoring ancient ways
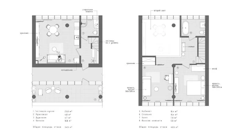
这是一间上下两层共计80㎡的Loft三室公寓,简约复古的格调使它看起来氛围感满满。灰绿色的乳胶漆涂刷在半墙的高度,有一种老式“卫生墙”的既视感。
客餐厅挑空的部位吸引了大量采光,玻璃窗也为室内提供着舒适自然的光线。整个空间创造出一种明朗安逸的居住体验。
黑胶唱片机折射出屋主人对生活的热爱,午后放上一支悠扬的曲调,享受慢生活的美好。
在二楼俯瞰一楼的公共空间,木质与纯白的自然交融,使整体氛围非常和谐,富有秩序。
质朴的木作搭配低奢黄铜,营造出精致温润的生活场景。
浴室内工字铺的小白砖组成了极简美学的最基本形式,六角砖的线条感刻画出空间丰富的细节。
小露台也是一个非常小资的存在,日常在这里种花养草,喝上一杯香槟,生活如此惬意。
Industrial style restoring ancient ways
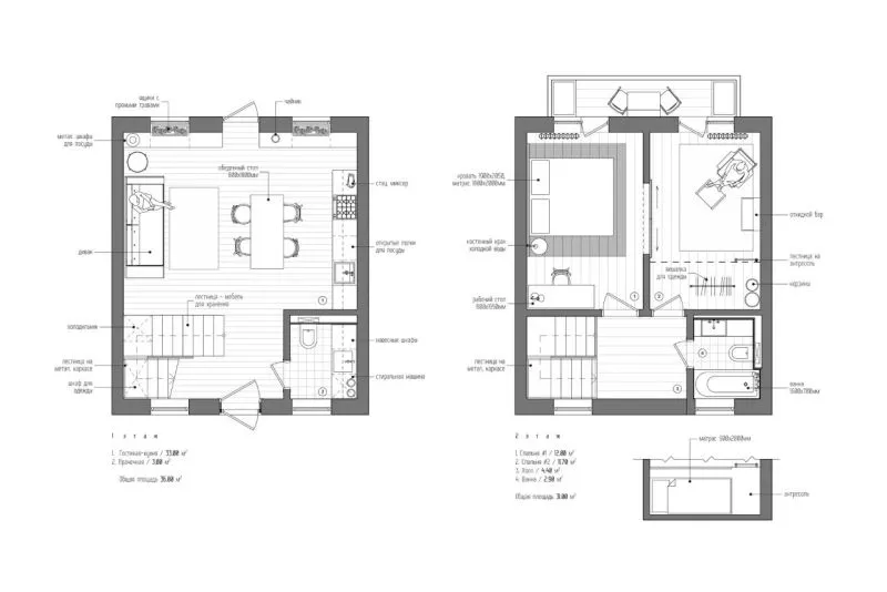
67㎡的Loft小宅,整体以复古的工业风装饰,裸露的墙壁,大面积炭化木和混凝土天花板都充满着超凡的设计感。
大部分家具都是屋主自己和朋友亲手制作(朋友的家请见下一套案例),为了打造工业感,两人在木材的选择上全部使用了炭化木,偏黑色调的炭化木在家庭使用中美观又舒适。关于炭化木,戳这里了解更多:
金属网和铁艺制作而成的收纳柜现代感十足,黑色的铁艺制品与空间中白色基调形成鲜明的对比关系,在黑白色调的空间内,网状材质的镂空感又增添些许层次美。
大多数Loft配套的都是开放式厨房,宽敞的空间,舒适的动线承载了一层公共区域的自然转承。
楼梯柜也是炭化木定制产品,根据使用需求,划分了几个大小不一样的收纳空间。
从楼梯上看向一楼,墨绿色的橱柜和周围的材质搭配非常和谐。
二楼的两个房间用一扇移门相隔,既相互独立,又可合二为一。
非常有特点的是床头柜并不是一个传统的柜子,而是一个破旧的铁水桶,带着浓浓的年代感,在空间中起着功能与装饰的双重作用。为了与它搭配,设计师还在墙壁上挂了一个小玩意“水龙头”,设计可以说是非常可爱了。
书房的空间是一个多功能区,既可以作为书房使用,也是二楼的衣帽间。由于位于建筑的顶楼,上方还带有一部分挑高,放置一张床垫,也可以作为客房使用。
二楼主卫安装了浴缸,绿色铁艺洗手台的设计呈现出清新的工业感。
一楼的洗手间主要作为客卫和洗衣房使用,没有单独的洗手台,而是将洗衣机,收纳柜,洗手台定制在一起,节约了空间,完善了功能。
Heal the contracted style
本案的屋主与案例二的屋主是好朋友,在同一座公寓内购置自己的房子,装修也是同步进行,两人都对炭化木有着非一般的热爱。
本案面积有69㎡,公寓内的部分家具也都是使用炭化木现场制作的,包括边几,楼梯和床等。其中一些家具和装饰品是在跳蚤市场上购买的比如客厅里的扶手椅,镜子,台灯等。
靠近厨房的一面墙壁全部使用炭化木装饰,自然又简练的线条感勾勒出空间中的形体美,材质的应用也使氛围提升一个层次。
厨房整个区域被漆成灰绿色,从地面到顶面,仿佛是一个绿色的盒子。
一层卫生间的入口隐藏在整面碳化木墙面中,内部便是多功能的卫生间区域。
进门处没有单独鞋柜的空间,所以借助楼梯下方的位置用来挂一些衣服,楼梯的空格刚好形成了鞋柜。
楼梯的两侧都没有设置柜门做常规的储物,而是用开放格的形式将一些收藏品和乐器收纳起来。
二楼的床是纯炭化木制作,色调很深,但是与空间仍然能够很好的融合。
床体下方还定制了抽屉用作储物。
旧货市场淘回来的复古台灯,怀着对老物件的尊重,形成空间中新与旧的对话。
二楼的另一个房间就是屋主的工作室,在这里可以做一些小物件,画上一副油画,给逃离喧嚣的人制造出质朴而舒适的休憩空间。
二楼卫生间用墙体划分出了干湿区,使用起来舒适性更强。

