项目坐落于雅加达中央商务区,由Studio Kota事务所设计,白天是一家日式休闲餐厅,晚上则是清酒酒吧。
▼自由流动的悬挂屏风成为整个餐厅引人注目的焦点
▼屏风与下方的座位布局相互呼应
▼深色主色调与温暖的灯光相结合
▼深色木材、天然石材以及砾石
▼由屏风高度俯瞰室内空间
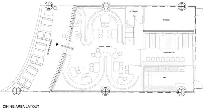
主要用餐区的后部设有一个尺度更小,更为私密的用餐空间,从这里可以直接进入主题酒吧。
ISSEI日式餐厅,印度尼西亚 丨 Studio Kota
项目坐落于雅加达中央商务区,由Studio Kota事务所设计,白天是一家日式休闲餐厅,晚上则是清酒酒吧。
▼自由流动的悬挂屏风成为整个餐厅引人注目的焦点
▼屏风与下方的座位布局相互呼应
▼深色主色调与温暖的灯光相结合
▼深色木材、天然石材以及砾石
▼由屏风高度俯瞰室内空间
主要用餐区的后部设有一个尺度更小,更为私密的用餐空间,从这里可以直接进入主题酒吧。
ISSEI日式餐厅,印度尼西亚 丨 Studio Kota
之前
