地中海现代主义建筑的真实诠释与葡萄牙立体主义建筑的平衡融合。一个纯粹的白色当代简约主义家庭住宅位于Quinta dos Salicos, Carvoeiro, Algarve(葡萄牙)。基于自然有机的布局设计,建筑的主要形状(梯形)遵循地块本身的形状,在室内外空间(自然融合)不断开放的视觉和物理关系中,引导不同的立面获得最高效、阳光和宜人的景观。
纯粹的直线、统一的颜色(白色)、平顶(生活露台)和由不规则角度塑造的体量,以及由光线/阴影在不规则体量设置上的关系定义的概念。建筑概念遵循生态友好的方法,以优化气候和自然采光/通风条件为基础。
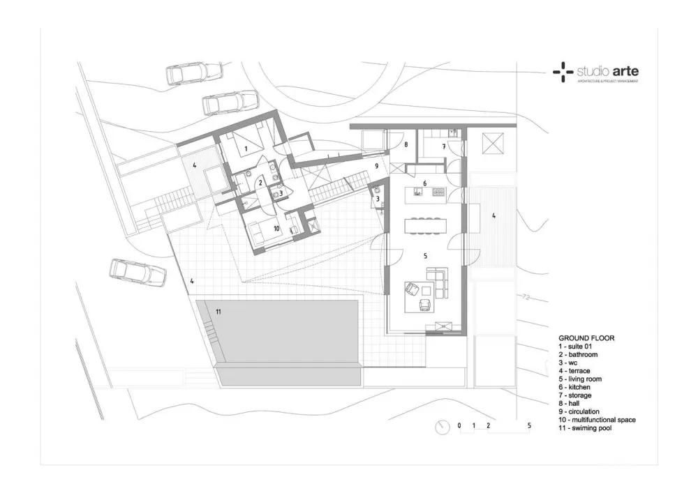
底层的体量与地块的侧限平行。几乎“盲目”的北立面与其余立面形成对比,其中三个体量具有不同角度的丰富的玻璃平面,建立了住宅、露台和景观之间的关系。一楼遵循相同的概念,采用“干净”的北立面。其余的立面和不规则的平面强调了与景观和阳光的关系。 功能程序分为三个层次。停车场、仓库、技术区、电影院和健身房位于地下一层,自然地按照地块的自然坡度建造。
一楼由社交区组成,厨房和起居空间通过大玻璃窗与游泳池旁的主露台在财政和视觉上连接在一起。还有一个更私密的区域朝向西方,考虑一间带有私人浴室和多功能厅的卧室。

采光和雕塑般的金属楼梯将一楼与一楼的私人项目连接起来,考虑主卧室与浴室和客房卧室,两者都有私人露台,平衡成南/西和北/西,可以看到国家、海洋和山脉日出和日落的景色。
两个平台与地块的自然坡度相融合,遵循房屋的对齐和不规则形态,以设计前南露台和水池区域为主要概念。第一个平台位于一楼,靠近朝向日落位置的主露台。下层的第二个平台集成了溢流池系统的收集器池,并设置了第一个平台(上层)和花园区域之间的连接
一个减少维护(低耗水量)的有机地中海干花园概念,尊重地块的原始斜坡,低矮的植被被白色的砾石颤音包围,一些橄榄树和果树被松树树皮覆盖。最小的,低维护的概念与葡萄牙的灵感,使用当地的材料也呈现在外部循环和主要入口入口,那里用鹅卵石地板来定义路径。
一般来说,房子是发达在“两个世界”,在“第一世界”在北方区(入口)背后的房子是隐私保护计划(翅膀),定义其神秘的效果和隐私控制过渡到“第二世界”,完全动态的、开放的、液体不断接触到休闲区(梯田/池)和自然环境(地中海干花园的概念和国家/海平线视图)。
这是“两个世界”之间的分界线。“第一个最不透明和秘密的世界”,在北方(入口),在那里发现了围绕着他们的计划的空间,就像一个迷宫的墙;“第二世界”,动态的,开放的,流体的,与外部区域(露台和游泳池)和它的环绕(花园和自然景观)的交流。













































位置:小湖,葡萄牙 架构师负责:若昂Carrico 区域:379.0平方米 Porject年:2017 照片:Da Cruz Photo
版权声明:本文内容由用户自行发布上传或投稿由设计芝士代为发布,版权归原作者所有,设计芝士不拥有其著作权,亦不承担相应法律责任。如果您发现本站中有涉嫌抄袭或侵权的内容,请点此提交工单进行举报,一经查实,本站将立刻删除涉嫌侵权内容。

