2020在疫情对各行业的波动之下,今年有两个板块需求非常大,一个是设计,一个是儿童教育板块。2021开年之初火爆朋友圈的正是下面这个知名日本设计公司——日比野设计的幼儿园!
这家幼儿园不仅展现了日本的文化元素,室内设计更是丰富有趣。极大满足了儿童的心灵世界。
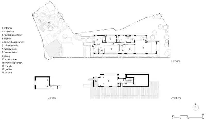
以“立山下的守护,激发孩子们冒险欲与好奇心的幼儿园”为设计概念,富山县富山市新建了能容纳125名孩子的幼儿园。
从幼儿园可以远眺自古以来作为当地的象征,守护着市民、被大家所喜爱的立山连峰。这里地理位置得天独厚,立山连峰山势多样,攀登形式也有多种选择。
仿古建筑一直都是日本延续传统文化的重要手段,并且能做到纯正的传统风格。这家幼儿园也同样采用仿古建筑的形式塑造,与占比多数的现代化幼儿园相比,让人眼前一亮。
室内滑滑梯丰富了孩子们的室内童趣,材质选用木质与整个空间主旋律相一致。这里就像一个乐园,却又有着学习成长的空间。
这里还设置了独特的互动小屋,形态更是醒目别致。由窗向外看,孩子们似乎沉浸在一个充满欢乐的虚拟世界。
瀑布的网状攀登游戏道具
建筑师以能勾起孩子们冒险欲和好奇心的立山连峰等环境要素为园舍的设计灵感,在室内设置了十几处游戏场所。
包括凹凸不平像岩洞一样的互动空间,使人想要不断前行探索的隧道走廊,模拟瀑布的网状攀登游戏道具,能俯视一楼厨房和餐厅的“眺望之丘”,被绘本围绕能让人安心阅读的下沉式绘本池等,园舍内还四处散落着能刺激孩子们好奇心的各种游戏装置。
在这样的环境下,孩子们每天都像在立山连峰一般冒险,不断探索新的可能。在融入了故乡特征的园舍中生活,不仅可以激发孩子创造力,还能够更了解和喜爱自己的家乡和国家。
项目名:SH Kindergarten and Nursery 所在地:富山县富山市 设计监理方:HIBINOSEKKEI Youji no Shiro KIDS DESIGN LABO 占地面积:4102.10㎡㎡ 建筑面积:1567.12㎡ 使用面积:1584.69㎡ 构造规模:鉄骨造、地上2层 竣工时间:2020年10月 照片:Ryuji Inoue ( studio BAUHAUS )
除了上面这个托幼一体园,我们再来看看日本另外一家幼儿园是怎么设计的。我们可以从中获得共性和规律,并且得到启发。
日本大分县宇佐市旧幼儿园建筑庭院里的改装项目,可容纳76名学生。
旧幼儿园里有一棵生长多年的大树,大树树荫下的空间随着四季的变化为孩子们带来了许多新发现与游戏,同时也是孩子们之间不断加深交流的环境。
这家幼儿园同样延续了旧园舍的特征与历史,保留丰富的自然环境,以“连接树荫的幼儿园”的为设计出发点,开展了设计计划和工作。
大屋顶是幼儿园的一大特色,横跨大树间的屋檐下是孩子们聚集活动的场所。室内大量使用了自然的素材,天然木材的香气与质感,使得室内外具有良好的自然连接,孩子们在室内也能感受到庭院般的自然。
餐厅,一侧为整面开窗,厨房通透可见
为了在园内打造能尽可能接触到自然光、清爽的自然风的
舒适用餐环境,餐厅采用了可全开的门窗。
相对传统封闭起来的厨房,设计师刻意设置了大大的透明玻璃窗,让孩子们观察玻璃内的制作食物的景象,提供孩子与厨师的交流机会。
为当地居民提供服务的休息空间、阅读角等模拟木洞形象设计的空间,是园内提供丰富交流契机的场所。
能自由游戏与活动的艺术空间内,无需担心弄脏地板,孩子们能集中于自己手上的工作与游戏,并且通过朝向自然丰富的庭院,自然的元素将不断促进孩子们的学习能力与创造力。
新园舍最大的特点便是延续了旧园舍里为大家所爱的树荫空间,将其作为设计的元素及亮点,从空间环境上培育孩子们丰富的感性成长。
项目名称:FS Kindergarten and Nursery 项目地址:大分县宇佐市 设计监理:HIBINOSEKKEI Youji no Shiro KIDS DESIGN LABO 占地面积:1983.97㎡㎡ 建筑面积:608.70㎡ 使用面积:664.93㎡ 构造规模:钢筋结构、2层建筑 竣工时间:2020年3月 照片拍摄:Toshinari Soga ( studio BAUHAUS )
这两个幼儿园有许多共性:延续传统文化、与周边环境相适应、斜屋顶底层建筑等等…你认为哪个更有趣呢?作为中国设计师,我们参与幼儿园设计时能否从中学习,做出更多的适应本土又能符合孩子心灵世界的幼儿园?

