位于Arnhem Gelderland的省政厅改造项目获得了荷兰皇家建筑师协会颁发的年度最佳建筑奖,也引起了媒体与公众极大的关注。这个项目是对现有建筑的改造和扩建,要求在保持原有建筑纪念性特征的同时,创造一个可持续性的现代工作环境。建筑师、Team V Architecture负责人、本次项目建筑设计负责人Jeroen van Schooten 说:“House of Province的美丽之处在于,我们将设计融入到了各个层面,从城市尺度的规划到最小尺度的建筑细部。”
位于Arnhem Gelderland的省政厅改造项目获得了荷兰皇家建筑师协会颁发的年度最佳建筑奖,也引起了媒体与公众极大的关注。这个项目是对现有建筑的改造和扩建,要求在保持原有建筑纪念性特征的同时,创造一个可持续性的现代工作环境。建筑师、Team V Architecture负责人、本次项目建筑设计负责人Jeroen van Schooten 说:“House of Province的美丽之处在于,我们将设计融入到了各个层面,从城市尺度的规划到最小尺度的建筑细部。”
建筑师使用ETFE膜材建造了一个充满创意的屋顶,将省政厅原有庭院改造成室内广场。Van Schooten 说:“屋顶设计希望尽可能减小对纪念性建筑的影响,因此我们与SIDstudio一起合作设计了一个由杆件和电缆组成的轻型结构。”屋顶结构杆件末端装有LED灯并且都指向庭院的中心点。“这形成了一个有趣的光影游戏:当你穿过中庭时,屋顶景象一直在变化。”新屋顶不仅塑造了一个纪念性的接待大厅,还能够帮助大大降低能源消耗。
“我们尝试利用和加强省政厅的文化历史价值,省政厅是五十年代著名的Gesamtkunstwerk,意思是这栋建筑可以看作是一件完整的艺术品。”新建筑中的部分元素来源于原本的建筑,如沙漏图案,此外建筑师还增加了一些新的元素。庭院中的蓝色楼梯就是一例,它既是问询台,又是座椅也是花坛。“蓝色钢材和沙漏是Gesamtkunstwerk的一部分。如果你环顾四周,你会发现这类特征无处不在。正是这些细节元素使得省政厅如此特别。”
省政厅是由VolkerWessels Integraal领导的公私合作(PPP)项目,VolkerWessels Integraal负责设计、施工和为期20年的维护运营。设计团队由Team V Architecture, OTH architects, Karres and Brands Landscape Architects, Bureau Fritz, Bartels, SIDstudio, DGMR 与 Valstar Simonis组成。




















▼结构细部

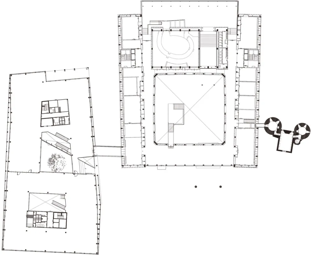
▼新场地平面
▼剖面

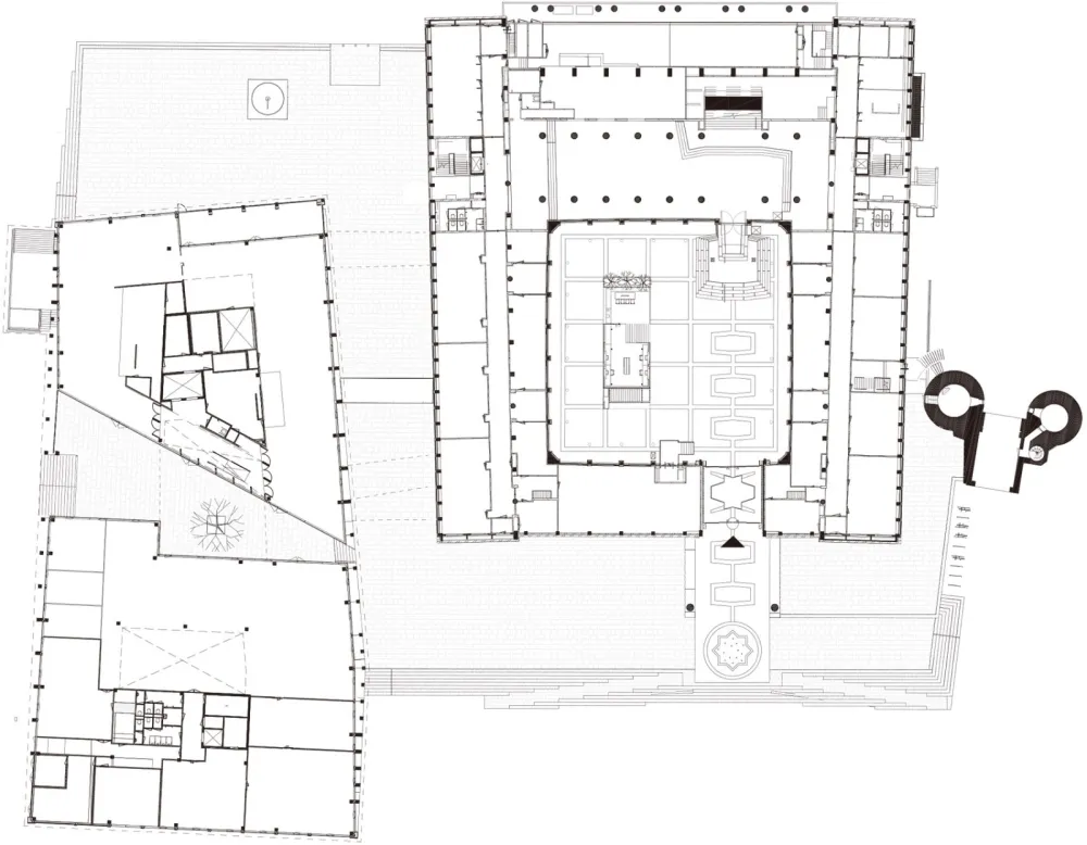
▼首层平面图

▼杆件层平面

▼ETFE膜材层平面

设计公司:Team V Architecture 位置:荷兰 类型:建筑 材料:镜面 金属 铝板 钢 玻璃 ETFE膜 led灯 标签: 格尔德兰,Gelderland
版权声明:本文内容由用户自行发布上传或投稿由设计芝士代为发布,版权归原作者所有,设计芝士不拥有其著作权,亦不承担相应法律责任。如果您发现本站中有涉嫌抄袭或侵权的内容,请点此提交工单进行举报,一经查实,本站将立刻删除涉嫌侵权内容。

