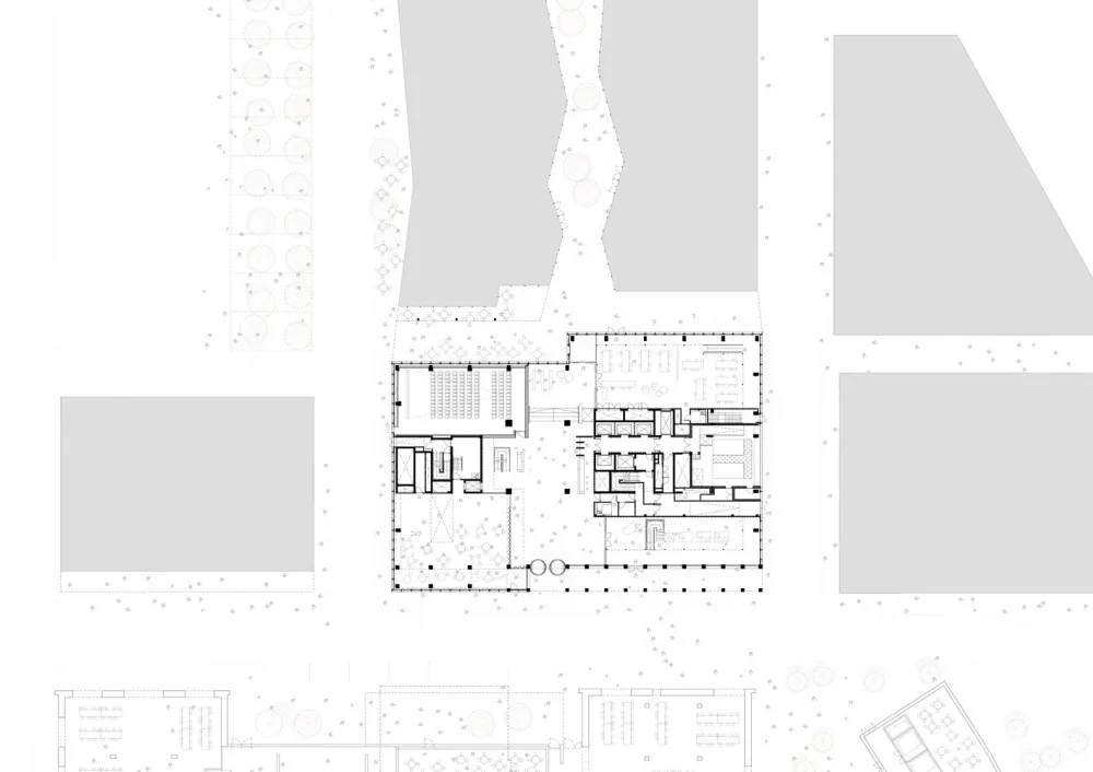
R7是国王十字车站快速发展地区的一座11层楼高的建筑。这是一座以城市为中心、粉色信封的办公楼,有一个公共大厅、电影院、餐厅和鸡尾酒吧。通过这种全面的用途组合,建筑师挑战了办公室的标准,一楼的体验正逐渐成为一个受欢迎的公众休息室,人们想在这里消磨时间。
建筑的两侧升高到不同的高度,由毗邻的中央圣马丁大学建筑的高度决定。试图通过一系列的挫折和凹槽打破这一体量,在每一层创造了面向南的露台或花园,从城市的景观中获益。这个序列和值得称赞的室外空间提供了一个雕塑般的兴趣和建筑的特点,通常很少在企业办公楼。
金属翅片立面的两个不同的缎面粉色阴影有助于将建筑一分为二,其中一个由裸露的混凝土柱廊接地。从柱廊上悬挂的灯到露台上铺砌的旗子,这座建筑上的一切感觉都是定制的,颜色与“粉色”立面相匹配。

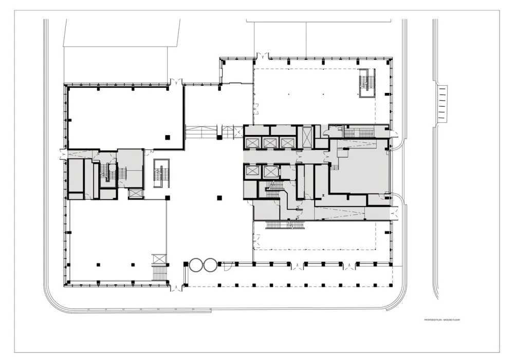
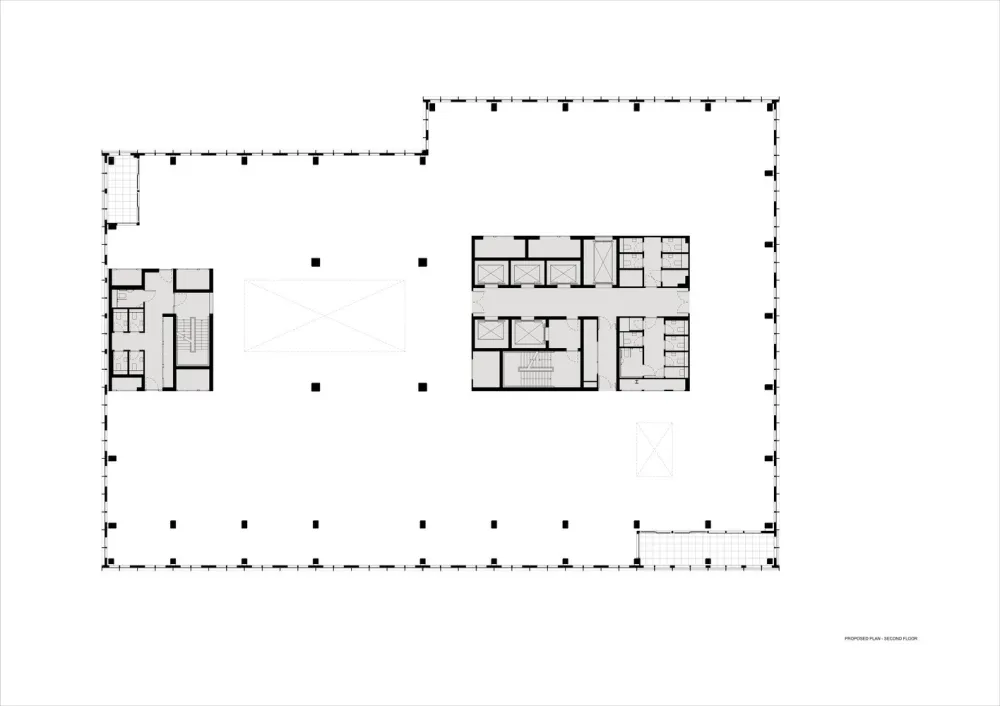
剥离”的内部饰面与裸露的混凝土结构形成了一个令人愉快的对比,与清爽的外部形成鲜明对比,同时也为租户提供了灵活性和最小化的装修成本。建筑师在重要的地方优先花钱的意识在公共空间和设施的设计质量中表现得很明显——钱花得很明智。该建筑很好地解决了不断发展的工作空间的问题,允许灵活的装配,特别是在楼层之间有连接楼梯和空间的软点。
















位置:英国伦敦N1C国王十字车站Handyside St 区域:22900.0平方米 项目年:2017 照片:杰克·霍布豪斯,弗朗西斯科·罗素
版权声明:本文内容由用户自行发布上传或投稿由设计芝士代为发布,版权归原作者所有,设计芝士不拥有其著作权,亦不承担相应法律责任。如果您发现本站中有涉嫌抄袭或侵权的内容,请点此提交工单进行举报,一经查实,本站将立刻删除涉嫌侵权内容。

