运河万科中心暨杭州汽车互联产业生态创新区,总建设规模约36万平方米,是杭州万科的第三座万科中心。在一期5座高楼脚下,这栋不到2000平方米的小建筑,是贯穿整个总体规划600米纵深公共空间轴线上,最重要的活跃元。作为创新体验中心,这座建筑围绕汽车互联网产业,以独特的空间、多元的内容,建构新的场景体验,驱动产业未来,可谓小建筑大能量。
这座建筑,汽车可沿连续坡道一直开到屋顶,将成为杭州的汽车超级秀场。我们找到一把钥匙,打开了所有人无尽的想象。建成后很多人说,这是一座颠覆传统的建筑。
建筑漫步
盘旋的汽车坡道、屋顶圆盘展台、露天观演大台阶、连续的楼梯台阶系统……,通过规划位于建筑外部与内部的两条漫步系统,我们实现了现代主义建筑的经典时间和空间理念——建筑漫步。
坡道
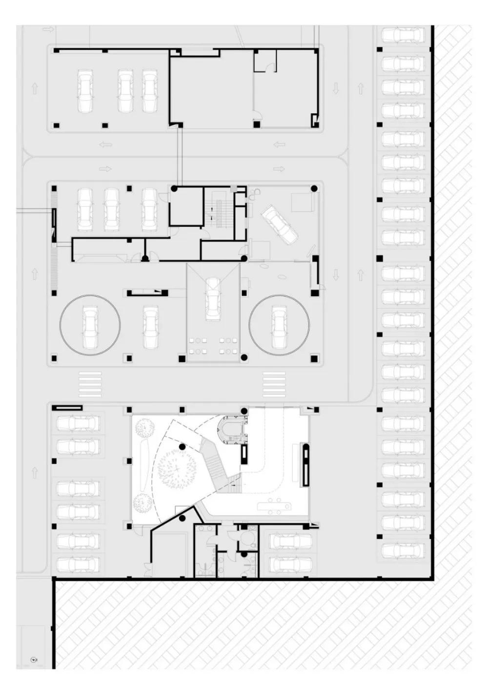
建筑位于基地东南角的沿街处。它的东侧、北侧分别邻近规划路(一期项目的主要机动交通路径)、地下车库出入口, 它的西侧、南侧面向中心广场、中轴线。坡道沿着北面圆的东侧外围,逆时针盘旋而上,绕一周上到北面,二层圆形屋顶,为第一个圆盘展场;沿着南面圆的东侧外围坡道顺时针盘旋而上,绕一周上到南面三层圆形屋顶,为第二个圆盘展场。宽阔的大台阶连接两个圆盘屋面,整个屋顶就成为了超级秀台、露天剧场。
坡道和屋顶组成位于建筑外围的第一条漫步系统,坡道在节日模式供车辆使用,日常模式时则归人使用。
台阶和楼梯
南面圆形的西侧面向广场,打开一个楔形空间,插入从地面广场,通往二层,为具有戏剧性空间效果的大台阶,将广场上的人们引入建筑内部,拾级而上。
大台阶与下到地下室的折线楼梯、二至三层的楼梯,组成位于建筑内部的第二条漫步系统,通过中庭,将地下、地上各个楼层连接起来。
人、汽车在空间中移动,外部或内部,交错或碰面,急速或停留,此刻与未来……,这里既是在展示汽车,也是在体验建筑、城市。
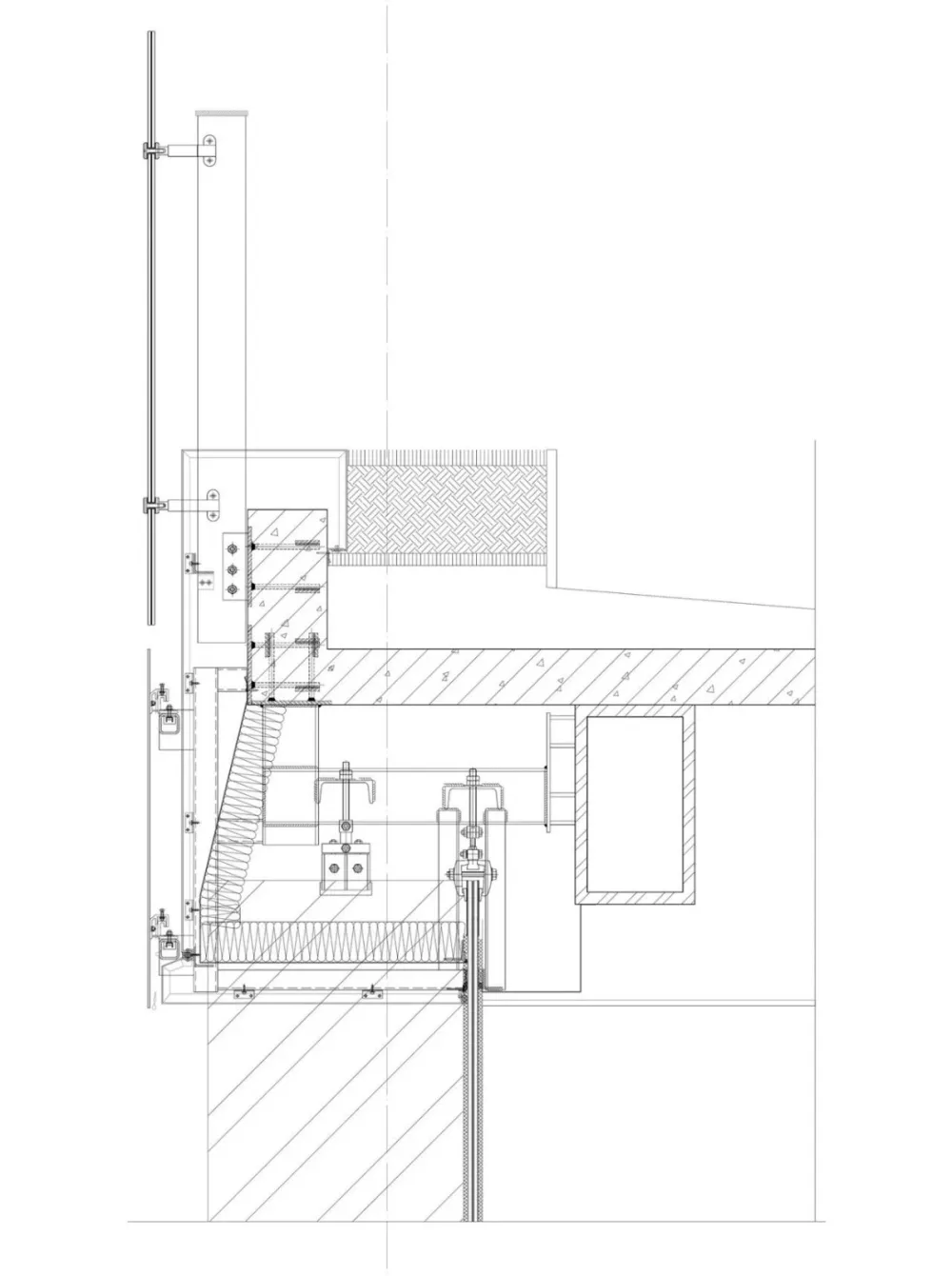
坡道与地面、楼面之间的立面:采用长(超白钢化)短(白色彩釉钢化)两片夹胶玻璃,组成锯齿形造型单元,玻璃悬挂在梁下,沿圆周排列成齿轮形;同时,南北两个圆上的锯齿逆向旋转,南面逆时针排列,北面顺指针排列,使两个旋转齿轮咬合。
楼面与楼面之间的立面:采用隐框Low-e超白钢化中空玻璃,玻璃之间夹超白钢化夹胶玻璃,形成齿轮造型。
坡道及屋顶玻璃栏板:采用曲面超白钢化夹胶玻璃、不锈钢立柱+点抓玻璃的构造;4毫米曲面铝板包翻边作为玻璃的背衬面层。
梁位置:双层铝板构造,内部采用3毫米铝塑复合板完成外墙防水的闭合;外层采用单片3米x0.9米x5毫米曲面铝塑复合板开缝构造方式,每块铝板之间的开缝控制为5毫米,形成连续盘旋飘带。
楼梯栏板:采用橙色穿孔铝板,色彩大胆、雕塑感强烈的楼梯系统,使其视觉上如内部支撑着漂浮着的圆形建筑,成为空间中的视觉焦点,引导人们在建筑内部上下穿行。
既是会看之物,也是被看之目光
不论你是在开车、还是行走,不论是白天、还是黑夜,当这座建筑突然出现在你的视野中,因其浑然一体的造型、流动通透的空间、扭转变换的姿态,它成为令人惊喜的被看之物;当你走进它,踏着坡道盘旋而上(而下),或者踏着阶梯,你就会发现,你的视线不再停留于这个建筑本身,而是在持续移动中,随着坡道或台阶转向、视线顺着眼前的引导投向外部、以及远处的城市。
我们是否真的颠覆了传统
与公众对这座建筑的理解不同,我们不但从未颠覆建筑的传统,恰恰相反,通过这个作品,我们用一种新的、当代的形式向建筑(学)的伟大传统致敬,雅典卫城、埃菲尔铁塔、柯布西耶的萨伏伊别墅、OMA库哈斯的鹿特丹当代艺术中心(Kunsthal Rotterdam)……,传统是融合建筑空间性和时间性的体验,建筑漫步Promenade Architecture,它朴素而强大、耀眼而长久,对此我们一直心存敬意,并试图丰富它。
设计单位 上海汇乘建筑设计咨询有限公司
项目地点 杭州市拱墅区,萍水东街、花园岗街交口
建筑面积 2000平方米
建成时间 2018年12月

