新创意团队办公室位于塔拉德诺伊区(Talad Noi district),在一个街角,两条曲曲折折的小巷交汇在一起。该项目包括将两个相邻的排屋改造成新的工作场所和工作人员基地。
Talad Noi是一个具有私密城市尺度的传统街区。构造类型包括构造类型及其最显著的类型;排屋,小的可步行的小巷网络,和慷慨的摊贩分散。规划规章制度阻碍了高层建筑的发展和密集化。最近的发展仅限于将排屋从传统工艺和贸易改为旅馆和咖啡馆。然而,翻新并不局限于这些用途。排屋类型学确实是多才多艺的

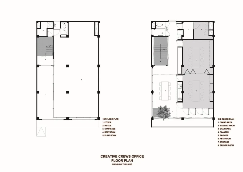
改造后的建筑分为两个部分,正式功能位于空调南侧,循环和配套设施位于自然通风的北侧。一楼和二楼是出租的零售空间。三楼的一个灵活的会议空间向公众出租,并由CC的工作人员使用,相邻的两个体量,半室外庭院用于公共功能。白色的奶酪树为那些利用烧烤聚会的烤架的人提供了荫凉。以绿化为前提有助于增加和促进整个有限的邻里绿化。四楼、五楼和六楼是办公室。顶层是员工宿舍,还有一个相当大的露台,可以放下一张乒乓球桌和一个猴子酒吧。您可以在三楼、五楼和七楼找到食品室。
现有的建筑以前有许多住户;每个人都对这座建筑留下了自己的印象。每一个改变和标记都保存着经过一段时间积累起来的记忆。所有原始的饰面都保持完整,新的添加物被当作新的层处理,通过原材料和饰面来区别于现有的层。为了最大限度地促进循环,拆除了现有的钢筋混凝土楼梯,并插入了一个新的钢狗腿。为了体现该区域的精神,当地元素如剪刀门排列在楼梯井,作为灵活的隔断。相邻墙壁上的痕迹未被渲染,作为原始楼梯的提醒。以前的居住者在一个遥远的岛屿上用蜡笔画了一个阳光灿烂的日子,现在被保存下来,作为四楼建筑师的复兴景观。

已完成的建筑识别并保存了嵌入建筑本质的多层历史,并区分了附加部分,以允许该建筑时间轴的延续,同时有效地组织新的空间来服务新的功能。一个敏感的方法与蛮力,尖锐和原始的结果。它还展示了排屋类型的通用性,以适应各种用途。










地址:泰国 年份:2018 摄影:Takdanai Raktawat, Art4D Magazine
版权声明:本文内容由用户自行发布上传或投稿由设计芝士代为发布,版权归原作者所有,设计芝士不拥有其著作权,亦不承担相应法律责任。如果您发现本站中有涉嫌抄袭或侵权的内容,请点此提交工单进行举报,一经查实,本站将立刻删除涉嫌侵权内容。

