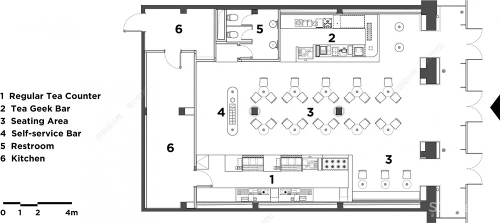
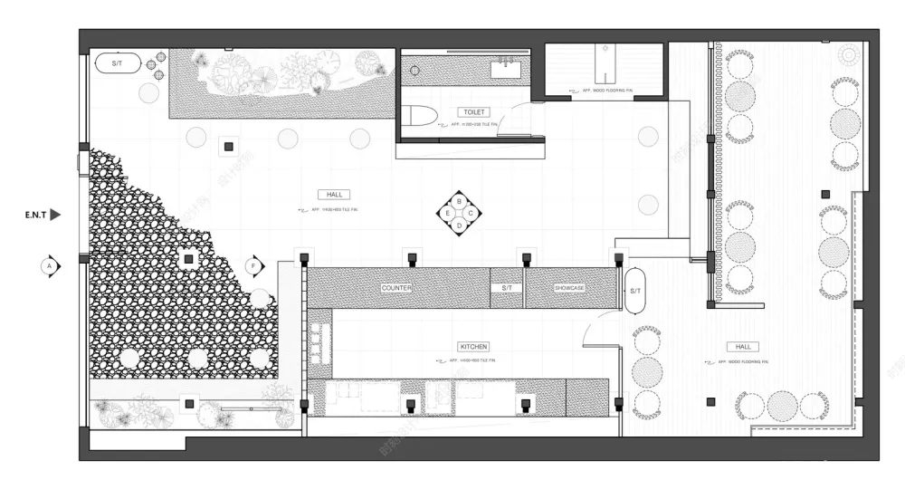
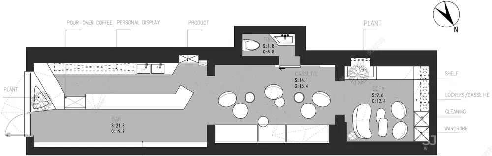
在设计之中
平面图的重要性
是整个项目效果最重要的一部分
而平面布置其实也是最难的一部分
想要做好平面布置图
没有捷径,唯有多练,多看,多思考
从现有的优秀设计方案中
吸取经验,发现灵感
才能突破瓶颈
打开一片新的思维天地
进入更高的境界
SO
又到了收集平面方案的时刻了~
今天
小编给大家带来一份
《咖啡甜品店网红店平面布置方案合集-260张》
希望对大家的工作有所帮助

在设计之中
平面图的重要性
是整个项目效果最重要的一部分
而平面布置其实也是最难的一部分
想要做好平面布置图
没有捷径,唯有多练,多看,多思考
从现有的优秀设计方案中
吸取经验,发现灵感
才能突破瓶颈
打开一片新的思维天地
进入更高的境界
SO
又到了收集平面方案的时刻了~
今天
小编给大家带来一份
《咖啡甜品店网红店平面布置方案合集-260张》
希望对大家的工作有所帮助

感谢楼主无私的分享
太棒的資料 ,感谢分享
太棒的資料棒的資料