该项目位于蒙特利尔以西50公里处的一个小型社区。里戈市(Rigaud)介于里戈河与渥太华河之间,以自然风景和历史悠久的村庄而闻名,后者可以追溯到新法兰西殖民时期。作为城市重建计划的一部分,新的市政厅由Affleck de la Riva建筑事务所负责设计,旨在为里戈的公共及政府活动赋予新的意义。新建筑通过一条步行长廊与既有的公共设施形成连接,使场地重新焕发活力,同时将村庄的核心地带连接至里戈河岸。
白上之白:民主与透明 | White on White: Democracy and Transparency 里戈市政厅虽然规模不大,却反映出一种强烈的民主形象。凭借易达且无障碍的进入路径,市政厅与城市和市民形成了亲切对话,展示出市民在集体生活方面的参与感和自豪感。建筑的形态参考了古典式的神殿,使人联想到民主制度的起源。白色的墙体和柱廊营造出纯净、清晰的观感,象征着正直、诚实以及表达的自由——这些都是健全的公民社会所必不可少的价值观念。明亮且不加修饰的外观使建筑与渥太华谷北部的景观和谐相融。

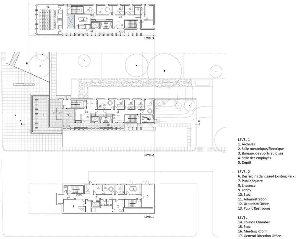
主会议室位于广场和入口上方的悬臂式体量当中,从附近的街道上可以清晰地望见。会议室的三个立面完全由玻璃围合,旨在突显民主活动的透明度。位于该体量下方的户外区域为集会和交谈提供了宽阔的、受保护的空间。建筑的东立面和北立面外部围绕着白色的铝制柱廊,透过柱廊的空隙则可以看见印有里戈城市标志的白色砖墙。这一标志为白色的建筑增添了些许亮色,同时指明了建筑的市政功能。
穿越柱廊之后,可直接由主入口进入被天窗照亮的大厅。大厅向两个楼层敞开,并从侧面与沿着柱廊延伸的走廊相连接。这条走廊如同一条北欧风格的“柱廊”(stoa),在与周围景观形成连接的同时,也成为市民和行政人员对话与交流的重要空间。



▼场地平面图
▼整体透视图
▼楼层平面图
▼剖面图A-A’
▼轴测图
设计公司:Affleck de la Riva architects 位置:加拿大 类型:建筑 材料:木材 金属 铝板 砖石 玻璃 标签: Rigaud 里戈
版权声明:本文内容由用户自行发布上传或投稿由设计芝士代为发布,版权归原作者所有,设计芝士不拥有其著作权,亦不承担相应法律责任。如果您发现本站中有涉嫌抄袭或侵权的内容,请点此提交工单进行举报,一经查实,本站将立刻删除涉嫌侵权内容。

