泰国大城府萨拉精品酒店 Sala Ayutthaya
泰国大城府萨拉精品酒店(Sala Ayutthaya)是Onion工作室在泰国大城府完成的新作,该酒店是一座拥有26间客房的精品酒店,地处泰国湄南河风景最秀丽的位置。酒店面对1353年由大城府第一代国王下令修建的古迹沙旺寺。
畔风景如画的泰国故都大城府内。
长长的砖墙中间有一道铁门,里面是有木制天花板和两层艺术画廊的前台接待处。
在砖墙包围的庭院内看不到湄南河和普泰萨万寺的全貌,只能看到餐厅到河边的风景。从这里可以看到酒店的另一面,
,俯瞰河面的台阶和露台。
建筑临街部分是低调的砖墙,进入主厅后,推开沉重的铁门到达酒店院落,首先引入眼帘是的是曲面几何墙体围住的交通院落。高大墙面的极简几何造型在一天之中拥有丰富的光影,带给客人无穷无尽的光影体验。
曲墙院落联系酒店的系列院落和区域。人们要穿过墙,到达庭院进入客房。围绕白色庭院共布置了12套客房。中心连廊将庭院分成两个部分,一个是与外面曲墙庭院的红砖形成鲜明对比的白色泳池庭院,一个是种植这绿色树木的铺着红砖地面的花园。
台阶的图案设计成水浸过的样子,可以说是借鉴了大城府
设计师在一个角落里建造了一座小型的普泰萨万寺,按比例重新设计了内外墙,水平和垂直平面,以及家具和面料等。
虎跳的形象,在泰国传统中象征权力,被刻在了木制的床头上,一种叫做禄马瓦德的典型装饰品则放在了浴室和床上。
Baan Pomphet
由 creative studio onion 和 ml chittawadi chitrabongs 设计的“ baan pomphet”是泰国古都大城府一座历史要塞旁边的新餐厅和酒店。
Baan Pomphet的外部设计灵感源自于项目场地及其周边环境:场地位于可俯瞰“巴萨克河”和“湄南河”交汇处风景的绝佳位置,旁边是一座古老的“Pom Phet”堡垒。
我们在设计建筑以及包括滨江平台在内的所有平台的布局时,最关心的是所有客人的视野:如何在尽可能地为用户提供最好视野的同时,还能保证酒店客人的隐私。
▼餐厅和酒店建筑从道路中间分开,方便人们一进入就能欣赏到河流美景
我们在游泳池和主通道之间建造了一堵木墙作为酒店主要木制楼梯的延伸,同时,这样做也是为了加强酒店客人的隐私。
▼河边古老的砖砌堡垒,游泳池旁的一棵巨大菩提树,这些只有在里面的客人才能欣赏到
另外,Baan Pomphet原场地上的一棵优雅的菩提树,经过我们的精心修剪,并通过尽可能远离树根来建造建筑地基,而很好地保存了下来。
▼完好保存下来的菩提树丰满了整个空间
Pom Phet堡垒是漆成白色的砖加水泥结构。我们也延续这些材料,继续使用了当地常见的砖块。这种砖块特别小,排列在6种不同的墙壁和地板上,呈现出特殊的橙色。
▼手工制作的砖块的颜色有轻微的随机性,构成的不同墙壁纹理可以形成不同的光影变化
Saralee Rattanapuchpong是当地的一名居民,她的家人和Baan Pomphet同一条街上开了一家很成功的餐厅。
▼融入泰国传统住宅的温馨细节元素设计
Baan Pomphet餐厅内部的主色调是烤河虾肥橘色。我们在餐厅内部加入了泰国当地用来在河里捕虾和其他小鱼的传统渔具,这种器具也代表了村民的传统智慧。我们把它们作为吊灯布置在餐厅的天花板上,也在餐厅的墙上使用了chanang的编织品。
▼来到入口,客人们会先看到“烤河虾屋”(带有木制烟囱的木制建筑),再穿过主通道进入餐厅
▼餐厅内部加入了泰国当地用来在河里捕虾和其他小鱼的传统渔具,这种器具也代表了村民的传统智慧
酒店房间内部有两种颜色,它们都来自食物。有的是叶绿色的,有的房间是菠萝蜜黄。室内设计注重简约,使得内外之间,有建筑细节的简单与复杂的对比,也有绿色和黄色与砖和木材的颜色形成的对比。
▼从泰国食物配料Cha-plu叶中汲取色彩灵感的酒店房间
▼从泰国糖果配料菠萝蜜中汲取色彩灵感的酒店房间
哈努曼门把手是Baan Pomphet其中的一个小设计元素。在《罗摩衍那》史诗中,哈奴曼是印度教风神Vayu的儿子。我们用哈努曼来象征着Baan Pomphet的风。先让Chunsiri Chai-ear画出了哈努曼的门把手,然后再在柚木上进行手工制作。
Baan Pomphet展现的是业主、建筑师和工匠之间的信任,它让每个人都能发挥出了各自最擅长的技能。
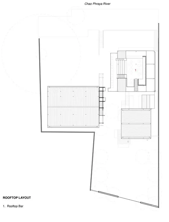
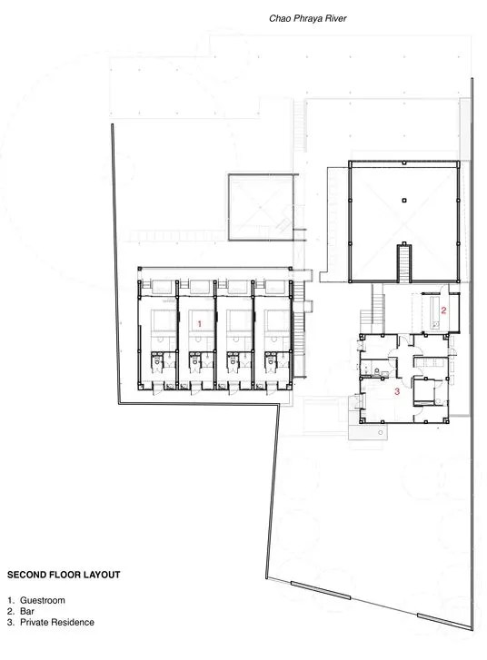
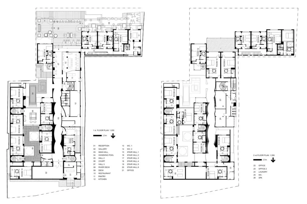
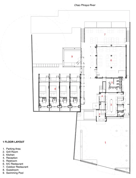
▼建筑各层平面图 Floor Plan
项目名称:Baan Pomphet 建筑类型:餐厅、酒店 业主:Saralee Rattanapuchpong 地点:大城府乌通路“宝菲”古堡旁 完成:2020年 建筑设计:Onion Co. Ltd. 和 M.L.Chittawadi Chitrabongs 首席建筑师:Arisara Chaktranon, Siriyot Chaiamnuay, ML Chittawadi Chitrabongs 室内设计:Onion Co. Ltd. 结构工程:Sawekchai Tangaramvong 承建商:Double Click Construction Co. Ltd. 建筑面积:2020平方米 土地面积:1492平方米

