该项目旨在将18世纪Villa Saccomani的乡村附属建筑改建为住宅用,该别墅位于距加尔达湖和维罗纳市几公里的山丘上。
The project aimed to convert, for residential use, the rustic annexes of the eighteenth-century Villa Saccomani, located on the moraine hills a few kilometres from Lake Garda and the city of Verona.

在项目开始之前,附属建筑是别墅久负盛名的纪念公园的一部分,仅被视为具有低建筑价值的区域。这种负面影响主要是由于在20世纪,通过在原始的如诗如画的建筑顶部用混凝土砌块的墙壁提升墙而获得的不协调延伸,该建筑是用该地区农村建筑的典型河石建造。
Before the project began, the annexes, part of the villa’s prestigious, monumental park, were merely seen as areas of low, architectural value . This negative impact was mainly due to the building, in the twentieth century , of an incongruous extension obtained by elevating walls in concrete blocks on top of the original, picturesque, building which had been constructed with river stone typical of rural buildings of the area.
该项目首先预见到20世纪的拆除将使建筑剥离成原始的,迷人的形式。然后,用裸露的砖面建造了新的结构。这使我们可以从新结构中清楚地看到建筑原始部分。
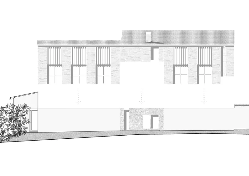
The project foresaw, in the first instance, the demolition of the twentieth century additions stripping the building to its original, fascinating form . Later, a new extension was built with an exposed brick finish. This allows us to clearly identify the original section from the new extension.


为了减少在两个相对的墙之间可能形成的过度的颜色对比(红砖的颜色与石头的灰色的颜色),两个表面都用索色的scialbatura覆盖(一种涉及一种绘画的古代技术)用石灰)。从远处看,在别墅的公园或丘陵景观中,扩建的建筑以单元的形式出现。在近处,可以清楚地区分原始建筑结构和新建结构。
To reduce the excessive colour contrast that would have been formed between the two facing walls ( the colour of red brick against the grey colour of the stone) both surfaces were covered with a rope-coloured scialbatura (an antique technique that involves a type of painting with lime). Seen from a distance, within the villa’s park or the hilly landscape , the expanded building appears as unit; close up however, it is possible to clearly distinguish the original and the new, brick extension.
尽管如此,为了减少原石表面与新砖延伸物的强线性之间形成的材料的对比度,我们尝试铺设新砖石,以减少新建筑的视觉冲击感。铺设30厘米长的砖是通过以一种看似无序的方式旋转长边来形成不对称的凹陷,并带有轻微的凹凸角。由于创建了遍布整个墙的光影,因此该解决方案使新砖表面具有惊人的光影运动效果。
Nonetheless, in order to reduce the contrast of materials that would have been formed between the surface of the rustic stone base and the strong linearity of the new brick extension, we experimented with the laying of new masonry that made the visual impact of new construction less uniform. The laying of the bricks , 30 cm long , was made by rotating the long sides in a seemingly disordered way to form asymmetrical recesses with slight convex and concave corners . This solution gave the new brick surface a striking, movement of light effect, due to the creation of light shadows spread across the entire wall.


在面向公园的一侧,砖石与地面层重合,并融入了起居区,而新的砖砌结构界定了一层卧室。
On the side facing the park, the masonry stone coincides with the ground floor and incorporates the living area while the new brickwork defines the first floor bedrooms.

一楼的砖墙被定义新窗户的切口所破坏。窗户的轮廓已完全安装在内部,因此不可见,也强调了永恒的建筑理念。在窗框和砖石之间,没有任何类型的固定梁,安装了安全玻璃,该玻璃充当隐形护栏。
The brick wall on the first floor is broken with incisions that define the new windows. The windows’ profiles have been completely installed on the inside so as not to be visible and also emphasize the idea of timeless architecture . Between the window frame and the masonry, without any type of fastening beams, safety glass was installed which acts as an invisible parapet.

在底楼,新窗户安装在建筑的现有门户内,并以铁型材制成。这样,新建部分获得了更大的抽象性,而原始部分则保留了更为原始的方面。
On the ground floor, the new windows were installed within the annex’s existing portals and were made with iron profiles in view . In this way greater abstraction is awarded to the extended parts and a more traditional aspect remains for the original section.



























完整项目信息
项目名称:意大利纪念公园里的乡村别墅
项目地点:意大利维罗纳市
项目面积:3500平方米
设计公司:BRICOLO FALSARELLA
摄影师:XYZ

