在2014年,索尔·普拉特杰大学成为迎接南非民主时代的第一所新大学。策略性地靠近Square Kilometre Array Telescope [SKA],最初135名学生规模将在10年内发展到7500名。
位于金伯利内城,一个先进的城市设计架构以新的特意建造的大学建筑与已有的市民、公共和教育无缝融合,把第三代教育作为一个综合的部分融入内城生活,或者说是城市的心脏。
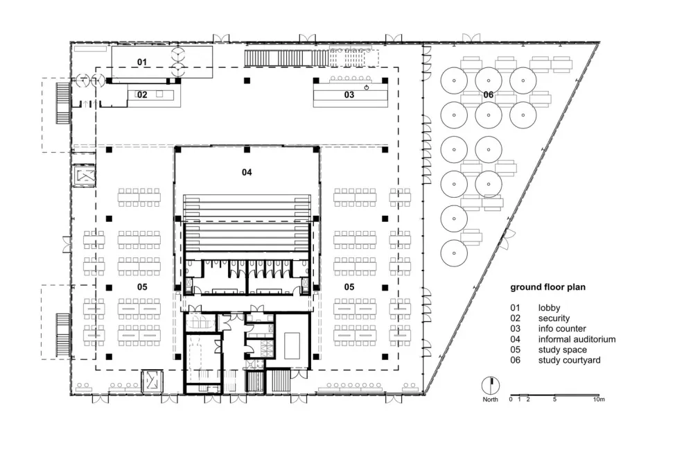
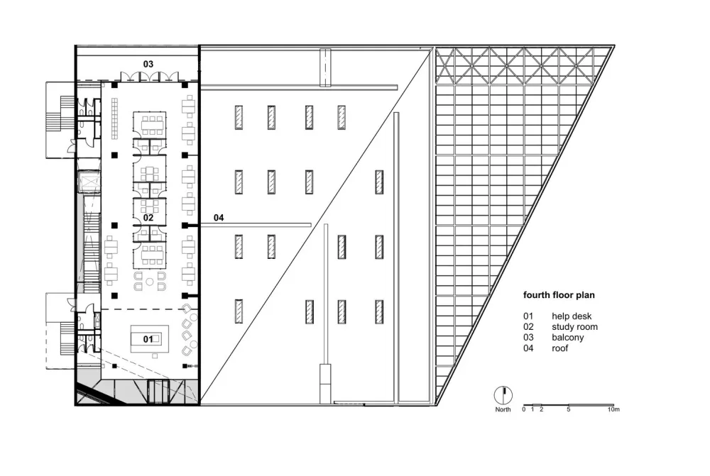
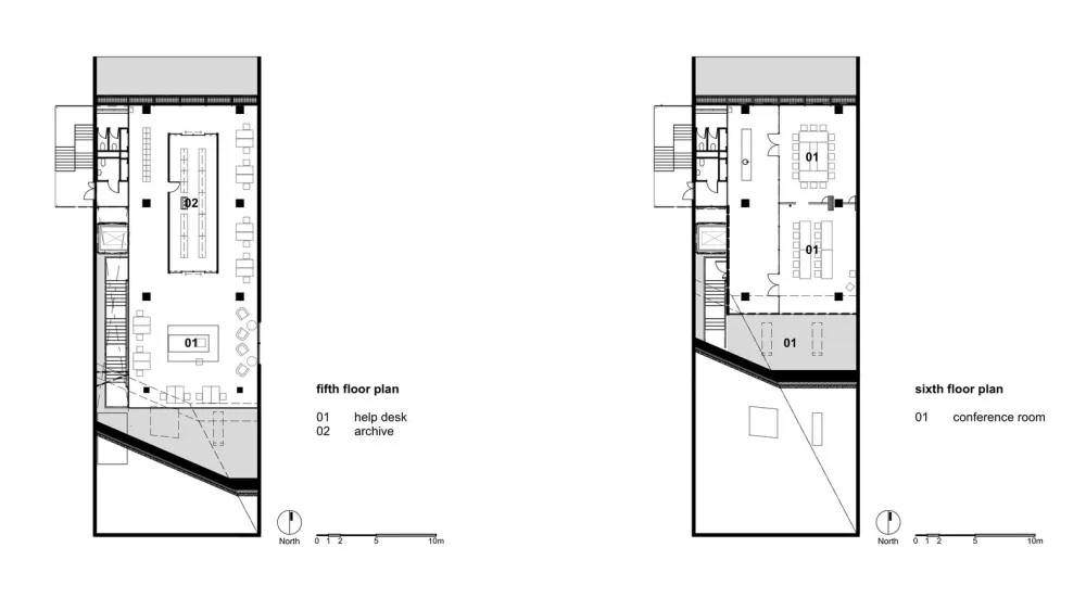
Designworkshop在两阶段的建筑竞赛中获得成功,分别进行了概念设计并产生了一个包括图书馆、教学和社交空间的校园生活功能和地理上的中心——学生资源中心。
我们探讨的关键问题是这种新兴的类型学在处于一个综合性全球化的南非的现实状况。
分享知识的古老图像是在公共环境中,人们围绕在长者,思想领袖和专家身边。取决于何时何地,这可能实在河边、树下、公共广场或者街边。这是社会设置里的学习和知识产生。在社会之中,它很不易察觉,学习来源于生活中经历的观察和实践,通常在传统文化实践的平台上。


当信息被文字记录,象征学习的图像常常是张被书环绕的安静的学习桌。这是累积的知识的传播,最常通过直接经验记录,作为从特定文化背景中提取线性的单向传播,是中性的科学。
索尔·普拉特杰大学学生资源中心在同一时间融合了两种。它是一个人们可以在日常生活中获得广泛的偶然或者刻意安排的交流的社交场所,既可以是物理空间上的,也可以在网络上,有书本或者没有书本,集体的或者单独的,由导师或者自己指导。
它同时又是一棵树,河边的一片地,一个公共广场,一条街道。
中心位于一个倾斜的公共广场,底层是金伯利的铺装,道路,广场和花园的延申。它是一个保护公共空间免受干燥气候周期性极冷极热变化的遮蔽物。
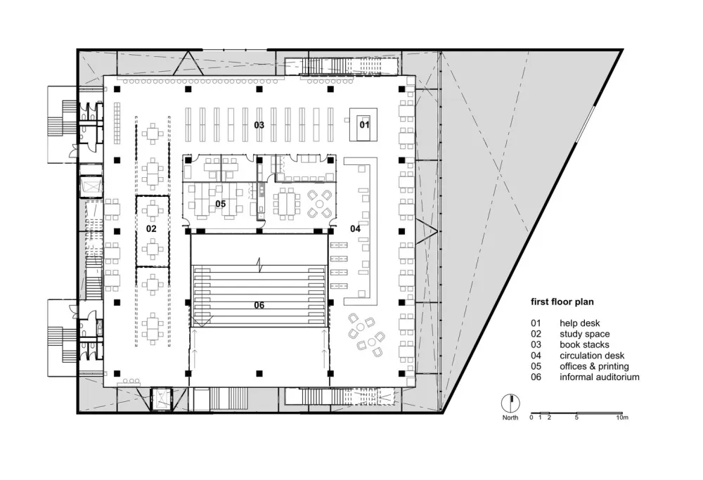
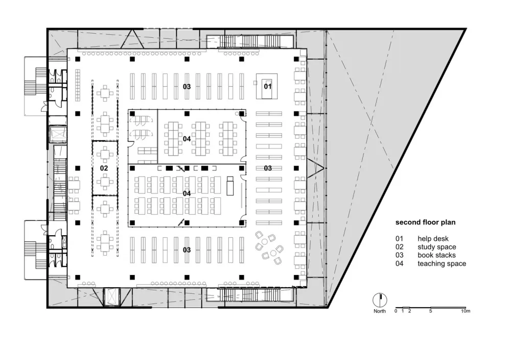
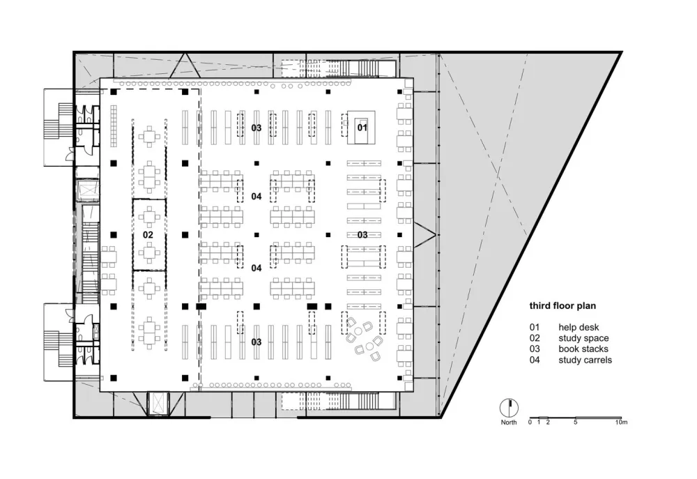
从公共上升到达私密,每个额外的楼层都是另一个可以从周边到达的公共广场,产生了一种可以三维探索的连续知识柱。
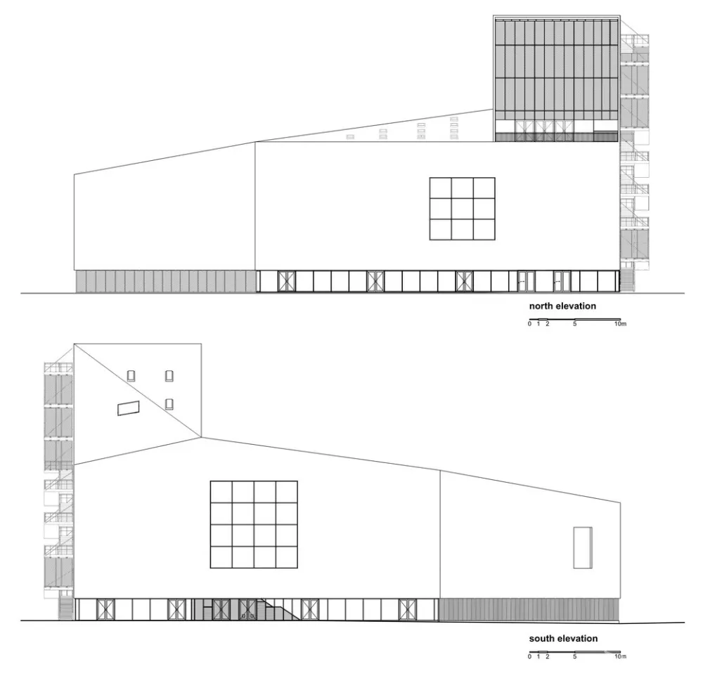
坚实的草加固的模制泥形式代表着南非本地室内的brakdak建造方式。图书馆使得该传统形成22cm厚自由站立的混凝土壳,它可以到达36米的高度,脱离地面,产生一个俯瞰学校广场的上升到最高点的挖空的体量。
另一边的金伯利标志性的Big Hole钻石矿,该建筑有特别的雕塑体量,由水平上无限的如koppie, brakdak房屋或者矿井上升起。单一材料,混凝土作为结构,闭合,有着气候调节器,灵活的使用者驱动,传统的延续和宏伟的体验。
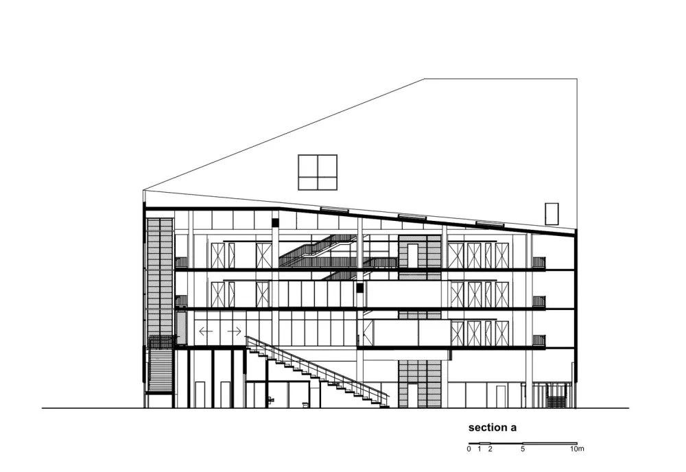
在每一天的校园生活里,该建筑是一个庇护所,一个24小时使用的冬日居所和夏日露台。
在一个资源匮乏的世界,让合适量的自然光进入室内并有效减缓热量增加和丧失是十分高效的。内部温度被藏在混凝土地板里的冷热水管调节。
在城市里,它是一个民主学习,社交,文化交流的地标,也是一个可以产生总是来源于授权的知识和想法的经济潜力生产器。
























建筑师 : Designworkshop 地址 : Bishops 大街, 金伯利北开普省, 南非 建筑面积 : 6364.0 平方米 项目年份 : 2018 摄影师 : Roger Jardine
版权声明:本文内容由用户自行发布上传或投稿由设计芝士代为发布,版权归原作者所有,设计芝士不拥有其著作权,亦不承担相应法律责任。如果您发现本站中有涉嫌抄袭或侵权的内容,请点此提交工单进行举报,一经查实,本站将立刻删除涉嫌侵权内容。

