贝叶斯中心是爱丁堡大学的中枢,致力于将爱丁堡城市中心转变成为英国最活跃的科研场所之一,以吸引数据科学和人工智能领域最高水平的国际专家。这座9500平方米的建筑是既2008年由 Bennetts Associates 爱丁堡工作室设计交付的备受赞誉的 InformaticsForum 和 Dugald Stewart Buildings 之后,爱丁堡大学在 Potterrow 校区世界级设施投资的一部分。
 
 
贝叶斯中心聚集了全领域的600名专业人士,博士生、研究员和教职工与科技企业,创业公司以及衍生的创新团体共同工作。它提供世界一流的机器人实验室,并依据 Bennetts Associates 对“协作”设计的研究提供开放灵活的办公空间,以期促进科研和协作。除此之外还有更多传统的演讲厅,工作室和相关设施。
 
 
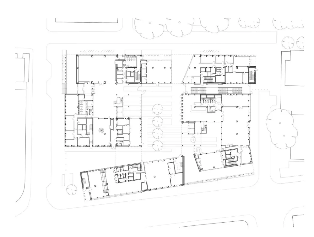
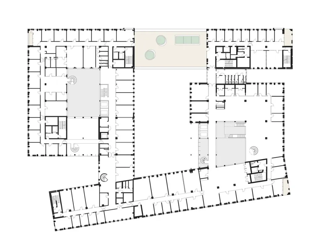
爱丁堡大学对贝叶斯中心的设想是通过利用数据科学和人工智能创造更好的未来。这需要对过去习惯上各自为政的教职工和研究员之间的智力互动和理念交流提出非常具体的设计纲要。贝叶斯中心通过一系列跨越多个楼层的咬合的连接体与校园内的现存建筑相联系。宽敞的中庭提升了建筑内部不同团体之间视觉上的“通透性”。中庭内的楼梯提供了通往各楼层的路径,鼓励企业和团体之间的偶遇。

 
 
为了呼应1960年代之前穿过场地的城市街道,Bennetts Associates 开辟了一系列入口和步行路线,创造了庭院并保留了轻松可达的公共空间。在地面层,落地玻璃提升了实验室的公共可见性。同样,设施和活动用房向公众和其他专业的学生开放,而地面层的咖啡空间横跨中庭和庭院,提供了一个社交的中心。楼内的用户可以通过大型的屋顶花园享受额外的户外绿色空间,这里提供了亚瑟王座(Arthur’s Seat)的绝佳视野。

 
 
“我们通过建筑设计竞赛于2003年开始着手进行爱丁堡大学 Potterrow 校区的开发项目,贝叶斯中心是其最终阶段。能够看到这一项目在大学中心区域逐渐成型,并且在爱丁堡极为成功并已远远超越大学本身的科技领域的演变中扮演关键角色是一种荣幸。”——RabBennetts,Bennetts Associates创办人




 
 
“我们期待在这个合作的空间里聚集研究领域和产业内部的专家,把数据科技和AI应用到一些社会上最有趣的挑战和机会中。”——Michael Rovatsos 博士,贝叶斯中心主管











 
 
建筑师: Bennetts Associates 地址 : 47 Potterrow, Edinburgh EH8 9BT, 英国 主创建筑师 : Rab Bennetts, Sally Mackay, Andy Kirk, Alasdair Gordon, Tom Rainey, Joanne Dunwell 建筑面积 : 9500.0 平方米 项目年份 : 2018 摄影师 : Keith Hunter
版权声明:本文内容由用户自行发布上传或投稿由设计芝士代为发布,版权归原作者所有,设计芝士不拥有其著作权,亦不承担相应法律责任。如果您发现本站中有涉嫌抄袭或侵权的内容,请点此提交工单进行举报,一经查实,本站将立刻删除涉嫌侵权内容。
    

