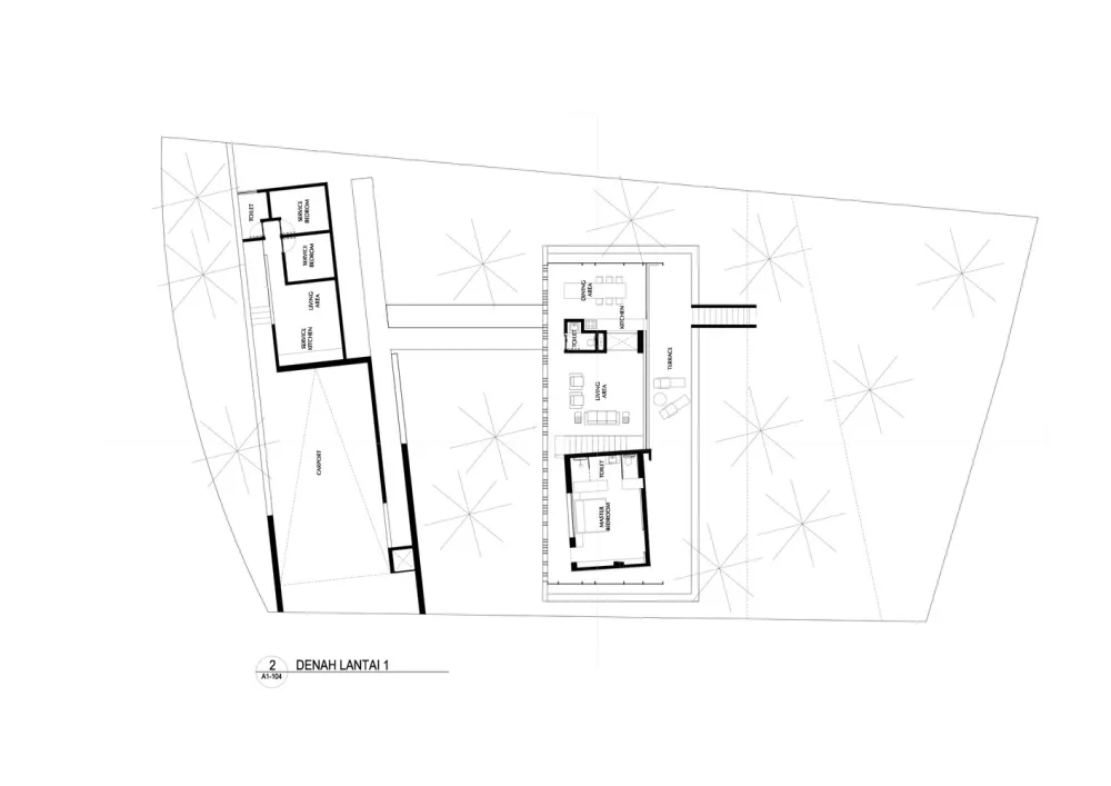
坐落于万隆山麓区的 EH 住宅是为一位母亲和她的孩子们而设计的周末度假别墅。这栋拥有三间卧室的别墅,由几个起居空间组成,连接它们的是一个室外露台。这栋别墅被设计成在联结基地内所有活动的结点,它被茂盛的松树遮蔽起来。这栋住宅在主要道路的方向是封闭的,而在面向草坪的方向开放,望向基地南边跌宕的山势和城市景观。
住宅使用的木材包括屋顶上的木瓦片、室内的柚木、露台的铁木,它们和万隆凉爽的气候十分适宜。除了物理热方面的考虑,我们也选择在别墅内营造出舒适温暖的氛围,令家庭成员们可以在此聚会和休憩。不同的楼层分别满足了生活所需的不同程度的私密性。住宅的地面层设置了生活必须的所有功能空间以及几间卧室,通过设置在一边的窗户可以眺望到南边的景色。


别墅的首层设置了一个半室外的露台、起居空间、餐厅和夹层里的阅读休息室。这些空间被一个壁炉和一道滑动玻璃门分隔开来,玻璃门在白天打开,它连接着一个在住宅的一边舒展开来的宽敞深远的露台。双重斜坡屋顶由结构和新型建筑细部构造组成,通过使用崭新技术来取得建筑语境上的本土性。这栋住宅的设计不仅创造出一个在折板屋顶下的宁静空间,更通过在木制天花板上开缝引入了自然天光来利用太阳。

























建筑师 : andramatin 地址 : Bandung, 印度尼西亚 主创建筑师 : Andra Matin 项目团队 : Patisandhika Sidarta, Yogi Ferdinand, Fandy Gunawan, Erick VH 建筑面积 : 390.0 m2 项目年份 : 2014 摄影师 : Mario Wibowo
版权声明:本文内容由用户自行发布上传或投稿由设计芝士代为发布,版权归原作者所有,设计芝士不拥有其著作权,亦不承担相应法律责任。如果您发现本站中有涉嫌抄袭或侵权的内容,请点此提交工单进行举报,一经查实,本站将立刻删除涉嫌侵权内容。

