项目名称 gad · line studio 办公空间 项目位置 杭州市西湖区教工路198号 设计单位 gad · line studio 主持建筑师 孟凡浩 朱培栋 设计团队 祝骏 齐帆 金煜庭 邓皓 张思思 葛震亮 邱丽珉 陈文 蔡志兴 蔡肖愚 朱骁铖 改造面积 1300㎡ 设计时间 2018.01-2019.09 建造时间 2018.01-2020.04 家具 Steelcase 门窗隔断 Solarlux 主要材料 Novelis (阳级氧化铝)、Zencool(合金钢)、西西韦(混凝土涂料) 摄影 潘杰 杨光坤
浙江工商大学位于杭州主城区教工路的老校区,历史可追溯至上世纪60年代。
▼办公空间结合多种使用场景
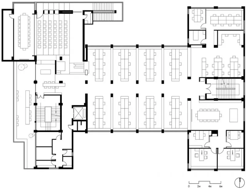
01. 打破建筑布局——夹处缝生
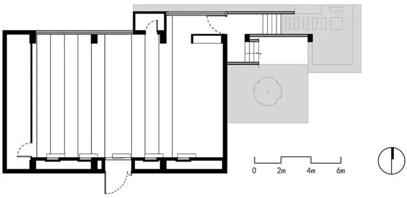
重置流线,成为设计的第一步。原B幢具备供8层办公楼使用的公共入口门厅与交通体系,line 为增强空间的独立性和视觉识别性,借助于连接原两层阶梯教室的外挑楼梯与梯侧老树,造一隅庭院为全新的独立入口,增添空间的层次感与趣味性。
▼改造前阶梯教室的外挂楼梯(左),改造后作为事务所主入口(右)
▼改造前的女生宿舍(左),改造后的办公空间(右)
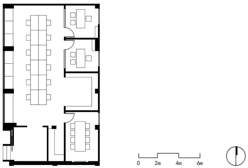
▼水吧台、接待和展厅区域
D区通过置换公共过道位置,将底层原先割裂的两部分合二为一。
02. 打破建筑立面——生长的黑盒子
原建筑外立面附属的檐下空间可塑性极大。由此引入由黑色金属和玻璃所形成的黑盒子来置换檐下的灰空间,拓宽室内面积、增加空间的层次感的同时建立起独属line 的领域感。
▼黑盒子建立起独属line 的领域感,又透露着对外展示的意图
03. 打破空间定义——“TALK-LINK”多变空间
“TALK – LINK”是line 开展内部分享、对话各行业专家的特色活动。
▼“TALK – LINK”概念
一、二层的阶梯教室是“TALK – LINK”的标志性空间。二者在垂直方向上形成整体,连同室外楼梯成为line studio的前奏与窗口。
▼1F-2F阶梯展厅不同的使用状态
在内部空间设计上,一层阶梯教室通过消隐的设计手法去除设备管线与附属用房带来的干扰,保证空间的纯粹性。
二层阶梯教室具备较大的进深空间,遂将教室后方的踏步垫高,形成平整的会议区域;
▼改造前废弃的阶梯教室(左),改造后的多功能展厅(右)
▼二层阶梯展厅的不同使用状态
04. 打破时间界限——材质的新与旧
▼B区粗糙混凝土与白色粉刷墙面对比
▼D区混凝土漆墙面,强调空间整体性
金属作为现代材料介入,纳入素色的体系的同时带来现代的精致感。
▼灯条嵌入顶部金属拉伸网,在纵深上形成序列感
D区将建筑立面黑色金属延续至室内,形成一道新的内立面。同时引入银灰色阳极氧化铝围合出一个序厅,凸显未来科技感。
▼D区以黑色钢板与阳极氧化铝延续金属质感


现在这个浮躁的世界,能细心整理一些东西发上来的越来越少了。要么就是敷衍的图片,要么就是枯燥的文字。之后就是AI生成的预制菜类的打包便捷快餐了。感谢楼主的分享,让我能在大智能无人化来临之前,看到同类发出的项目。有幸与您互动,缘分。