备受瞩目的Jameel艺术中心已于2018年11月10正式揭幕。这个创新文化中心项目是由独立机构Art Jameel发起的,旨在为中东艺术、教育和文化遗产事业提供支持。由英国Serie建筑事务所设计的Jameel艺术中心是波斯湾沿岸首个由民间组织创办的当代艺术机构,建筑面积为10000平方米,三个楼层中包含了多种类型的空间。
艺术中心的设计灵感来源于非盈利的欧洲美术馆(kunsthalle),整个建筑群有1000多平方米的画廊空间,外加300平方米的开放式研究中心;用于活动和观影的空间;一个屋顶露台;一个餐厅;还有一家售卖书籍和相关设计品的小店。艺术中心内的各种适应性空间也反映出了Art Jameel对多样化规划和培养艺术家事业的承诺。一系列展厅被精确地赋予了不同的尺度,可为展览、特定装置,以及各种委托展出提供灵活的场地。

在2014年的国际邀请赛中,Serie建筑事务所的设计方案拔得头筹。Serie建筑事务所最初的设计方案是由低矮柱廊围合而成的建筑群,建筑体量和空间设计的灵感来自于两个地区的建筑传统:其一是早期阿联酋的Sha’abi房屋,以房间围绕庭院的布局为特征;其二是Madinat式的城市规划,其特点在于将庭院和房屋聚集起来。建筑师在平面上将建筑的体块和花园不断叠加,在划分庭院的同时将建筑和花园联系起来,使得内部空间和外部空间,以及艺术空间和自然空间的层次关系变得十分明确。

Serie建筑事务所主持建筑师Christopher Lee说:“我们与Art Jameel进行了密切合作,认真了解了他们的需求,并通过建筑理念来满足并改进这些需求。最终的建筑能够适应各种用途,与其所在的城市共同发展。庭院花园周围设有画廊空间,为未来的装置展览预留出了空间,同时,人们还能在此欣赏海滨美景,留下美好的回忆。艺术中心的设计重点是强调建筑和周围环境之间的联系,因此建筑体验不仅仅是局限于这些白色的立方体里,这一点在Art Jameel的规划里也有体现。Jameel艺术中心坐落在一片离迪拜河不远的土地上,因此它与迪拜标志性的天际线相连,并与鳞次栉比的摩天大楼隔河相望。
艺术中心的柱廊在较为私密的展厅空间和公共海滨长廊之间创造了一个过渡区。空间的叠加还带来另外一个好处——参观者可以从某些角度同时看到多个空间,从而进一步加强空间之间的关联,并吸引游客参与进来,与空间产生对话。建筑表面材质结合了混凝土和半反射铝膜,在水波与时间的共同作用下呈现出微妙的光影变化。建筑群的聚集形态使得中间的庭院自带遮阳效果,同时还可以实现交叉通风。

一系列沙漠花园穿插在建筑的体量之间,带来艺术与景观的交替体验。艺术中心的7个花园由著名景观设计师Anouk Vogel负责设计,其中包括33种在当地乃至全球具有代表性的沙漠生物群落。花园中造型独特的植物均是来自世界各地沙漠中的原生物种,有着十分显著的纹理。景观的微妙色调和不同寻常的铺路方式为每个花园赋予了独特的个性。花园中还包括多种从被毁坏的栖息地抢救回来的罕见濒危植物,例如已经存活了220-300年之久的芝麻灌木(Sesame Bush)。
景观设计师Anouk Vogel表示:“植物依附着地理和气候边界生长,与政治的边界并不相干。花园的设计灵感来源于全球的主要沙漠,分别是阿拉伯沙漠、澳大利亚沙漠、奇瓦瓦沙漠、纳米比亚沙漠、索科特兰沙漠、索诺兰沙漠以及马达加斯加的刺林,它们各自拥有截然不同的表达形式,为每个空间赋予了独一无二的特征,同时也呼应了Jameel艺术中心对于多样化社区融合的一贯关注。”

柱廊作为一个活跃的社交空间,将花园景观和海滨长廊连接起来。景观与艺术的结合同样延续到艺术中心外部的Jaddaf河滨雕塑公园——它是市中心的首个露天公园,也是Art Jameel与Jaddaf河滨区的主要开发商Dubai Holding共同合作的成果。这座公园由屡获殊荣的阿联酋建筑事务所ibda担纲设计,在Jaddaf滨河区和Jameel艺术中心之间建立了一座桥梁。公园起伏的形态与河岸的水流以及建筑本身形成了呼应。
Art Jameel的艺术总监Antonia Carver表示:“作为我们的第一个永久性展览空间,Jameel艺术中心的落成标志着Art Jameel已经发展到一个全新的阶段,并将在未来持续扩大、发展新的合作伙伴,与广大观众共同分享珍贵的馆藏。我们与Serie事务所和ibda进行了密切的合作,致力于将艺术中心和公园打造为一个灵活而开放的场所,使其能够满足艺术家和观众的需求。基于创新性的设计和紧密的协作,Jameel艺术中心在未来将进一步履行它的使命:为观众带来充满活力且引人深思的展览;成为教育和研究事业的活动中心;与当地、周边区域乃至全球的艺术家、策展人及组织进行长期而密切的合作。”







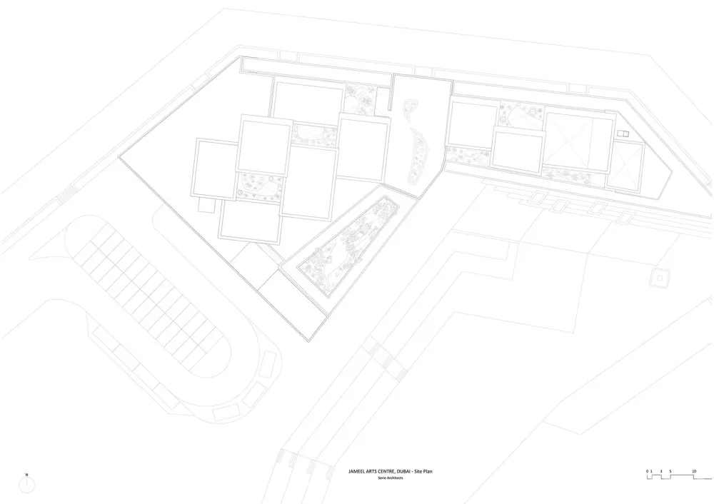
▼场地平面图
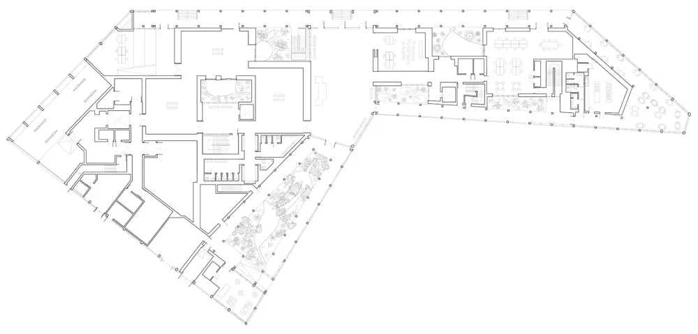
▼首层平面图
▼屋顶平面图



▼剖面图
设计公司:思锐建筑师事务所 位置: 阿联酋 类型: 建筑 景观 材料:金属 铝板 混凝土 标签: Dubai 迪拜
版权声明:本文内容由用户自行发布上传或投稿由设计芝士代为发布,版权归原作者所有,设计芝士不拥有其著作权,亦不承担相应法律责任。如果您发现本站中有涉嫌抄袭或侵权的内容,请点此提交工单进行举报,一经查实,本站将立刻删除涉嫌侵权内容。

