CAA / Águeda艺术中心的设计旨在为“建筑如何适应其周边环境”提供一种设计思路,建筑师所面临的挑战是,如何在保证该艺术中心从建筑实体、文化、经济和政治等层面上完全适应其环境的前提下,将其打造为一个世界级的文化交流平台。最终,建筑师敲定了合理的设计方案,即将艺术中心设计成一个能够使其功能最大化的建筑系统。
该艺术中心总面积为4500平方米,由三个动态的建筑体量构成,包含并组织了艺术中心的三大主要室内空间:可以容纳600人的礼堂、展厅区和从建筑中心位置延伸出去的音乐咖啡厅。除此之外,艺术中心还包含了如工作室、书店/商店、保护中心、管理/生产办公室等许多其他的辅助功能空间。
建筑的外部造型则是一个裸露的混凝土体量,体量完全适应地形,同时创造出一个新的公共广场,为城市生活带去便利。从视觉效果上看,艺术中心仿佛悬浮在一个透明的玻璃体量之上,吸引着人们前去参观,并逐渐深入到人们的日常生活之中。
CAA / Águeda艺术中心的最终形式消除了建筑物固有的人工痕迹,但同时也保留了建筑必要的与公共生活的相关性。建筑师在设计过程中兼顾了施工的实际技术,以及建筑与其周边环境的呼应。建筑本身作为文化的容器和生成者,其诗意的空间引导着游客在建筑中行走,领略艺术文化的魅力。





▼总平面图
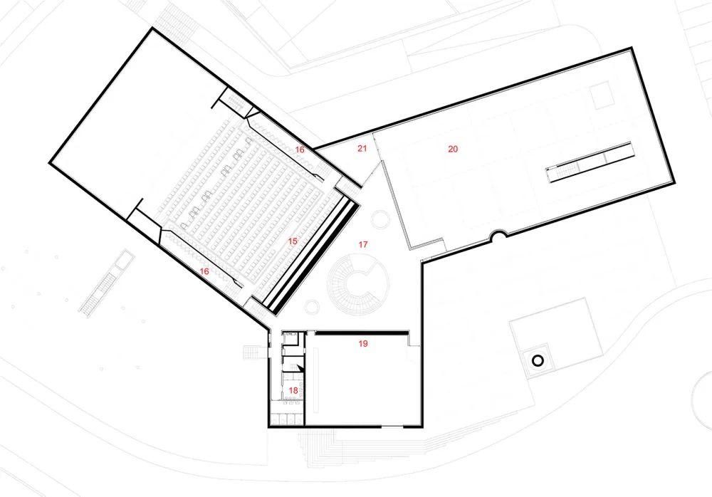
▼一层平面
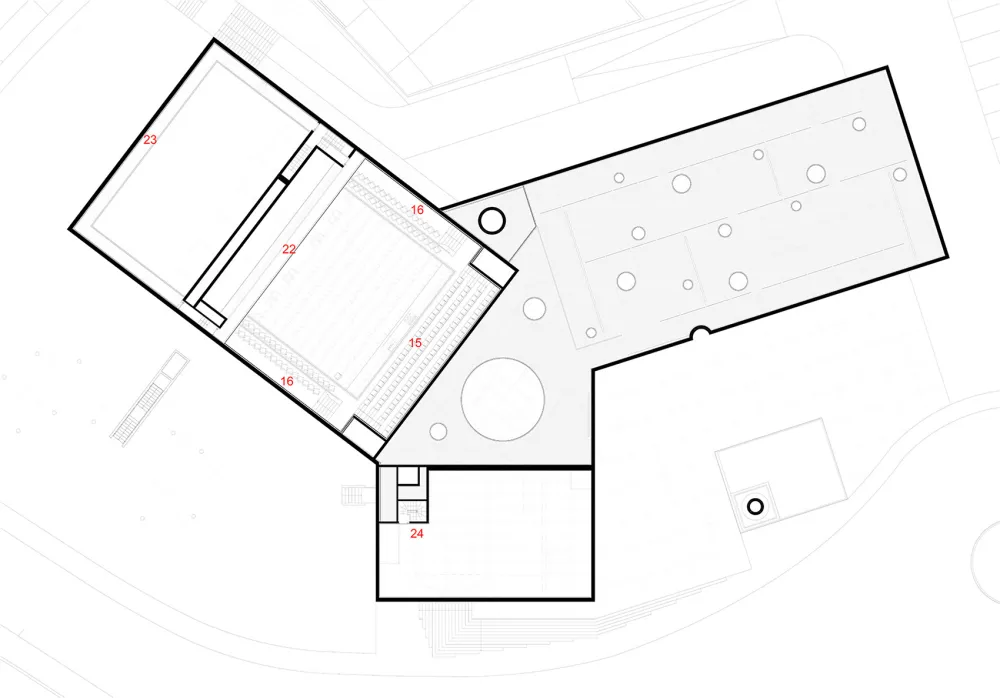
▼二层平面
▼三层平面
▼四层平面
▼立面图


▼剖面图


设计公司:AND-RÉ 位置:葡萄牙 类型:建筑 材料:混凝土 天窗 玻璃 标签: Águeda Arts Center 艺术中心 阿格达
版权声明:本文内容由用户自行发布上传或投稿由设计芝士代为发布,版权归原作者所有,设计芝士不拥有其著作权,亦不承担相应法律责任。如果您发现本站中有涉嫌抄袭或侵权的内容,请点此提交工单进行举报,一经查实,本站将立刻删除涉嫌侵权内容。

