这座经过重建的剧院于法国卡尚市,旨在从城市、文化和社会等方面来实现社区的变革。立面上的折线变化定义出剧院的入口,提示并引导着人们走入其中。
建筑的外观十分简洁,由上下堆叠的两个部分构成。首先是位于地面层的透明部分,它包含了一个开放而活泼的大厅,并通过一组开窗将内部的场景展现出来。第二个部分由赤陶土材料包覆并凌驾于第一个部分,犹如舞台幕布一般将建筑包围。
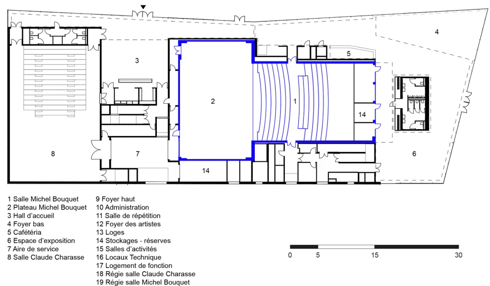
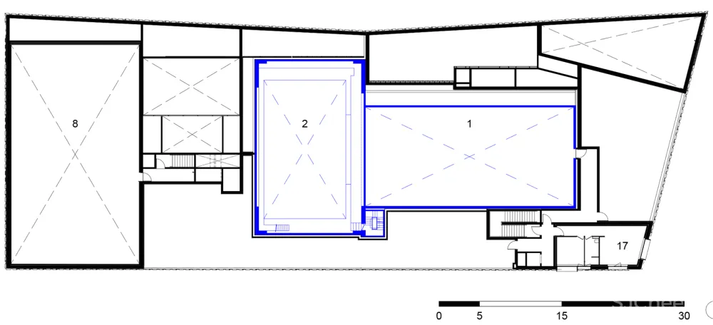
新剧院围绕着既有的中央礼堂进行布局。首层设有一个宽敞的接待区域,游客可以从这里通往两个礼堂、自助餐厅以及展览空间。新修的礼堂包含250个座位,它被安排在旧礼堂的后方,从而能够与之共用新的技术设施,改善表演者、技术人员和后勤人员的动线。
























▼功能分布示意
▼轴测图
▼总平面图
▼场地平面图
▼首层平面图
▼二层平面图
▼三层平面图
▼地下一层平面图
▼立面图
▼立面图


▼立面结构细部
设计公司:Ateliers O-S Architectes 位置:法国 类型:建筑 材料: 木材 金属 陶瓷 陶土砖 玻璃 聚碳酸酯
版权声明:本文内容由用户自行发布上传或投稿由设计芝士代为发布,版权归原作者所有,设计芝士不拥有其著作权,亦不承担相应法律责任。如果您发现本站中有涉嫌抄袭或侵权的内容,请点此提交工单进行举报,一经查实,本站将立刻删除涉嫌侵权内容。

