他是上帝之子,如果这个词还有什么别的含义的话,这里只能用它的本意,他要为天父的事业而献身,服务于这一博大而又粗俗、浮华而又美丽的事业。
---了不起的盖茨比



本案设计之初参考好莱坞电影《了不起的盖茨比》,它讲述了一个典型的美国梦,盖茨比也经常招呼好友们来自家开派对,我们也希望这条船能像盖茨比的派对一样奢华,片中所处的时代也正是装饰艺术风行于美国的时代。而在本案设计中,我们吸取了电影中传统经典的Art Deco元素,通过新的设计手法,新颖的材料结合,运用黑白两种经典颜色搭配中加入富贵金色点缀,演绎视觉冲撞,展现独特魅力。简约不简单,没有选择过多的花哨设计。祛繁从简,打造别具一格的Art Deco风格。 上海、纽约是全球范围内装饰艺术(Art Deco)文化最发达的城市,我们参考了大量纽约当时的建筑与室内照片,也翻阅县志查资料,参观了上海很多20世纪30年代左右的老建筑,力求还原出当时装饰艺术风格的精神与时代气息。金属屏风、大理石拼花地板、镶嵌玻璃等设计元素都是有出处的,有些图案的灵感来自电影《了不起的盖茨比》
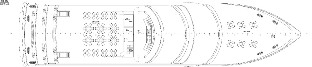
主甲板具有大型宴会功能、T台走秀功能。 左右舷各配备一个服务水吧台, 两舷观景玻璃各6台高分辨率投影机能与船头投影展示墙播放内容呼应。


一甲板功能与主甲板相似具有大型宴会功能。 顶面3米宽近17米长的发光天棚,搭配一个酒吧台。



二甲板为包房区域, 由四个包房与一个船头大包房组成。 四个包房两两联通, 可能合并为一个包房以便不时之需。











关于沈非 设计师;沈非设计事务所创始人、设计总监。上海市十大优秀青年设计、IAID最具影响力中青年设计师、上海市优秀室内设计师。2017年金外滩住宅类一等奖、2017年艾特奖会所类三等奖、2017年中国·上海第十五届装饰设计大赛(家居人文空间)一等奖2017年中国·上海第十五届装饰设计大赛(家居人文空间)二等奖 2017年中国·上海第十五届装饰设计大赛(商业空间)二等奖 2015年艾特奖金奖、2012年上海市办公楼类项目方案金奖、2010年艾特奖银奖、2008年商业空间装饰设计金奖。 代表作:强生游轮·翡翠公主号、强生游轮· 蓝黛公主号、强生游轮百雀羚号、强生游轮·水晶公主号、名信游轮·悦星6号、长城中环墅会所、上海国际华城会所、全想阁会所、香溪澜苑会所、永泰西郊会所、绿洲士格维丽致大酒店、天目湖涵田度假酒店、上海檀香别墅18#、尚海湾样板间及楼王、上海财富海景、武汉长岛别墅、华府天地、御翠园别墅、汤臣高尔夫别墅、南京中山高尔夫别墅等。
项目名称丨水晶公主号黄浦江游船 项目地点:上海 项目面积:1550m²(设计面积) 完工时间:2018年9月 室内设计:沈非设计事务所 主创设计:沈非 设计团队:张俊、胡成、王巍 摄 影:张静
版权声明:本文内容由用户自行发布上传或投稿由设计芝士代为发布,版权归原作者所有,设计芝士不拥有其著作权,亦不承担相应法律责任。如果您发现本站中有涉嫌抄袭或侵权的内容,请点此提交工单进行举报,一经查实,本站将立刻删除涉嫌侵权内容。

