建筑通常依赖于昂贵而稀缺的材料来定义它的价值。蜂巢探索了一个被低估的废弃产品,像无处不在的陶瓦屋顶瓦片一样可以被重新定义和重新估价。这种对废物的探索源于这样一种认识,即建筑业创造了澳大利亚一半的废物产出;而建筑物的能量足迹很大程度上是基于物质的能量。材料的再利用解决了这些环境影响,并且是目前为止最有效的建筑形式。
该项目始于对材料废物流的研究,寻找合适的物体来过滤白面太阳,以过滤出主要的西方面所面对的严酷的西方太阳。这个被忽视的郊区标志,被选择了,因为它很容易获得,而且没有一个足够的再利用市场。(虽然生产瓷砖被收集起来,但更新的瓷砖没有市场价值,并找到了垃圾填埋场的方法。)抛开这些瓷砖的共性,陶瓦瓷砖在其原始的元素物质性中,没有任何瓷砖完全一样,用粘土浇铸而成。
个建筑的设计过程也是独一无二的。作为对一个几何上复杂的物体的响应,fa立面设计主要是通过多个完整的测试和手工制作的原型来构思的。这开启了一种通过制造设计的直观形式。这一过程的触感允许快速的原型设计,包括尝试多种瓷砖课程类型。
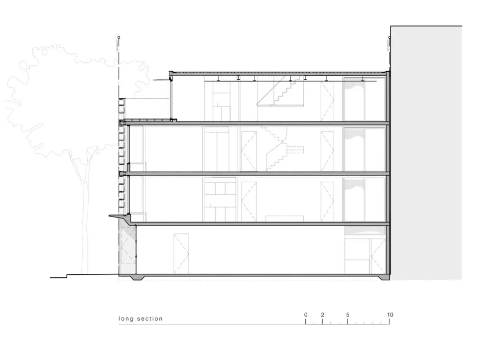
这些原型提供了最终的设计,其中每个瓷砖课程都是根据其功能放置的。由于它的强度,在底部使用了急性的课程,同时也掩盖了固体的喷点。在眼板上使用等边三角形来减少视觉障碍。而在顶部使用的是斜瓦,因为它们的间隙很低,并且向北倾斜。瓦片的变化也使我们能够隐藏板边,将结构的负载简化为单个故事。这个设计过程使我们能够利用这个模块来进一步处理具有挑战性的元素
他说,主要的手势是通过对其直接背景的考虑来实现的。这座建筑的形式是对邻近的挫折和高度的回应。它还会绕着纸皮街树(Melaleuca),它侵犯了这个网站。在阳光照射下,阳光照射在阳光下,同时将光线从8米宽的宽面中最大化。这两层楼高的仓库保留了南部的两层仓库的感觉,顶层的位置又回来了。弧形的遮阳篷在一楼上方升起,与它的背景相匹配,并为街道提供了一个慷慨的界面。





















设计师:Luigi Rosselli+Raffaello Rossell 项目地点:澳大利亚
版权声明:本文内容由用户自行发布上传或投稿由设计芝士代为发布,版权归原作者所有,设计芝士不拥有其著作权,亦不承担相应法律责任。如果您发现本站中有涉嫌抄袭或侵权的内容,请点此提交工单进行举报,一经查实,本站将立刻删除涉嫌侵权内容。


点点赞赏,手留余香